Melton Close, Wymondham, NR18

£250,000

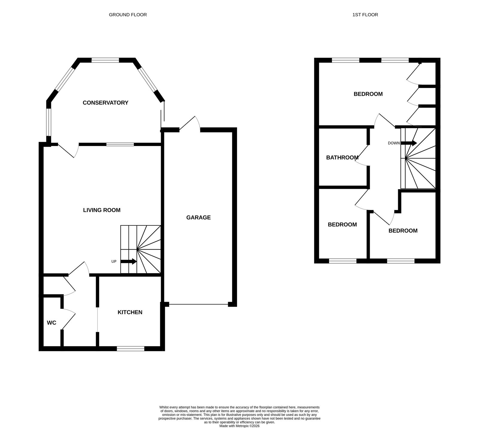
3 Bedroom Semi-Detached House for sale in Wymondham

1 3 1
  • Three-bedroom semi-detached house
  • Located on a quiet cul de sac
  • Offering approximately 850 square foot of living space
  • 15ft living room leading to the conservatory
  • Newly fitted kitchen and flooring within the past two years
  • Well-presented throughout with modern interior
  • Extended 20ft garage with off-road parking
  • Enclosed rear garden
  • Must be viewed to fully appreciate
  • See our full listing for further details including flood risk, broadband speed and other material information.


Moneyproperties bring to market this well-presented three-bedroom semi-detached house located on a quiet cul de sac. Deceptively spacious with modern interior, the property comprises of an entrance hall, downstairs wc, newly fitted kitchen within the past two years, and a 15ft living room leading into the good-sized conservatory to the rear. To the upstairs comes three bedrooms with built in storage to bedroom one and a bathroom. Outside the property enjoys a private rear garden, 21ft extended garage and off-road parking. The property has also had new flooring laid throughout within the past two years and must be viewed to fully appreciate.



Entrance Hall - 2.69m x 1.3m (8'10" x 4'3")


Downstairs WC - 1.93m x 0.76m (6'4" x 2'6")


Kitchen - 2.69m x 2.39m (8'10" x 7'10")


Living Room - 4.78m x 4.27m (15'8" x 14'0")


Conservatory - 3.86m x 3.3m (12'8" x 10'10")


Bedroom One - 3.66m x 2.44m (12'0" x 8'0")


Bedroom Two - 2.69m x 2.29m (8'10" x 7'6")


Bedroom Three - 2.69m x 2.08m (8'10" x 6'10")


Bathroom - 2.21m x 1.88m (7'3" x 6'2")


Single Garage - 6.38m x 2.69m (20'11" x 8'10")


Off-road parking


AGENT’S NOTES -


Planning :  Details, if any, can be found on the South Norfolk Council Planning website.


Covenants, Rights and Restrictions:  Please enquire with the selling agents for any information.


Broadband :  Ultrafast Full Fibre FTTP. See Ofcom checker and Openreach website for more details.


Mobile phone :  See Ofcom checker for coverage details.


Flood risk :  Very Low risk of surface, rivers and seas according to Gov.uk website


Services :  Mains Electricity, Gas, Water and Sewage


Local authority :  Norfolk County Council and South Norfolk


Council Tax Band :  B


Tenure :  Freehold


EPC : D

Important Information

  • This Council Tax band for this property is: B

Property Ref: 680_1375405

Share:

Similar Properties

Fairland Street, Wymondham, NR18 0AN

Office | Fixed Price £250,000

Rare Town Centre Commercial Opportunity – Sold with Tenant in Situ  - An excellent investment opportunity to acquire thi...

Woodrows,King Street, New Buckenham, NR16

2 Bedroom Detached House | Offers Over £250,000

Moneyproperties present this immaculate two-bedroom detached house in the popular village of New Buckenham. Located on k...

The Old Gun Shop in town centre location with off -road parking for 2/3 cars

Commercial Property | Offers in region of £250,000

Moneyproperties present a unique opportunity to purchase the Gun Shop in the town Centre of Wymondham beside the towns m...

Sycamore Avenue, Wymondham, NR18

3 Bedroom Semi-Detached House | £265,000

Moneyproperties bring to market for the first time in 44 years this spacious three-bedroom semi-detached home that has b...

Melton Close, Wymondham, Norfolk

4 Bedroom Semi-Detached House | Offers in region of £265,000

Beautifully Extended Four-Bedroom Home Close to Town Centre – No Onward Chain. Situated at the end of a quiet cul-de-sac...

Sheppards Drove, Wymondham, NR18

3 Bedroom End of Terrace House | Offers in region of £270,000

Moneyproperties are delighted to bring to market this well-presented three-bedroom end of terrace house located down a q...

Money Properties (Wymondham)

17/18 Market Place, Wymondham, Norfolk, NR18 0AX

01953 423 006

How much is your home worth?

Use our short form to request a valuation of your property.

Request a Valuation

Mortgage Calculator

Amount Borrowed: £
Total Amount Repayable: £
Total Monthly Payment: £
©2026 The Guild of Property Professionals. All rights reserved. Terms and Conditions | Privacy Policy | Cookie Policy | Complaints Policy | Members Login
The Guild of Property Professionals Trading Address: 121 Park Lane, London W1K 7AG. GPEA Limited. Registered in England & Wales.  Company No: 02819824.  Registered Office Address: 2 St. Stephen's Court, St. Stephen's Road, Bournemouth, Dorset, England, BH2 6LA.  VAT Registration No: 576 8795 61
Book a Property Valuation Update Cookies Preferences