4 Fairland Street, Wymondham, Norfolk, NR18 0AN

Offers in region of
£200,000

Retail Property (High Street) for sale in Wymondham

  • Prime Commercial Opportunity in the Heart of the historic Wymondham Town Centre
  • Offered with vacant possession, this mid-terrace building occupies a prominent position on Fairland Street.
  • Benefiting from strong footfall and high visibility, ideal for a variety of business uses.
  • The property extends to approximately 1,500 sq. ft with another 400 sq ft of storage space to the rear
  • Scope to develop the first floor and rear to residential us and profit from a lucrative 10% return on investment
  • The current offices could accommodate up to 10 people working together plus more if rear used
  • Wymondham Town Centre is still vibrant especially on a Friday when it is Market Day.
  • The property has been well maintained over the past twenty years by a reputable business
  • Tenure: Freehold / EPC rating E  /  Current rateable value (1 April 2023 to present): £7,300
  • See our full online listing for further details including flood risk, broadband speed and other material information

 



Prime Commercial Opportunity in the Heart of Wymondham Town Centre. An excellent opportunity to acquire a versatile commercial property situated in the historic market town centre of Wymondham. Offered with vacant possession, this mid-terrace building occupies a prominent position on Fairland Street, benefiting from strong footfall and high visibility, ideal for a variety of business uses.


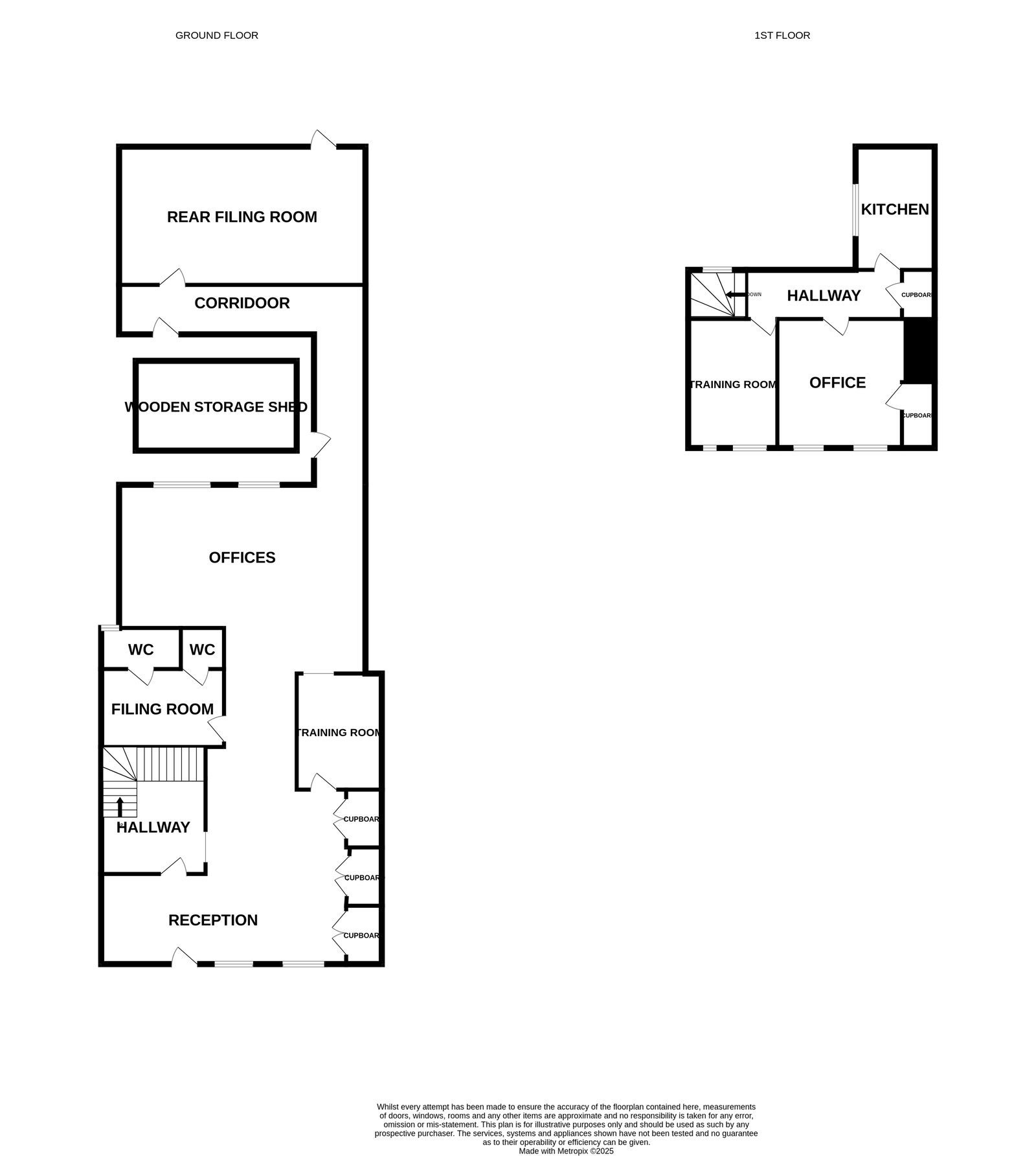
The property extends to approximately 1,500 sq. ft. and currently comprises an entrance hall, reception area, office space, toilets, storage areas, and a kitchen, with two additional offices located on the upper floor.


There are additional spaces to the rear of the property which equate to another 400 sq ft of storage space.


There is excellent potential to reconfigure the layout, with scope to create ground-floor commercial space and residential accommodation above, offering a potential yield in excess of 10%.


This is a rare opportunity to secure a flexible freehold premises in one of Wymondham’s most sought-after commercial locations. 


 



Main Office - 4.32m x 3.63m (14'2" x 11'11" - 30' max)


Reception area - 3.97m x 5.16m (13'0.3" x 16'11")


Private Reception Room - 2.67m x 2.41m (8'9" x 7'11")


Filing Room - 3.48m x 2.34m (11'5" x 7'8")


WC 1


WC 2


Hallway


Rear Filing Room - 4.85m x 4.95m (15'11" x 16'3")


 


Upstairs Hallway


Upstairs Office - 3.96m x 3.84m (13'0" x 12'7")


Training Room - 3.86m x 2.34m (12'8" x 7'8")


Kitchen - 3.58m x 2.29m (11'9" x 7'6")


 


Outside


Storage Shed - 3.66m x 3.05m (12'0" x 10'0")


 


AGENT’S NOTES -


Planning :  Details, if any, can be found on the South Norfolk Council Planning website.


Covenants, Rights and Restrictions:  Please enquire with the selling agents for any information.


Broadband :  Ultrafast FTTP.  See Ofcom checker and Openreach website for more details.


Mobile phone :  See Ofcom checker for coverage details.


Flood risk :  Very Low risk surface, rivers and seas according to Gov.uk website


Services :  Mains Services connected.


Local Authority :  Norfolk County Council and South Norfolk Council


Current Rateable Value (1 April 2023 to present): £7,300 - Details on Gov.uk website.


Tenure :  Freehold


EPC : E


Please Note the property contains some asbestos and a Asbestos Management Plan is in place


 

Important Information

  • This is a Freehold property.

Property Ref: 680_1192062

Share:

Similar Properties

Rothbury Road, Wymondham, NR18

3 Bedroom Link Detached House | Offers in region of £200,000

Moneyproperties bring to market this two/three-bedroom link-detached property requiring a full renovation and offering h...

Margaret Reeve Close, Wymondham, Norfolk, NR18 0ST

2 Bedroom Terraced House | Offers in region of £190,000

This two-bedroom terraced house is ideally located in a quiet cul-de-sac just off the sought-after Norwich Road in Wymon...

Besthorpe Road, Attleborough, Norfolk, NR17 2NJ

2 Bedroom Semi-Detached House | Offers in region of £190,000

A Fantastic Opportunity to Purchase a Well-Presented Two-Bedroom Home on a Generous 70ft x 30ft Corner Plot. This attrac...

High House Avenue, Wymondham, Norfolk

3 Bedroom Bungalow | Offers in region of £210,000

Property requires work* Moneyproperties is delighted to present this rare opportunity to purchase a detached three-bedro...

Melton Close, Wymondham, NR18

2 Bedroom Terraced House | £210,000

Moneyproperties bring to market this two-bedroom mid terraced house ideal for first-time buyers, small families, or inve...

Church Street, Wymondham, Norfolk, NR18 0PH

Commercial Property | £210,000

Offering exceptional flexibility, this character property lends itself to mixed residential and commercial use or dual b...

Money Properties (Wymondham)

17/18 Market Place, Wymondham, Norfolk, NR18 0AX

01953 423 006

How much is your home worth?

Use our short form to request a valuation of your property.

Request a Valuation

Mortgage Calculator

Amount Borrowed: £
Total Amount Repayable: £
Total Monthly Payment: £
©2025 The Guild of Property Professionals. All rights reserved. Terms and Conditions | Privacy Policy | Cookie Policy | Complaints Policy | Members Login
The Guild of Property Professionals Trading Address: 121 Park Lane, London W1K 7AG. GPEA Limited. Registered in England & Wales.  Company No: 02819824.  Registered Office Address: 2 St. Stephen's Court, St. Stephen's Road, Bournemouth, Dorset, England, BH2 6LA.  VAT Registration No: 576 8795 61
Book a Property Valuation Update Cookies Preferences