Church Street, Wymondham, Norfolk, NR18 0PH

£210,000

Commercial Property for sale in Wymondham

  • A rare opportunity to acquire a unique commercial property in the heart of Wymondham
  • Rich in character and local history this versatile property comes to market for the first time since 1930
  • Prominently positioned on the corner of Church Street and Damgate Street could be converted into two premises
  • This distinctive building was originally formed from two adjoining public houses dating back to early 1700's
  • The Goat on Church Street and The Rose and Crown facing Market Street on Damgate Street hence the two entrances
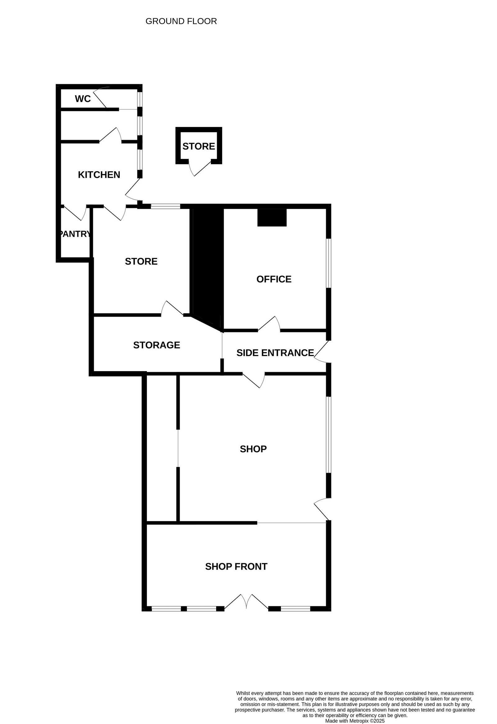
  • The property offers approximately 1200 sq ft comprising of two shop areas, two offices, storage, kitchen and cloakroom
  • There is also an entrance to the rear and passage onto Damgate Street, there is no parking with the property
  • Ideally placed for the three town centre car parks, close to local bus and rail services to Norwich and Cambridge
  • Excellent access to the main A11 and A47 truck roads a minutes walk from the Wymondham Abbey and Market Cross
  • See our full online listing for further details including flood risk, broadband speed and other material information

 



Commercial Property Opportunity – Wymondham Town Centre


A rare opportunity to acquire a unique commercial property in the heart of Wymondham, rich in character and local history. Prominently positioned on the corner of Church Street and Damgate Street, this distinctive building was originally formed from two adjoining public houses: The Goat on Church Street and The Rose and Crown facing Market Street. Long-standing residents still fondly recall the location as “Rose and Crown Corner.”


Period features remain throughout, including a stable-style serving door in the hallway, historically used to serve beer directly from the barrel. Original documents dating back to the early 1700s confirm the property’s long and varied heritage. Over time it has served numerous purposes, most notably becoming a well-known family shoe shop with private accommodation in 1930, and more recently operating as a charity shop.


Offering exceptional flexibility, this character property lends itself to mixed residential and commercial use or dual business premises, thanks to its two street-front entrances—one on Church Street and one on Damgate Street—along with a rear entrance and outside storage building.


Accommodation (Approx. 1,200 sq ft):


   •   Retail/Commercial Area 1 (Damgate Street frontage)


   •   Retail/Commercial Area 2 (Church Street frontage)


   •   Second Entrance (Church Street frontage)


   •   Two Office/Work Rooms


   •   Storage Area


   •   Kitchen


   •   Cloakroom with WC


   •   Rear access, passageway and outdoor storage shed


While the property does not include parking, it is conveniently located close to three town-centre public car parks.


Viewing: Strictly by appointment through Moneyproperties.



Shop area one - 6.32m x 2.95m (20'9" x 9'8")


Shop area two - 6.32m x 5.11m (20'9" x 16'9")


Side entrance hall - 4.62m x 1.07m (15'2" x 3'6")


Office - 3.66m x 3.56m (12'0" x 11'8")


Storage area - 4.47m x 2.01m (14'8" x 6'7")


Storage Room - 3.73m x 3.43m (12'3" x 11'3")


Kitchen - 2.21m x 1.83m (7'3" x 6'0")


Pantry - 1.83m x 1.12m (6'0" x 3'8")


Cloakroom and WC - 2.16m x 1.83m (7'1" x 6'0")


Outside storage cupboard - 1.42m x 1.09m (4'8" x 3'7")


Rear Access


 


AGENT’S NOTES -


Planning :  Details, if any, can be found on the South Norfolk Council Planning website.


Covenants, Rights and Restrictions:  Please enquire with the selling agents for any information.


Broadband :  Ultrafast FTTP - See Ofcom checker and Openreach website for more details.


Mobile phone :  See Ofcom checker for coverage details.


Flood risk :  High Risk risk surface, Very low risk rivers and seas according to Gov.uk website


Services :  Mains Electricity, Sewage and Water


Local Authority :  Norfolk County Council and South Norfolk Council


Business rates :  Current rateable value (1 April 2023 to present) £11,750


Tenure :  Freehold ( with leasehold of the flat above) 


EPC : D

Important Information

  • This is a Freehold property.

Property Ref: 680_1236297

Share:

Similar Properties

Melton Close, Wymondham, NR18

2 Bedroom Terraced House | £210,000

Moneyproperties bring to market this two-bedroom mid terraced house ideal for first-time buyers, small families, or inve...

4 Fairland Street, Wymondham, Norfolk, NR18 0AN

Retail Property (High Street) | Offers in region of £200,000

Prime Commercial Opportunity in the Heart of Wymondham Town Centre. An excellent opportunity to acquire a versatile comm...

Besthorpe Road, Attleborough, Norfolk, NR17 2NJ

2 Bedroom Semi-Detached House | Offers in region of £190,000

A Fantastic Opportunity to Purchase a Well-Presented Two-Bedroom Home on a Generous 70ft x 30ft Corner Plot. This attrac...

Granary Close, Wymondham, Norfolk

2 Bedroom Apartment | Guide Price £220,000

GUIDE £220,000- £240,000 Moneyproperties are delighted to present this rare opportunity to acquire a stylish, two-year-o...

Margaret Reeve Close, Wymondham, NR18 0ST

2 Bedroom Semi-Detached House | Offers in region of £220,000

This two bedroom coach house with garage is situated in a quiet cul de sac close to the town centre. The property compri...

Property with Exceptional Potential Ketts Oak, Hethersett, Norwich. NR9 3DJ

2 Bedroom Semi-Detached House | Guide Price £225,000

Property with Exceptional Potential and No Forward Chain. Guide Price £250,000 - £275,000. Moneyproperties are delighted...

Money Properties (Wymondham)

17/18 Market Place, Wymondham, Norfolk, NR18 0AX

01953 423 006

How much is your home worth?

Use our short form to request a valuation of your property.

Request a Valuation

Mortgage Calculator

Amount Borrowed: £
Total Amount Repayable: £
Total Monthly Payment: £
©2026 The Guild of Property Professionals. All rights reserved. Terms and Conditions | Privacy Policy | Cookie Policy | Complaints Policy | Members Login
The Guild of Property Professionals Trading Address: 121 Park Lane, London W1K 7AG. GPEA Limited. Registered in England & Wales.  Company No: 02819824.  Registered Office Address: 2 St. Stephen's Court, St. Stephen's Road, Bournemouth, Dorset, England, BH2 6LA.  VAT Registration No: 576 8795 61
Book a Property Valuation Update Cookies Preferences