Reginald Grove, York

£525,000

4 Bedroom Semi-Detached House for sale in York

1 4 2
  • NO ONWARD CHAIN - BACKING ONTO PARKLAND
  • An extended four-bedroom traditional style semi-detached home
  • Just off Bishopthorpe Road, convenient for Rowntree Park, the Knavesmire, York Racecourse and the river Ouse
  • Bright and Spacious
  • With Garden Room and 14' Fitted Kitchen
  • Off street parking and Single Garage
  • Rear garden laid to lawn with raised beds and gate to riverside paths
  • An accompanied viewing is highly recommended
  • Council Tax Band: D
  • EPC: D

NO ONWARD CHAIN - BACKING ONTO PARKLAND
We are delighted to offer for sale this extended four-bedroom traditional style semi-detached home, located on this quiet cul-de-sac in one of York's most highly sought after and desirable streets just off Bishopthorpe Road, convenient for Rowntree Park, the Knavesmire, York Racecourse and the river Ouse.
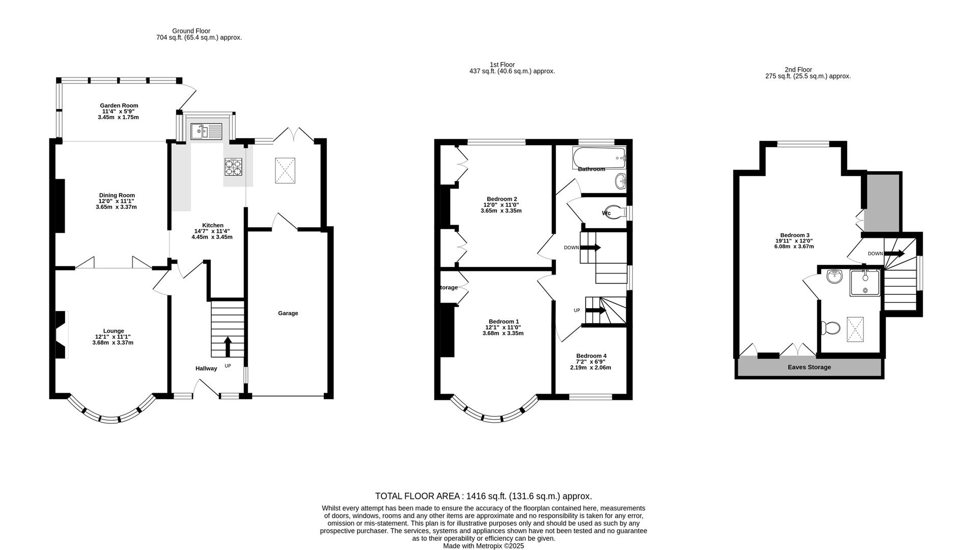
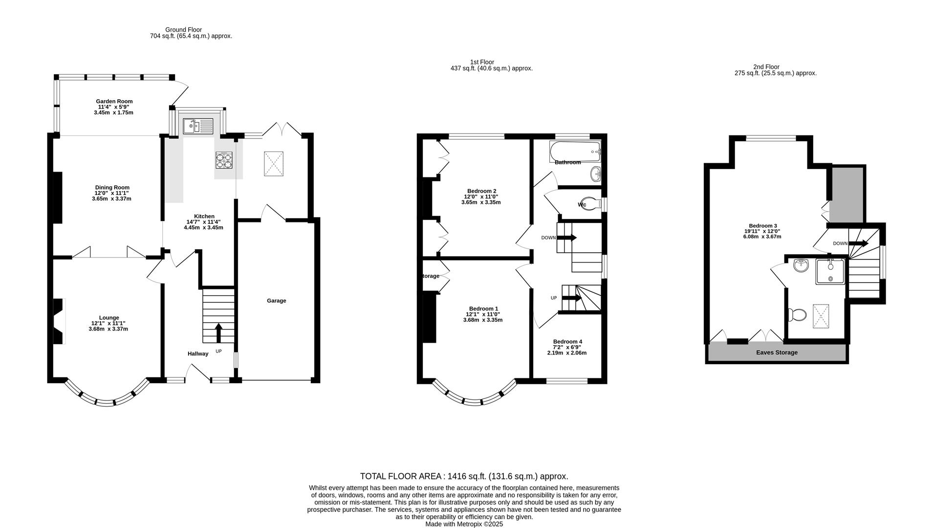
This bright and spacious home comprises; entrance hallway, lounge with bay window, dining room opening to garden room, 14' fitted kitchen, first floor landing, three first floor bedrooms (two doubles and one good single single) bathroom, separate WC, second floor landing and further double bedroom with shower ensuite. To the outside is a front driveway providing off street parking giving potential for electric car charging. To the rear is a garden laid to lawn with raised beds and gate to riverside paths. The integral garage is a standard single size.
An accompanied viewing is highly recommended.

Entrance Hallway - uPVC entrance door, double panelled radiator, oak flooring, window to side, power points, carpeted stairs to first floor

Kitchen - 4.45m x 3.45m (14'7" x 11'4") - Double glazed windows to rear, French doors to garden, fitted wall and base units with counter top, one and a hlaf sink and drainer board with mixer tap, built in gas hob and electric oven, space and plumbing for appliances, double panelled radiator, vinyl flooring, recessed spotlights, Velux window

Lounge - 3.68m x 3.38m plus bay (12'1" x 11'1" plus bay) - uPVC bay window to front, log burner with surround, oak flooring, single panelled radiator, recessed spotlights, television points, power points

Dining Room - 3.66m x 3.38m (12' x 11'1") - Oak flooring, single panelled radiator, fuitted storage cupboards, power points, opening to

Garden Room - 3.45m x 1.75m (11'4" x 5'9") - uPVC double glazing, door to garden, oak flooring, recessed spotlights,

First Floor Landing - uPVC window to side, carpets, power points, stairs to second floor

Bedroom 1 - 3.68m x 3.35m (12'1" x 11') - uPVC bay window to front, double panelled radiator, carpets, fitted wardrobes, power points,

Bedroom 2 - 3.66m x 3.35m (12' x 11') - uPVC window to rear, double panelled radiator, carpets, fitted wardrobes, power points,

Bedroom 4 - 2.18m x 2.06m (7'2" x 6'9") - uPVC window to front, single panelled radiator, power points, phone socket

House Bathroom - Opaque window to rear, pedestal wash hand basin, panelled bath, tiled walsls, tiled flooring, single panelled radiator

W.C. - Opaque window to side, low level wc, part tiled walls, tiled flooring

Second Floor Landing - uPVC window to side, carpets, door to:

Bedroom 3 - 6.07m x 3.66m (19'11" x 12') - uPVC window to rear, Velux window to front, power points, carpets, fitted storage

Ensuite Shower Room - Velux windoe to front, walk in shower cubicle, low level w.c., pedestal wash hand basin, storage cupboards, towel radiator, vinyl flooring, recessed spotlights, extractor fan

Garage -

Outside - Small front garden, driveway, rear lawn and patio, brick boundary wall and gate to parkland

Property Ref: 564471_34205815

Share:

Similar Properties

Middlewood Close, Rufforth

4 Bedroom Detached House | Guide Price £525,000

A LARGE 4 BEDROOM TRADITIONAL STYLE DETACHED HOUSE SET ON A GOOD SIZED CORNER PLOT WITHIN THIS SOUGHT AFTER VILLAGE WITH...

North Lane, Wheldrake

3 Bedroom Detached Bungalow | Guide Price £500,000

A SUPERB DETACHED HOUSE SET IN GOOD SIZED GARDENS IN A QUIET SETTING WITH OPEN VIEWS TO REAR IN THIS HIGHLY SOUGHT AFTER...

Nunmill Street, York

3 Bedroom Terraced House | Guide Price £500,000

NO ONWARD CHAINA highly impressive three double bedroom fore courted period terrace with a fantastic open-plan extension...

Blue Bridge Lane, York

3 Bedroom Terraced House | Guide Price £539,000

A FABULOUS THREE STOREY THREE BEDROOM TOWN HOUSE WITH GARAGE, PARKING, COURTYARD GARDEN FORMING PART OF THIS EXECUTIVE R...

Windmill Rise, York

4 Bedroom Semi-Detached House | Guide Price £550,000

FOUR BEDROOM EXTENDED SEMI DETACHED HOUSE WITH APPROX 100FT REAR GARDEN IN THIS HIGHLY SOUGHT AFTER AREA - conveniently...

Grosvenor Terrace, York

6 Bedroom Terraced House | £575,000

NO ONWARD CHAIN! A superb opportunity to personalise and improve this imposing six bedroom townhouse on sought after Gro...

Churchills Estate Agents (York)

Bishopthorpe Road, York, Yorkshire, YO23 1NA

01904 646611

How much is your home worth?

Use our short form to request a valuation of your property.

Request a Valuation

Mortgage Calculator

Amount Borrowed: £
Total Amount Repayable: £
Total Monthly Payment: £
©2025 The Guild of Property Professionals. All rights reserved. Terms and Conditions | Privacy Policy | Cookie Policy | Complaints Policy | Members Login
The Guild of Property Professionals Trading Address: 121 Park Lane, London W1K 7AG. GPEA Limited. Registered in England & Wales.  Company No: 02819824.  Registered Office Address: 2 St. Stephen's Court, St. Stephen's Road, Bournemouth, Dorset, England, BH2 6LA.  VAT Registration No: 576 8795 61
Book a Property Valuation Update Cookies Preferences