Clarence Street, York

£575,000

6 Bedroom Commercial Property for sale in York

1 6 2
  • Large period property currently operating as a successful 6-bedroom student let
  • Located within a stone's throw of York St John University
  • Just a 2-minute walk to the city centre
  • Easy access to the University of York
  • Offers extremely spacious communal areas and large letting rooms
  • Generates an approximate annual income of ?60,500
  • Benefits from gas central heating and double glazing
  • Attractive investment opportunity due to prime location and strong rental yield
  • Council Tax Band:
  • EPC: C77

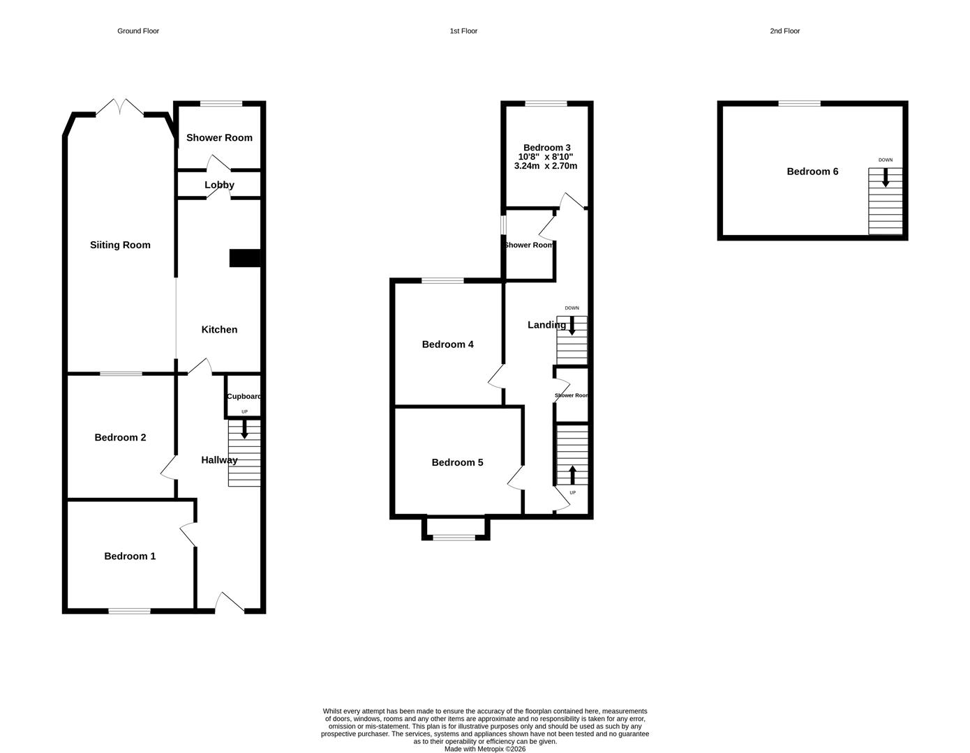
A LARGE PERIOD PROPERTY RUNNING AS A SUCESSFUL 6 BEDROOM STUDENT LET WITHIN A STONES THROW FROM YORK ST JOHN UNIVERSITY AND TWO MINUTES WALK INTO THE CITY CENTRE AND EASY ACCESSABLE TO YORK UNIVERSITY. Providing extremely spacious communal rooms and large letting rooms the property has an income of approximately ?60,500 per annum. With the benefit of gas central heating and double glazing the property comprises large hallway, communal sitting room with doors to a courtyard, large kitchen, and bathroom/w.c., 2 ground floor bedrooms, first floor with 3 further bedrooms and bathrooms and a further large bedroom to the second floor. Sure to be of interest to investors in this great location and strong yield.

Hallway - Large hallway with entrance door, stairs to first floor and doors leading to

Bedroom 1 - 4.19m x 3.66m (13'9 x 12) - Bay window to front

Bedroom 2 - 4.06m x 3.51m (13'4 x 11'6) - Window to rear

Communal Sitting Room - 8.08m x 2.64m (26'6 x 8'8) - Bright and spacious sitting/dining area with doors to rear courtyard

Kitchen - 5.66m x 2.79m (18'7 x 9'2) - Full range of modern fitted units and integrated/fitted appliances. Door to

Bathroom - Modern 3 piece white suite including walk in shower

First Floor - Stairs to second floor. Doors to

Bedroom 3 - 3.15m x 2.62m (10'4 x 8'7) - Window to rear

Bedroom 4 - 4.14m x 3.66m (13'7 x 12) - Window to rear and period fireplace

Bedroom 5 - 4.37m (into bay) x 3.66m (14'4 (into bay) x 12') - Bay window to front. period fireplace

Second Floor -

Bedroom 6 - 5.11m x 4.42m (16'9 x 14'6) - Velux windows to rear, ceiling beams

Outside - Good sized communal courtyard

Agents Note: - To be able to purchase a property in the United Kingdom all agents have a legal requirement to conduct Identity checks on all customers involved in the sales transaction to fulfil their obligations under Anti Money Laundering regulations. A charge to carry out these checks will apply. Please ask our office for further details.

Property Ref: 34542351

Share:

Similar Properties

Gordon Street, York

Detached House | £575,000

A FABULOUS INVESTMENT OPPORTUNITY. A 6 bedroom student let set in this favoured York University location within easy wal...

Brook Street, York

6 Bedroom Link Detached House | £575,000

A FABULOUS MODERN 6 BEDROOM ECO HOUSE RUN AS A SUCESSFUL STUDENT LET WITH AN INCOME OF ?60,500 PER ANNUM SET IN THIS SOU...

Grosvenor Terrace, York

6 Bedroom Terraced House | £575,000

NO ONWARD CHAIN! A superb opportunity to personalise and improve this imposing six bedroom townhouse on sought after Gro...

Main Street, Thorganby, York

4 Bedroom Detached House | £580,000

A FABULOUS DOUBLE FRONTED DETACHED PERIOD PROPERTY SET ON THE MAIN STREET OF THIS POPULAR VILLAGE WITHIN FULFORD SCHOOL...

Charlton Street, Off Bishopthorpe Road

4 Bedroom Terraced House | Guide Price £585,000

This substantial and characterful home occupies a highly desirable position on Bishopthorpe Road, one of York's most sou...

Penleys Grove Street, York

3 Bedroom Terraced House | £585,000

A stunning large three-storey forecourted period townhouse with off street parking , ideally positioned in this highly s...

Churchills Estate Agents (York)

Bishopthorpe Road, York, Yorkshire, YO23 1NA

01904 646611

How much is your home worth?

Use our short form to request a valuation of your property.

Request a Valuation

Mortgage Calculator

Amount Borrowed: £
Total Amount Repayable: £
Total Monthly Payment: £
©2026 The Guild of Property Professionals. All rights reserved. Terms and Conditions | Privacy Policy | Cookie Policy | Complaints Policy | Members Login
The Guild of Property Professionals Trading Address: 121 Park Lane, London W1K 7AG. GPEA Limited. Registered in England & Wales.  Company No: 02819824.  Registered Office Address: 2 St. Stephen's Court, St. Stephen's Road, Bournemouth, Dorset, England, BH2 6LA.  VAT Registration No: 576 8795 61
Book a Property Valuation Update Cookies Preferences