Station Lane, Featherstone, Pontefract

£650pcm

2 Bedroom Flat for rent in Pontefract

1 2 1
  • Available Immediately
  • Good Size Lounge
  • Kitchen
  • Two Second Floor Bedrooms
  • Family Bathroom
  • Ideal Location
  • Council Tax Band A
  • EPC Grade D

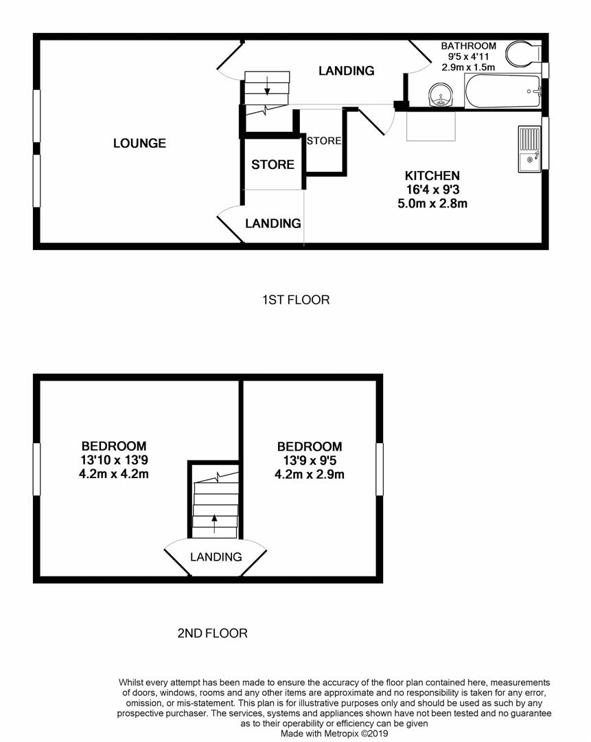
Situated in the heart of Featherstone is this two bedroom, two-level flat, perfectly located close to all local amenities which are within walking distance. Public transport links are also close by with easy access to bus and rail routes to neighbouring towns and cities which are frequent and regular. For those who drive and travel further afield Junction 32 of the M62 is a short drive away making this the ideal home for those who commute on a regular basis.

Lounge - 13' 11''(max) x 14' 2''(max) (4.25m x 4.33m) - With two picture windows to the front elevation, laminate flooring, television point and a gas central heated radiator.

Kitchen - 9' 3''(max) x 15' 7'' (max) (2.82m x 4.76m) - Fitted with base and wall units with work surfaces over, electric cooker, plumbing for a washing machine, double glazed window and gas central heated radiator.

Bedroom One (Second Floor) - 10' 4'' (max) x 14' 10''(max) (3.14m x 4.51m) - With a skylight and built in cupboard.

Bedroom Two (Second Floor) - 9' 3'' (max) x 14' 4''(max) (2.83m x 4.36m) - With a skylight and gas central heated radiator.

Bathroom - 4' 10''(max) x 9' 3''(max) (1.47m x 2.83m) - Fitted with a three piece bathroom suite which comprises of a WC, hand wash basin, bath, UPVC frosted window and an airing cupboard.

Property Ref: 53422_34339050

Share:

Similar Properties

Bank Street, Castleford

1 Bedroom Commercial Property | £650pcm

AVAILABLE NOW In the vibrant heart of Castleford, this newly renovated ground-floor one bedroom apartment on Bank Street...

Bank Street, Castleford

1 Bedroom Flat | £600pcm

AVAILABLE NOW In the vibrant heart of Castleford, this newly renovated ground-floor one bedroom studio on Bank Street of...

Station Lane, Featherstone

1 Bedroom Flat | £575pcm

This first-floor flat centrally located in Featherstone on Station Lane. The location of this apartment is truly ideal,...

Castleford Road, Normanton

2 Bedroom Flat | £675pcm

Welcome to this impeccably designed property nestled in the vibrant neighbourhood of Normanton. Situated in a desirable...

Shakespeare Crescent, Castleford

2 Bedroom Flat | £725pcm

We are delighted to present this charming ground floor apartment available for rent. Nestled in a peaceful cul-de-sac on...

Bank Street, Castleford

1 Bedroom Flat | £750pcm

Welcome to this charming one-bedroom first-floor flat located on Bank Street in the heart of Castleford. This newly refu...

Castle Dwellings (Castleford)

22 Bank Street, Castleford, West Yorkshire, WF10 1JD

01977 285 111

How much is your home worth?

Use our short form to request a valuation of your property.

Request a Valuation
©2025 The Guild of Property Professionals. All rights reserved. Terms and Conditions | Privacy Policy | Cookie Policy | Complaints Policy | Members Login
The Guild of Property Professionals Trading Address: 121 Park Lane, London W1K 7AG. GPEA Limited. Registered in England & Wales.  Company No: 02819824.  Registered Office Address: 2 St. Stephen's Court, St. Stephen's Road, Bournemouth, Dorset, England, BH2 6LA.  VAT Registration No: 576 8795 61
Book a Property Valuation Update Cookies Preferences