Mount Street, Cirencester

£1,495pcm
Let Agreed
This property listing is now Let Agreed

3 Bedroom Semi-Detached House for rent in Cirencester

2 3 2
  • Period Town House
  • Well Presented Throughout
  • 3 Double Bedrooms
  • Ensuite Shower to Master Bedroom
  • Separate Dining & Sitting Rooms
  • Fitted Kitchen Breakfast Room
  • Gardens to Front & Rear
  • Gas Fired Central Heating

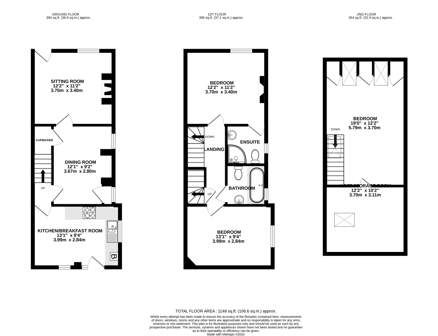
A superb opportunity to rent this 3 double bedroom Period town house located in a convenient position a short distance from the town centre and close by to a wide range of everyday amenities and facilities. Available shortly and for a long let, the unfurnished accommodation offers a convenient modern living space set across 3 floors and blended with a range of charming Period and character features.
Presented in stylish tones, the centrally heated family home further benefits from a light, dual aspect fitted kitchen /breakfast room featuring an ample range of base and eye level storage units with space and plumbing for further appliances and glazed doors opening to the southerly facing patio and rear garden. In addition, the property features 2 reception rooms including a particularly charming living room - with a beautiful, exposed timber floor and a wood burner, whilst the separate dining room offers hard wearing flagstone flooring and a useful understairs storage space.
At first floor level, there are 2 generously proportioned bedrooms, including an attractive master bedroom with ornamental Victorian fireplace and a dedicated ensuite shower room. Also on this level is a family bathroom - with fitted suite including bath with handheld mixer tap shower, whilst the upper floor has been skilfully converted to provide a further double bedroom with skylight windows and far-reaching views over Cirencester.
Externally, the property benefits from gardens to both front and rear aspects. The larger, rear garden offers a southerly facing orientation with a degree of seclusion, and is sectioned into lawned and patio areas together with a useful storage shed and gated pedestrian side access.
Viewings are welcomed by appointment 6 days a week although be aware that viewings may require at least 24 hours' notice to arrange access. Please note that prior to any subsequent tenancy offer being accepted, all prospective tenants will be required to supply identification documents and proof of affordability.
Agent notes: these particulars have been prepared as a general guide only. A detailed survey has not been carried out, nor the services, appliances, fittings, etc, been tested. If room sizes are included, they are for guidance and illustration purposes only. They may not be to scale and should not be relied upon for furnishing or other purposes. If there are any important matters likely to affect your decision to proceed, please contact us before viewing the property.
Tenant protection: Moore Allen & Innocent is a member of the royal institution of chartered surveyor's client money protection scheme, and a member of the property ombudsman independent redress scheme. You can find out more details via our website or by contacting the office directly.

Landlords: do you own a similar property? Moore Allen & Innocent are an independent, multi-award winning, sales and lettings estate agency with over 175 years of property experience across the Cotswolds and beyond. If you have a similar property that you would like rented out or are looking for an agent to take away the stress and manage a property for you, we would be delighted to discuss how we can help. For more information regarding our services and a free, no-obligation review, please contact us today.

Property Ref: 593341_10202093

Share:

Similar Properties

The Street, OAKSEY

3 Bedroom Detached Bungalow | £1,495pcm

*** MOORE ALLEN & INNOCENT *** are delighted to offer this MODERN and DECEPTIVELY SPACIOUS 3 DOUBLE BEDROOM SINGLE STORE...

White Lodge, Braydon

3 Bedroom Bungalow | £1,495pcm

*** MOORE ALLEN & INNOCENT *** are delighted to bring to market this 3 double bedroom, 2 reception room bungalow within...

Eastington, NORTHLEACH

4 Bedroom Semi-Detached House | £1,495pcm

*** MOORE ALLEN & INNOCENT *** are delighted to offer this NEWLY UPDATED 4 DOUBLE BEDROOM Cotswold cottage situated on a...

The Green, Quenington

3 Bedroom Terraced House | £1,500pcm

*** MOORE ALLEN & INNOCENT *** are delighted to offer this 3 BEDROOM home near to the heart of this popular village with...

East End, Northleach

3 Bedroom Terraced House | £1,500pcm

*** MOORE ALLEN & INNOCENT *** are delighted to offer this SPACIOUS 3-DOUBLE BEDROOM family home near to the heart of th...

Farmington Rise, Northleach

3 Bedroom Semi-Detached House | £1,500pcm

Located in the highly desirable town of Northleach, this STUNNING three-bedroom SEMI DETCHACHED property has been fully...

Moore Allen & Innocent (Cirencester)

33 Castle Street, Cirencester, Gloucestershire, GL7 1QD

01285 648100

How much is your home worth?

Use our short form to request a valuation of your property.

Request a Valuation
©2026 The Guild of Property Professionals. All rights reserved. Terms and Conditions | Privacy Policy | Cookie Policy | Complaints Policy | Members Login
The Guild of Property Professionals Trading Address: 121 Park Lane, London W1K 7AG. GPEA Limited. Registered in England & Wales.  Company No: 02819824.  Registered Office Address: 2 St. Stephen's Court, St. Stephen's Road, Bournemouth, Dorset, England, BH2 6LA.  VAT Registration No: 576 8795 61
Book a Property Valuation Update Cookies Preferences