Eastington, NORTHLEACH

£1,495pcm
Let Agreed
This property listing is now Let Agreed

4 Bedroom Semi-Detached House for rent in Northleach

2 4 1
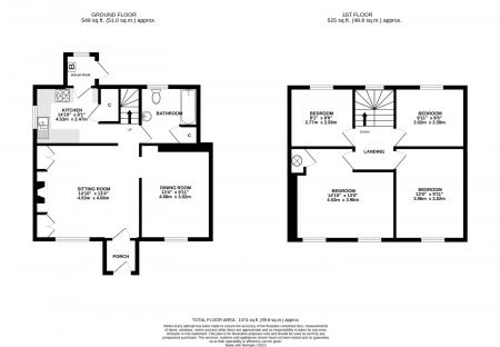
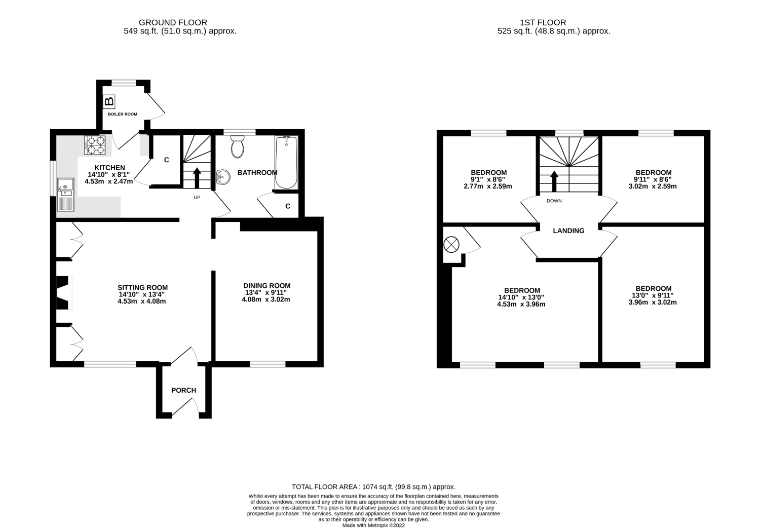
  • 4 Bedroom Cotswold Stone Cottage
  • Separate Living & Dining Rooms
  • Fitted Kitchen With Range Cooker
  • Bath With Shower Over
  • Oil Fired Central Heating
  • Gigaclear Fibre Broadband Option
  • Garage & Off Road Parking
  • Organic Rural Estate Location

A superb opportunity to rent this spacious and newly updated 4 bedroom Cotswold stone cottage in a lovely rural location on an organic country estate, near to the village of Eastington between Burford, Northleach and Bibury. Available immediately and for a long let if desired, the unfurnished, and newly redecorated accommodation offers a stylish modern kitchen with a very good range of fitted base and eye level storage units, a Stove range cooker with gas hob, and a useful under stairs larder cupboard. In addition, the centrally heated, semi-detached cottage benefits from 2 generously proportioned reception rooms– each with a pleasant southerly aspect and with the benefit of an electric fire and alcove storage to the newly carpeted sitting room. Also on the ground floor is a well appointed family bathroom - featuring a white bath suite with tiled surround and an over bath shower, whilst to the first floor there are a total of 4 generously sized bedrooms, each with new carpets. Heating is supplied via an oil-fired central heating system feeding radiators whilst Gigaclear ultrafast fibre broadband is also available for connection - ideal whether for streaming entertainment or home working. Externally, the enclosed gardens wrap around 3 sides of the property and are a particularly appealing feature with the main front garden offering a sunny southerly aspect and a delightful mixture of lawns, established flower beds, vegetable plots, pond and patio areas. Just off from the rear garden there are 2 useful stone store sheds as well as a separate single garage, each with power and light, and in addition to a large, allocated area of off-road parking. *** To make it easier to field enquiries, please email us your interest in this opportunity - including details of who is proposed to be living in the property (as well as any children and /or pets) along with your current housing / job situation ***
Viewings are welcomed by appointment 6 days a week although be aware that viewings may require at least 24 hours' notice to arrange access. Please note that prior to any subsequent tenancy offer being accepted, all prospective tenants will be required to supply identification documents and proof of affordability.

Agent notes: these particulars have been prepared as a general guide only. A detailed survey has not been carried out, nor the services, appliances, fittings, etc, been tested. If room sizes are included, they are for guidance and illustration purposes only. They may not be to scale and should not be relied upon for furnishing or other purposes. If there are any important matters likely to affect your decision to proceed, please contact us before viewing the property.
Tenant protection: Moore Allen & Innocent is a member of the royal institution of chartered surveyor's client money protection scheme, and a member of the property ombudsman independent redress scheme. You can find out more details via our website or by contacting the office directly.

Landlords: do you own a similar property? Moore Allen & Innocent are an independent, multi-award winning, sales and lettings estate agency with over 175 years of property experience across the Cotswolds and beyond. If you have a similar property that you would like rented out or are looking for an agent to take away the stress and manage a property for you, we would be delighted to discuss how we can help. For more information regarding our services and a free, no-obligation review, please contact us today.

Property Ref: 593341_10180458

Share:

Similar Properties

The Street, OAKSEY

3 Bedroom Detached Bungalow | £1,495pcm

*** MOORE ALLEN & INNOCENT *** are delighted to offer this MODERN and DECEPTIVELY SPACIOUS 3 DOUBLE BEDROOM SINGLE STORE...

White Lodge, Braydon

3 Bedroom Bungalow | £1,495pcm

*** MOORE ALLEN & INNOCENT *** are delighted to bring to market this 3 double bedroom, 2 reception room bungalow within...

Mount Street, Cirencester

3 Bedroom Semi-Detached House | £1,495pcm

*** MOORE ALLEN & INNOCENT *** are delighted to offer this NEWLY UPDATED 3 DOUBLE BEDROOM Period town house just to the...

East End, Northleach

3 Bedroom Terraced House | £1,500pcm

*** MOORE ALLEN & INNOCENT *** are delighted to offer this SPACIOUS 3-DOUBLE BEDROOM family home near to the heart of th...

Farmington Rise, Northleach

3 Bedroom Semi-Detached House | £1,500pcm

Located in the highly desirable town of Northleach, this STUNNING three-bedroom SEMI DETCHACHED property has been fully...

London Road, POULTON

3 Bedroom Cottage | £1,550pcm

*** MOORE ALLEN & INNOCENT *** are delighted to offer this SPACIOUS 3-4 bedroom Cotswold cottage situated in this popula...

Moore Allen & Innocent (Cirencester)

33 Castle Street, Cirencester, Gloucestershire, GL7 1QD

01285 648100

How much is your home worth?

Use our short form to request a valuation of your property.

Request a Valuation
©2025 The Guild of Property Professionals. All rights reserved. Terms and Conditions | Privacy Policy | Cookie Policy | Complaints Policy | Members Login
The Guild of Property Professionals Trading Address: 121 Park Lane, London W1K 7AG. GPEA Limited. Registered in England & Wales.  Company No: 02819824.  Registered Office Address: 2 St. Stephen's Court, St. Stephen's Road, Bournemouth, Dorset, England, BH2 6LA.  VAT Registration No: 576 8795 61
Book a Property Valuation Update Cookies Preferences