Boston Spa, St Johns View, LS23

£1,800pcm

3 Bedroom Detached House for rent in Wetherby

1 3 2
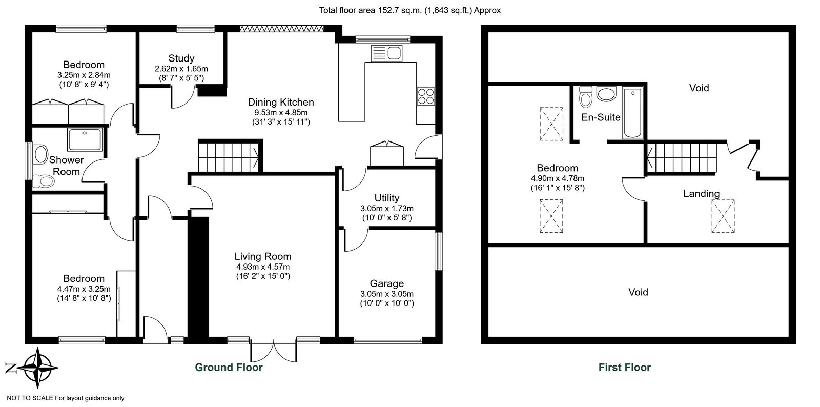
  • Individual stone-built detached dormer bungalow
  • Generous garden plot offering excellent privacy and mature surroundings
  • Stylish open-plan living kitchen diner with bi-fold doors to decked terrace
  • Spacious sitting room with wood-burning stove and patio doors to the front
  • Three double bedrooms including a principal suite with en-suite and eaves storage to the first floor
  • Modern shower room with quality fixtures and floor to ceiling tiling
  • Dedicated study/home office overlooking rear garden
  • Integral garage with electric door, power and utility access
  • Front garden with shaped lawn, ornamental pond and fruit trees
  • Private rear garden with summer house and raised deck

Set behind electric gates on a generous plot, this tastefully modernised three double bedroom detached bungalow offers privacy and contemporary living featuring an impressive open plan kitchen diner. 


Tucked away behind electric gates on a generous plot, this distinctive three bedroom detached dormer bungalow offers an exceptional blend of privacy, comfort and contemporary style. Enclosed by mature hedging and fencing, the home has been thoughtfully updated to meet the demands of modern living with a stunning open plan living dining kitchen. The accommodations benefits from gas fired central heating, CAT5 cabelling, automatic lighting in hallway and bathroom, and in further detail comprises :- 


Step inside to a welcoming hallway with exposed stone wall that flows into a stunning open-plan living kitchen diner. Designed for both everyday life and entertaining, the space features modern wall and base units, quartz worktops and premium integrated appliances. A central peninsula adds extra workspace with pendant lighting above.  With bi-folding doors that open onto a raised decked terrace - perfect for "al fresco dining" and social gatherings.  Wired to connect to Alexa/other smart devices along with USB ports. 


The ground floor also includes a home office and a spacious sitting room with a cosy wood-burning stove and patio doors to the front. There are two generous double bedrooms with fitted wardrobes and a sleek, modern shower room. A dedicated study provides a quiet spot for working from home, while a practical utility area connects directly to the integral garage, complete with power and lighting.


To the upstairs, a large landing area with comfortable space for seating/relaxing. the principal bedroom enjoys dual aspect Velux windows and benefits from a modern en-suite bathroom and useful eaves storage.


To the outside, the grounds are thoughtfully landscaped to the front with shaped lawn, an ornamental pond and established fruit trees. Gated side access leads to a low maintenance, gravelled rear garden, while the raised terrace directly accessible from the kitchen diner provides an ideal entertaining space. 


There is a generous driveway with comfortable parking for multiple vehicles. 


LANDLORDS REQUIREMENTS


1. An Assured Shorthold Tenancy for a certain term of 12 months.


2. Rent of £1,800 per calendar month, payable monthly in advance.


3. A credit check and references are required.


4. Pets considered subject to pet rental of £25 pcm per pet.


5. An EPC is available on this property


6. A refundable tenancy deposit £2,076


7.  We understand mains water, electricity and drainage are connected.


8. Broadband and mobile signal coverage can be checked via https://checker.ofcom.org.uk/


As well as paying the rent and payment in respect utilities, communication services, TV Licence and council tax you will be required to make the following permitted payments


Before the Tenancy Starts payable to Holroyd Miller 'The Agent'


Holding Deposit: 1 Week's Rent equalling £415


During The Tenancy payable to the Agent/ landlord


Payments of £41.67 + VAT (£50 inc VAT) if the Tenant requests a change to the tenancy agreement.


Payment of the cost of the key and or security device plus £15 per hour for the agents time if reasonably incurred


Early termination of Tenancy the Tenant is required to pay the rent as required under your Tenancy Agreement until a suitable Tenant is found and cover the Landlords/ Landlords Agents costs to cover any referencing and advertising costs.


Any other permitted payments, not included above, under the relevant legislation including contractual damages.


Renton & Parr are members of the Property Ombudsman Scheme and work in association with Holroyd Miller who are members of RICS Client Money Protection Scheme, which is a client money protection scheme. Holroyd Miller are also members of The Property Ombudsman Scheme which is a Redress Scheme. You can find out more details by contacting the agent direct.

Important Information

  • This Council Tax band for this property is: E

Property Ref: 845_50640

Share:

Similar Properties

Tockwith, The Old Malt Kiln, Westfield Road, YO26

3 Bedroom Terraced House | £1,800pcm

A unique three/four bedroom, three bathroom property boasting approx 1800 sq ft of tastefully decorated accommodation sk...

The Copse, Boston Spa, Wetherby, LS23 6WH

3 Bedroom Townhouse | £1,500pcm

This modern three-bedroom townhouse is located in a peaceful cul-de-sac on the edge of Boston Spa.  The accommodation is...

Church Fenton, Sandwath Drive, Tadcaster, LS24

3 Bedroom Terraced House | £1,300pcm

** Available to view by appointment Thursday 12th June from 4:30pm  **  A beautifully presented and tastefully decorated...

Wentworth Street, Wetherby, LS22 6BH

5 Bedroom Detached House | £3,750pcm

This stunning five bedroom, three bathroom executive family home is located on the highly favoured Bellway Homes develop...

Spofforth Hill, Wetherby, LS22 6SE

6 Bedroom Detached House | £6,500pcm

"Darnbrook" is one of just two sensational family homes that stands out with it’s impressive kerbside appeal. This remar...

Wetherby, Home Paddock House, Deighton Road, LS22

1 Bedroom Flat | £80,000

This modernised one bedroom first floor, purpose built retirement apartment is located within an attractive and well est...

Renton & Parr (Wetherby)

Wetherby, West Yorkshire, LS22 6LN

01937 582731

How much is your home worth?

Use our short form to request a valuation of your property.

Request a Valuation
©2025 The Guild of Property Professionals. All rights reserved. Terms and Conditions | Privacy Policy | Cookie Policy | Complaints Policy | Members Login
The Guild of Property Professionals Trading Address: 121 Park Lane, London W1K 7AG. GPEA Limited. Registered in England & Wales.  Company No: 02819824.  Registered Office Address: 2 St. Stephen's Court, St. Stephen's Road, Bournemouth, Dorset, England, BH2 6LA.  VAT Registration No: 576 8795 61
Book a Property Valuation Update Cookies Preferences