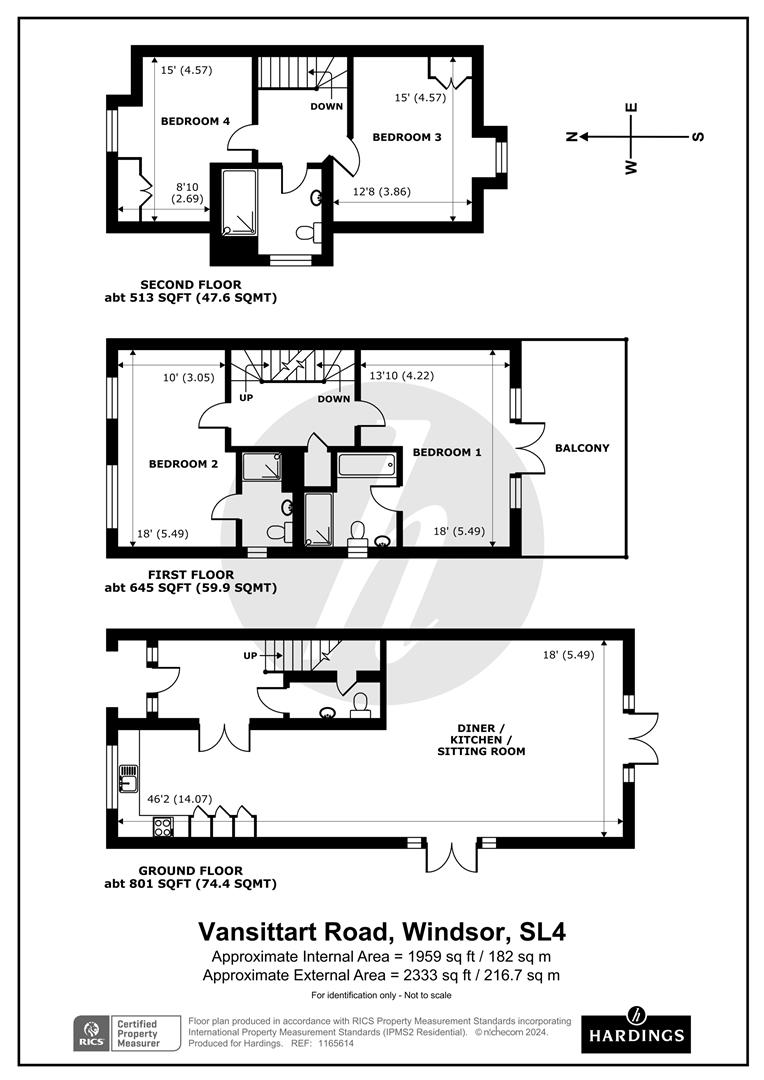
Vansittart Road, Windsor, SL4

£4,650pcm

4 Bedroom End of Terrace House for rent in Windsor

2 4 3
  • Collection of 4 beautiful Newbuild Townhouses by Prestigious Developer, BellView Group
  • End of Terrace
  • Principle Bedroom with En-Suite Bathroom & Terrace
  • Town Centre Location
  • Large Open Plan Kitchen/ Dining Room with Bi-Fold Doors Leading onto South & West Facing Gardensarden
  • 3 Further Double Bedrooms, 1x Ensuite Bathroom & Family Bathroom
  • Utility Room with WC
  • New Development
  • Off Street Parking
  • Available mid November

Forming part of a terrace of four properties, this is a luxurious four-bedroom mid terraced townhouse, with parking for several cars, built by luxury builders 'The BellView Group'. Located on a quiet residential road just a short walk to Windsor town centre, the property encompasses stylish and beautifully appointed accommodation throughout.

On the ground floor, there is an open-plan kitchen/dining room blending seamlessly into a spacious reception area replete with high ceilings and bi-fold doors opening onto a private west-facing private garden. Further benefits include a separate utility room with a cloakroom.

The principal bedroom, which is located on the first floor, enjoys a private terrace, ample storage and en-suite bathroom. There are a further three double bedrooms all offered with en-suite bathrooms.
The property is ideally located for the mainline British Rail links to London (Waterloo & Paddington), M25 & M40, excellent schools and Heathrow Airport.

Property Ref: 6500824_34204501

Share:

Similar Properties

Vansittart Road, Windsor, SL4

4 Bedroom Terraced House | £4,500pcm

Forming part of a terrace of four properties, this is a luxurious four-bedroom mid terraced townhouse, with parking for...

Clarence Road, Windsor, SL4

4 Bedroom Semi-Detached House | £3,950pcm

A delightful, Windsor town centre home of substantial size. Offering four bedrooms, four bathrooms and a sizeable open p...

Alexandra Road, Windsor , SL4

4 Bedroom Terraced House | £3,250pcm

An attractive 4 bedroom terraced period villa located on the fringes of the Golden Triangle, just a short walk to Windso...

Claremont Road, Windsor, SL4

4 Bedroom Villa | £5,500pcm

Welcome to Claremont Road, Windsor - a stunning property that exudes elegance and charm! This beautiful villa boasts 2 r...

Hanover Way, Windsor

1 Bedroom Apartment | Guide Price £140,000

A spacious one bedroom flat located on the first floor of a purpose built development on the outskirts of Windsor Town C...

Claremont Road, Windsor

1 Bedroom Studio Apartment | Offers Over £200,000

A studio conversion garden flat located in one of Windsor's most prestigious locations just moments' walk to Windsor's t...

Hardings Estate Agents (Windsor)

Windsor, Berkshire, SL4 1LD

01753 833118

How much is your home worth?

Use our short form to request a valuation of your property.

Request a Valuation
©2025 The Guild of Property Professionals. All rights reserved. Terms and Conditions | Privacy Policy | Cookie Policy | Complaints Policy | Members Login
The Guild of Property Professionals Trading Address: 121 Park Lane, London W1K 7AG. GPEA Limited. Registered in England & Wales.  Company No: 02819824.  Registered Office Address: 2 St. Stephen's Court, St. Stephen's Road, Bournemouth, Dorset, England, BH2 6LA.  VAT Registration No: 576 8795 61
Book a Property Valuation Update Cookies Preferences