New Road, Attleborough

Offers Over
£325,000
SSTC
This property listing is now SSTC

3 Bedroom Bungalow for sale in Attleborough

1 3 2
  • Detached three bedroom house offering approximately 1200 sq ft of living space
  • Sitting on a generous 120ft x 45ft plot with single garage / carport / parking for 4/5 cars
  • Secluded rear garden 45ft x 45ft with two sheds 10ft x 6ft and 6ft x 6ft and summer house
  • Two bathrooms one converted into a wet room and a newly fitted kitchen
  • Well presented throughout and freshly decorated in most rooms
  • Ideally placed for new primary school and town centre amenities
  • Towns railway station has regular services to Norwich and Cambridge
  • Easy access to the main A11 for those commuting to work by road
  • Motivated seller who needs to downsize due to age
  • Viewing strictly by appointment. Please see full online listing for other material information.

 


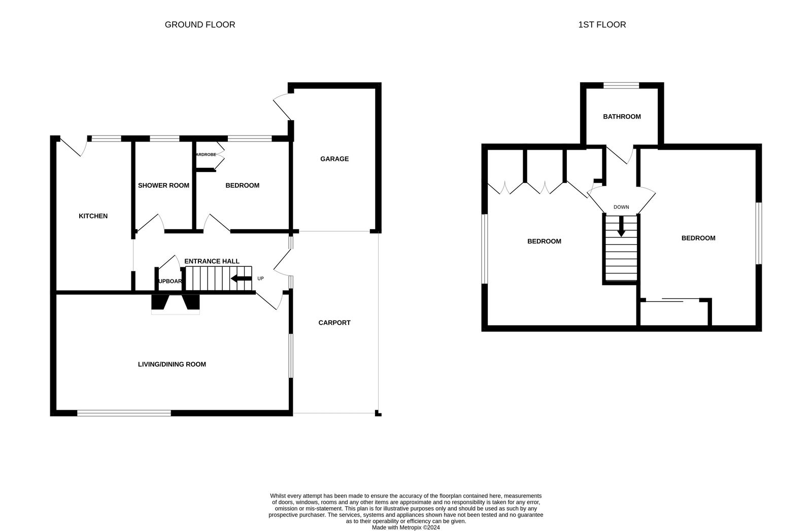
Situated on a generous plot of 120ft x 45ft, this detached three-bedroom house offers approximately 1200 sq ft of living space. The property features a single garage, carport for 4/5 cars, and a 45ft garden with two sheds and a summer house. The interior includes an entrance hall, spacious living room, kitchen/breakfast room, wet room, downstairs bedroom, two double bedrooms with fitted wardrobes, and a family bathroom. Conveniently located near sought-after schools, the A11 for commuting, town amenities, and the railway station, this property is ideal for those seeking a well-connected and spacious home.
 

Entrance Hall


Living Room - 6.71m x 3.4m (22'0" x 11'2")


Downstairs Bedroom - 3.56m x 2.64m (11'8" x 8'8")


Kitchen/Breakfast Room - 4.37m x 2.29m (14'4" x 7'6")


Wetroom - 2.54m x 1.5m (8'4" x 4'11")


Landing


Bedroom One with built in wardrobes - 4.14m x 3.38m (13'7" x 11'1")


Bedroom Two with fitted wardrobe - 5.18m x 3.4m (17'0" x 11'2")


Family Bathroom - 2.18m x 1.7m (7'2" x 5'7")


 


Plot Size - 36.58m x 13.72m (120'0" x 45'0")


Front Garden - 13.72m x 13.72m (45'0" x 45'0")


Carport - 5.18m x 3.05m (17'0" x 10'0")


Single Garage - 4.88m x 2.49m (16'0" x 8'2")


 


AGENT’S NOTES -


Planning : None known. Details can be found on the Breckland Council Planning website.


Covenants, Rights and Restrictions: Please enquire with the selling agents for any information.


Broadband :  Ultrafast FTTP.  See Ofcom checker and Openreach website for more details.


Mobile phone :  Likely outdoor and limited indoor coverage -   See Ofcom checker.


Flood risk : Very low risk surface, rivers and seas according to Gov.uk website


Services :  Mains Gas, Electricity, drains and water.


Local authority :  Norfolk County Council and Breckland Council


Council Tax Band :  C


Tenure :  Freehold


EPC : D


Rear Garden - 13.72m x 13.72m (45'0" x 45'0")


Garden Shed - 3.05m x 1.83m (10'0" x 6'0")


Garden Shed - 1.83m x 1.83m (6'0" x 6'0")


Garden Room - 2.44m x 2.13m (8'0" x 7'0")


Parking for 4/5 cars

Important Information

  • This is a Freehold property.
  • This Council Tax band for this property is: C

Property Ref: 680_886146

Share:

Similar Properties

Sheppard Drove, Wymondham, NR18

3 Bedroom Detached House | Offers in region of £325,000

Moneyproperties are delighted to be marketing this immaculately presented three-bedroom detached house located on a soug...

Bramble Way, Wymondham, NR18

3 Bedroom Semi-Detached House | Offers in region of £325,000

Moneyproperties bring to market this spacious three-bedroom semi-detached house located on the popular Harts Farm develo...

Vicarage Road, Deopham, NR18

3 Bedroom Semi-Detached House | £325,000

Moneyproperties bring to market this spacious three/four-bedroom semi-detached house occupying a generous plot with a la...

Clifton Road, Wymondham, NR18

3 Bedroom Bungalow | Offers in region of £340,000

Moneyproperties bring to market this spacious three-bedroom detached bungalow conveniently located within ease of access...

Millway, Wymondham, NR18

3 Bedroom Bungalow | Offers in region of £350,000

Moneyproperties are delighted to bring to market this three-bedroom detached bungalow that has undergone an extension of...

Pople Street, Wymondham, NR18 0PS

3 Bedroom End of Terrace House | Offers in region of £350,000

A Rare Opportunity to Own a Piece of Wymondham’s History .Steeped in heritage, this delightful Georgian town centre cott...

Money Properties (Wymondham)

17/18 Market Place, Wymondham, Norfolk, NR18 0AX

01953 423 006

How much is your home worth?

Use our short form to request a valuation of your property.

Request a Valuation

Mortgage Calculator

Amount Borrowed: £
Total Amount Repayable: £
Total Monthly Payment: £
©2025 The Guild of Property Professionals. All rights reserved. Terms and Conditions | Privacy Policy | Cookie Policy | Complaints Policy | Members Login
The Guild of Property Professionals Trading Address: 121 Park Lane, London W1K 7AG. GPEA Limited. Registered in England & Wales.  Company No: 02819824.  Registered Office Address: 2 St. Stephen's Court, St. Stephen's Road, Bournemouth, Dorset, England, BH2 6LA.  VAT Registration No: 576 8795 61
Book a Property Valuation Update Cookies Preferences