Millway, Wymondham, NR18

Offers in region of
£350,000

3 Bedroom Bungalow for sale in Wymondham

1 3 2
  • Spacious three bedroom detached bungalow
  • Extended to provide a generous principle bedroom with an ensuite
  • 15ft living room with bi-fold doors to the rear garden
  • Three well-proportioned bedrooms
  • Open plan kitchen/diner
  • Single garage with off-road parking
  • Quiet location within ease of access to the town centre and bus routes
  • 50ft enclosed rear garden with separate courtyard area
  • Must be viewed to fully appreciate
  • See our full online listing for further details including flood risk, broadband speed and other material information.


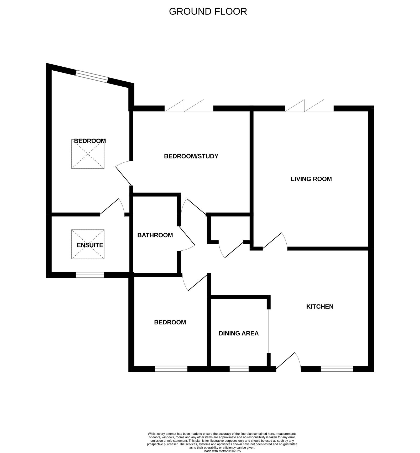
Moneyproperties are delighted to bring to market this three-bedroom detached bungalow that has undergone an extension offering approximately 925 sq ft of living space. The accommodation comprises of an open plan kitchen/diner, generous living room with bi-fold doors to the garden, three well-proportioned bedrooms with an ensuite to bedroom one along with a separate bathroom. To the outside the property enjoys an enclosed 53’ x 40’ rear garden with a separate courtyard garden in front of the extension. Further benefits include a single garage, off-road parking for x1 car and ease of access to the A11, town centre and local bus routes.



Kitchen - 3.35m x 3.18m (11'0" x 10'5")


Dining Area - 2.74m x 1.83m (9'0" x 6'0")


Living Room - 4.67m x 3.68m (15'4" x 12'1")


Bedroom One - 4.04m x 3.2m (13'3" x 10'6")


Ensuite - 3.2m x 1.78m (10'6" x 5'10")


Bedroom Two - 3.96m x 3.28m (13'0" x 10'9")


Bedroom Three - 3.45m x 2.57m (11'4" x 8'5")


Bathroom - 2.51m x 1.68m (8'3" x 5'6")


Garage - 5m x 2.59m (16'5" x 8'6")


Rear Garden - 16.15m x 12.19m (53'0" x 40'0")


AGENT’S NOTES -


Planning :  Details, if any, can be found on the South Norfolk Council Planning website.


Covenants, Rights and Restrictions:  Please enquire with the selling agents for any information.


Broadband :  Ultrafast FTTP. See Ofcom checker and Openreach website for more details.


Mobile phone :  See Ofcom checker for coverage details.


Flood risk : Very Low risk surface, rivers and seas according to Gov.uk website


Services :  Mains services connected


Local Authority :  Norfolk County Council and South Norfolk Council


Council Tax Band :  C


Tenure :  Freehold


 

Important Information

  • This is a Freehold property.
  • This Council Tax band for this property is: C

Property Ref: 680_1184603

Share:

Similar Properties

Clifton Road, Wymondham, NR18

3 Bedroom Bungalow | Offers in region of £350,000

Moneyproperties bring to market this spacious three-bedroom detached bungalow conveniently located within ease of access...

Chapel Road, Morley St Botolph, NR18

3 Bedroom Semi-Detached House | £350,000

Moneyproperties are thrilled to be marketing this three-bedroom semi-detached cottage boasting character and charm throu...

Pople Street, Wymondham, NR18 0PS

3 Bedroom End of Terrace House | Offers in region of £350,000

A Rare Opportunity to Own a Piece of Wymondham’s History Steeped in heritage, this delightful Georgian town centre cotta...

Orchard Way, Wymondham, Norfolk. NR18 0NX

3 Bedroom Bungalow | Guide Price £360,000

This charming detached three-bedroom bungalow nestled in the sought-after Orchard Way, just minutes away from the histor...

Lupin Close, Wymondham, NR18

5 Bedroom Detached House | Offers in region of £360,000

Moneyproperties are delighted to bring to market this stylish and modern five bedroom detached family home located on a...

Clematis Way, Wymondham, NR18

5 Bedroom Detached House | Offers in region of £365,000

Moneyproperties offer this well-presented four/five bedroom detached family home located in a popular residential develo...

Money Properties (Wymondham)

17/18 Market Place, Wymondham, Norfolk, NR18 0AX

01953 423 006

How much is your home worth?

Use our short form to request a valuation of your property.

Request a Valuation

Mortgage Calculator

Amount Borrowed: £
Total Amount Repayable: £
Total Monthly Payment: £
©2025 The Guild of Property Professionals. All rights reserved. Terms and Conditions | Privacy Policy | Cookie Policy | Complaints Policy | Members Login
The Guild of Property Professionals Trading Address: 121 Park Lane, London W1K 7AG. GPEA Limited. Registered in England & Wales.  Company No: 02819824.  Registered Office Address: 2 St. Stephen's Court, St. Stephen's Road, Bournemouth, Dorset, England, BH2 6LA.  VAT Registration No: 576 8795 61
Book a Property Valuation Update Cookies Preferences