41 Rockhill

Offers in region of
£499,950
SSTC
This property listing is now SSTC

6 Bedroom Semi-Detached House for sale in DONAGHADEE

4 6 2

Set within an exclusive and highly sought-after development, this beautifully presented semi-detached home offers a rare opportunity to acquire a spacious, stylish, and exceptionally finished property in a prime residential location. Situated just off Warren Road, it enjoys easy access to Donaghadee, Bangor, and Groomsport, all known for coastal walks, scenic drives, boutique shops, and vibrant dining.

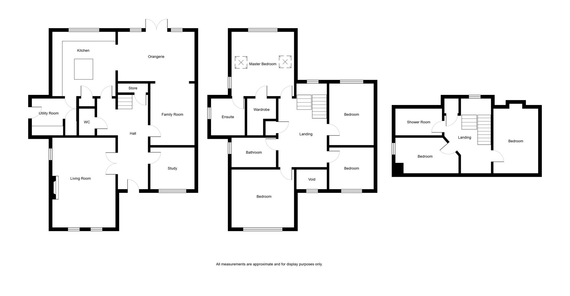
Internally, the home is immaculately maintained and tastefully decorated, requiring nothing more than moving in. The ground floor offers bright, versatile accommodation including a welcoming living room with a stone fireplace and gas coal-effect fire, a separate study or reception room, and a convenient cloakroom with WC.

At the heart of the home is a stunning open-plan kitchen, dining, and family area. It features a range of high and low-level units, black Quartz worktops, a Belfast sink, and a central island with seating. Double patio doors open onto the rear garden, creating an ideal space for everyday living and entertaining.

The first floor comprises three well-proportioned bedrooms, including a principal suite with garden views and a luxurious en suite with freestanding bath, floating vanity, and high-end tiling. A separate fully tiled shower room serves the remaining bedrooms. The second floor adds three further spacious bedrooms and a modern family bathroom.

Externally, the property benefits from a landscaped front garden and a private, enclosed rear garden with paved entertaining area and raised flower beds. A large brick-paved driveway provides ample parking and leads to an additional enclosed area and a detached garage with power and lighting.

Further benefits include gas-fired central heating with underfloor heating on the ground floor, double glazing, generous storage, and quality finishes throughout.

Early viewing is highly recommended due to expected high demand.

.Fantastic Site Within This Popular and Exclusive Development Located off Warren Road
.Prestigious and Highly Sought After Residential Location
.Extended Semi Detached Family Home Occupying a Quiet Cul de Sac Location
.Immaculately Presented Throughout
.Six Well Proportioned Bedrooms
.Master Bedroom with En Suite
.Downstairs WC / Utility Area
.Living Room with Attractive Stone Fireplace and Gas Coal Effect Fire
.Underfloor Heating Throughout the Ground Floor
.Luxury Contemporary White Bathroom Suite
.Separate Luxury Shower Room
.Gas Fired Central Heating
.uPVC Double Glazing
.Brick Paviour Driveway with Parking for Numerous Cars, Caravans, Boats, and Horse Boxes, etc, Leading to Additional Parking Area
.Easily Maintained Front Garden in Lawns
.Fully Enclosed Rear Garden in Lawns Which is an Ideal Space for Children at Play or For Adults to Relax
.Good Sized Detached Garage
.Easily Accessible for The City Commuter Being Only a Short Distance From Bangor, Newtownards, and Only Twenty Minutes From Belfast City Centre
.In Close Proximity to Many Local Amenities Including Donaghadee Golf Club
.Versatile and Flexible Accommodation
.Early Viewing Essential

As part of our obligations under the Money Laundering, Terrorist Financing and Transfer of Funds (Information on the Payer) Regulations 2017, all Estate Agents are required to verify the identity of purchasers involved in a property transaction.
To comply with these obligations, all purchasers will be required to complete Customer Due Diligence (AML) identity checks. These checks are carried out on our behalf by our trusted third-party provider, Thirdfort.
A charge will apply of ?20 + VAT per purchaser.

Entrance - Painted hardwood front door with double glazed top light.

Entrance Hall - With natural Florence stone tiled floor, intruder alarm control panel, chrome low voltage spotlighting, under stairs storage cupboard.

Living Room - Wood laminate flooring with a stone fireplace and gas coal effect fire

Study - Wood laminate flooring

Downstairs Wc - Low flush WC, pedestal wash hand basin with mixer tap and tiled splash back, natural Florence stone tiled floor, chrome low voltage spotlighting.

Kitchen - Modern fully fitted hand painted bespoke kitchen with granite work surfaces, inset Belfast twin sink unit with brushed stainless steel mixer taps, space for range type cooker with five ring gas hob, built in recess and extractor hood, overhead mantel, glass display cabinets, integrated fridge freezer, island unit with space for casual dining, chrome low voltage spotlighting, natural Florence stone style floor, large built in cloaks/storage cupboard, square arch to dining/garden room.

Utility Room -

Garden Room - Natural Florence stone tiled floor, uPVC double glazed French doors to rear garden, Velux windows, chrome low voltage spotlighting, feature glass block detail, square arch to family room.

Family Room - Oak Wooden Floor

First Floor -

Landing - Minstrel gallery style landing with feature porthole window, large built in linen press.

Master Bedroom - Vaulted ceiling with Velux windows times four, remote control electric blinds and velux water sensitive windows, dual aspect windows, rural outlook, tv point, large walk in robe.

En Suite Bathroom - White suite comprising: low flush WC, feature floating wash hand basin with stone tiled splash back, roll top free standing bath on oak stand with contemporary chrome mixer taps, telephone hand shower, stone tiled splash back, natural colisieum stone tiled floor.

Bedroom Two - Double room with laminate oak flooring

Bedroom Three - Double room with mature outlook to the garden

Bedroom Four -

Bathroom - Contemporary white suite comprising: low flush WC, floating wash hand basin with contemporary chrome mixer taps, feature tiled splash back, rectangular panelled bath with chrome mixer taps and telephone hand shower, feature tiled splash back, built in separate fully tiled shower cubicle with built in chrome Aqualisa shower unit, heated towel rail, ceramic tiled floor, extractor fan.

Second Floor -

Landing - Access to roofspace, built in storage cupboard with light

Bedroom Five - Velux windows, TV Point, delightful rural outlook.

Bedroom Six - TV Point

Shower Room - White suite comprising: floating wash hand basin with chrome mixer taps, feature tiled splash back, low flush WC, separate built in fully tiled half times shower cubicle with thermostatically controlled power shower unit, mosaic glass border detail, ceramic tiled floor, extractor fan.

Outside - Fully enclosed split level garden laid in lawns with mature sycamore tree, raised flowerbed, large paved patio areas, outside light, water tap. Front garden in lawn bordered by flowerbeds with brick paviour driveway for ample parking leading to garage.

Garage - With remote control, roller shutter door, light and power, built in work bench, uPVC double glazed door to side, uPVC soffits and fascia boards.

Donaghadee is a picturesque coastal town on the North Down coastline, celebrated for its breathtaking sea views and nearby Copeland Islands

With charming streets filled with local shops, cafes, and outdoor activities like sailing, it offers a vibrant community spirit. Just a short drive from Belfast, Donaghadee has been voted as one of the best places to live, combining natural beauty with a welcoming atmosphere.

Property Ref: 34570365

Share:

Similar Properties

3 Newtownards Road

5 Bedroom House | Offers in region of £499,950

An opportunity to acquire an exceptional detached family home, this property showcases how to tastefully renovate and mo...

5 Stockbridge Park

4 Bedroom Detached House | Offers in region of £489,950

Situated in a quiet cul-de-sac off Stockbridge Road, this superb detached home offers a bright, modern and flexible layo...

Shandon Close, Bangor

6 Bedroom House | Offers in region of £479,950

Located in a small gated development of only four properties here is an ideal opportunity to purchase a substantial deta...

Newtownards Road, Donaghadee

5 Bedroom Detached House | Offers in region of £529,950

Situated on the outskirts of the picturesque coastal town of Donaghadee, this exceptional detached family home offers ch...

110 Shore Road

6 Bedroom Detached House | Offers in region of £675,000

John Minnis Estate Agents are proud to present this truly exceptional new build detached residence, extending to approxi...

43 Loughdoo Road

4 Bedroom Detached Bungalow | Offers in region of £694,950

Located in the outskirts of the popular and picturesque coastal town of Portaferry in the Ardkeen area, here is an ideal...

John Minnis Estate Agents (Donaghadee)

Donaghadee, County Down, BT21 0AG

028 9188 8881

How much is your home worth?

Use our short form to request a valuation of your property.

Request a Valuation

Mortgage Calculator

Amount Borrowed: £
Total Amount Repayable: £
Total Monthly Payment: £
©2026 The Guild of Property Professionals. All rights reserved. Terms and Conditions | Privacy Policy | Cookie Policy | Complaints Policy | Members Login
The Guild of Property Professionals Trading Address: 121 Park Lane, London W1K 7AG. GPEA Limited. Registered in England & Wales.  Company No: 02819824.  Registered Office Address: 2 St. Stephen's Court, St. Stephen's Road, Bournemouth, Dorset, England, BH2 6LA.  VAT Registration No: 576 8795 61
Book a Property Valuation Update Cookies Preferences