Ivybridge, Devon

£475,000

4 Bedroom Detached House for sale in Ivybridge

2 4 2
  • Red brick detached house
  • Immaculately presented throughout
  • Lounge & separate dining room
  • Kitchen/breakfast room
  • Entrance hall & downstairs cloakroom
  • 4 spacious bedrooms
  • Principal ensuite & family bathroom
  • Garage & driveway
  • Enclosed rear garden
  • No onward chain

Elegant, detached red-brick property situated in a quiet street within the historic town of Ivybridge. In immaculate condition throughout it briefly comprises an entrance hall & downstairs wc, lounge, separate dining room & a spacious kitchen/breakfast room whilst upstairs there are 4 generous bedrooms - the principal offering ensuite facilities - & the family bathroom. Outside benefits from a driveway, garage & an enclosed, low-maintenance rear garden. The house is being sold with no onward chain.

Button Lane, Ivybridge, Pl21 0Ge -

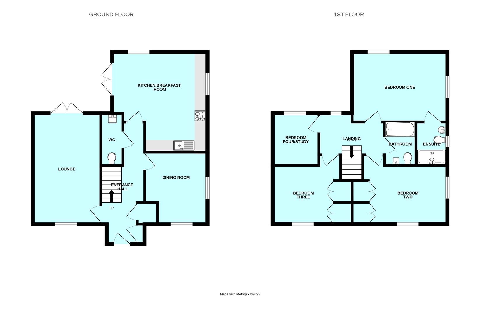
Accommodation - Composite door, with inset double-glazed featured panel, opening into the entrance hall.

Entrance Hall - 5.55 x 1.79 (18'2" x 5'10") - Doors providing access to the ground floor accommodation. Storage cupboards. Stairs ascending to the first floor with further under-stairs storage.

Lounge - 5.14 x 3.10 (16'10" x 10'2") - uPVC double-glazed window to the front elevation. uPVC double-glazed patio doors opening to the rear garden.

Dining Room - 3.29 x 2.97 (10'9" x 9'8") - Dual aspect with uPVC double-glazed windows to the front and side elevations.

Kitchen/Breakfast Room - 4.60 x 4.58 (15'1" x 15'0") - Fitted with a high quality white, high-gloss range of base and wall-mounted units incorporating a square-edged laminate worktop with inset 4-ring electric hob and stainless-steel extractor over. Inset one-&-a-half bowl stainless-steel sink with mixer tap. Integral electric over, fridge, freezer, dishwasher and washing machine. The boiler is housed within the end cupboard. uPVC double-glazed patio door opening onto the garden. Dual aspect with uPVC double-glazed windows to the side and rear elevations.

Downstairs Wc - 2.35 x 0.85 (7'8" x 2'9") - Close-coupled wc and pedestal wash handbasin with mixer tap.

First Floor Landing - 3.02 x 1.89 (9'10" x 6'2") - A generous landing with doors providing access to the first floor accommodation. Drop-down hatch providing access to the loft. uPVC double-glazed window to the rear elevation.

Bedroom One - 4.60 x 3.06 (15'1" x 10'0") - Dual aspect with uPVC double-glazed windows to the side and rear elevations. Door opening into the ensuite.

Ensuite - 2.06 x 1.17 (6'9" x 3'10") - Fitted with a matching suite comprising a walk-in shower unit with an electric shower, pedestal wash handbasin with mixer tap and close-coupled wc. Shaving point. Extractor. Obscured uPVC double-glazed window to the side elevation.

Bedroom Two - 3.97 x 2.68 (13'0" x 8'9") - Dual aspect with uPVC double-glazed windows to the front and side elevations. Built-in wardrobes.

Bedroom Three - 3.17 x 2.76 (10'4" x 9'0") - uPVC double-glazed window to the front elevation. Built-in wardrobes.

Bedroom Four - 2.26 x 2.15 (7'4" x 7'0") - uPVC double-glazed window to the rear elevation.

Bathroom - 2.06 x 1.71 (6'9" x 5'7") - Fitted with a matching suite comprising a panelled bath with mixer tap and mains-fed shower over, pedestal wash handbasin with mixer tap and close-coupled wc. Extractor.

Garage - 5.33 x 2.97 (17'5" x 9'8") - Up-&-over door. Power and lighting.

Outside - The property is approached from the pavement bordered by mature hedging. The driveway runs alongside the property, providing off-road parking for 2 vehicles and in turn leading to the garage. A wooden gate provides access to the rear garden which is enclosed by fencing and mainly laid to astroturf with a stone patio and an area of stone chippings.

Council Tax - South Hams District Council
Council Tax Band: E

Services - The property is connected to all the mains services: gas, electricity, water and drainage.

What3words - ///shelved.upholding.cheek

Property Ref: 11002701_34337180

Share:

Similar Properties

Plympton, Plymouth

4 Bedroom Detached House | Offers Over £475,000

This exceptional, detached property is situated in a quiet cul-de-sac in the Chaddlewood area of Plympton, benefiting fr...

Plympton, Plymouth

4 Bedroom Detached House | £475,000

An immaculately presented detached family home situated in a popular cul-de-sac within the Chaddlewood area. The accommo...

Plympton, Plymouth

4 Bedroom Detached House | Offers Over £465,000

Well-presented extended Stanbury-built detached house sitting on a generous corner plot, offering a double driveway & do...

Plympton, Plymouth

4 Bedroom Semi-Detached House | Offers Over £480,000

An exceptional, one-off 4-bedroom property which has been extensively renovated & is now an extremely modern, attractive...

Shaugh Prior, Plymouth

3 Bedroom End of Terrace House | £590,000

Original farmhouse in a splendid location with fabulous views, surrounded by beautiful, formal gardens, paddocks, a stab...

Plympton, Plymouth

4 Bedroom Detached House | £595,000

Built to an extremely high specification by a respected builder, Julian Marks is delighted to present this substantial n...

Julian Marks Estate Agents (Plympton)

Plympton, Plymouth, PL7 2AA

01752 301002

How much is your home worth?

Use our short form to request a valuation of your property.

Request a Valuation

Mortgage Calculator

Amount Borrowed: £
Total Amount Repayable: £
Total Monthly Payment: £
©2025 The Guild of Property Professionals. All rights reserved. Terms and Conditions | Privacy Policy | Cookie Policy | Complaints Policy | Members Login
The Guild of Property Professionals Trading Address: 121 Park Lane, London W1K 7AG. GPEA Limited. Registered in England & Wales.  Company No: 02819824.  Registered Office Address: 2 St. Stephen's Court, St. Stephen's Road, Bournemouth, Dorset, England, BH2 6LA.  VAT Registration No: 576 8795 61
Book a Property Valuation Update Cookies Preferences