The Becketts, Stowmarket

Guide Price
£260,000
SSTC
This property listing is now SSTC

3 Bedroom Semi-Detached House for sale in Stowmarket

3 1
  • CHAIN FREE
  • POPULAR CHILTON HILL DEVELOPMENT
  • WELL PRESENTED SEMI
  • THREE BEDROOMS
  • FIRST FLOOR BATHROOM
  • GROUND FLOOR BATHROOM
  • SITTING & DINING ROOM
  • FITTED KITCHEN
  • DRIVEWAY PARKING & GARAGE
  • ESTABLISHED REAR GARDEN

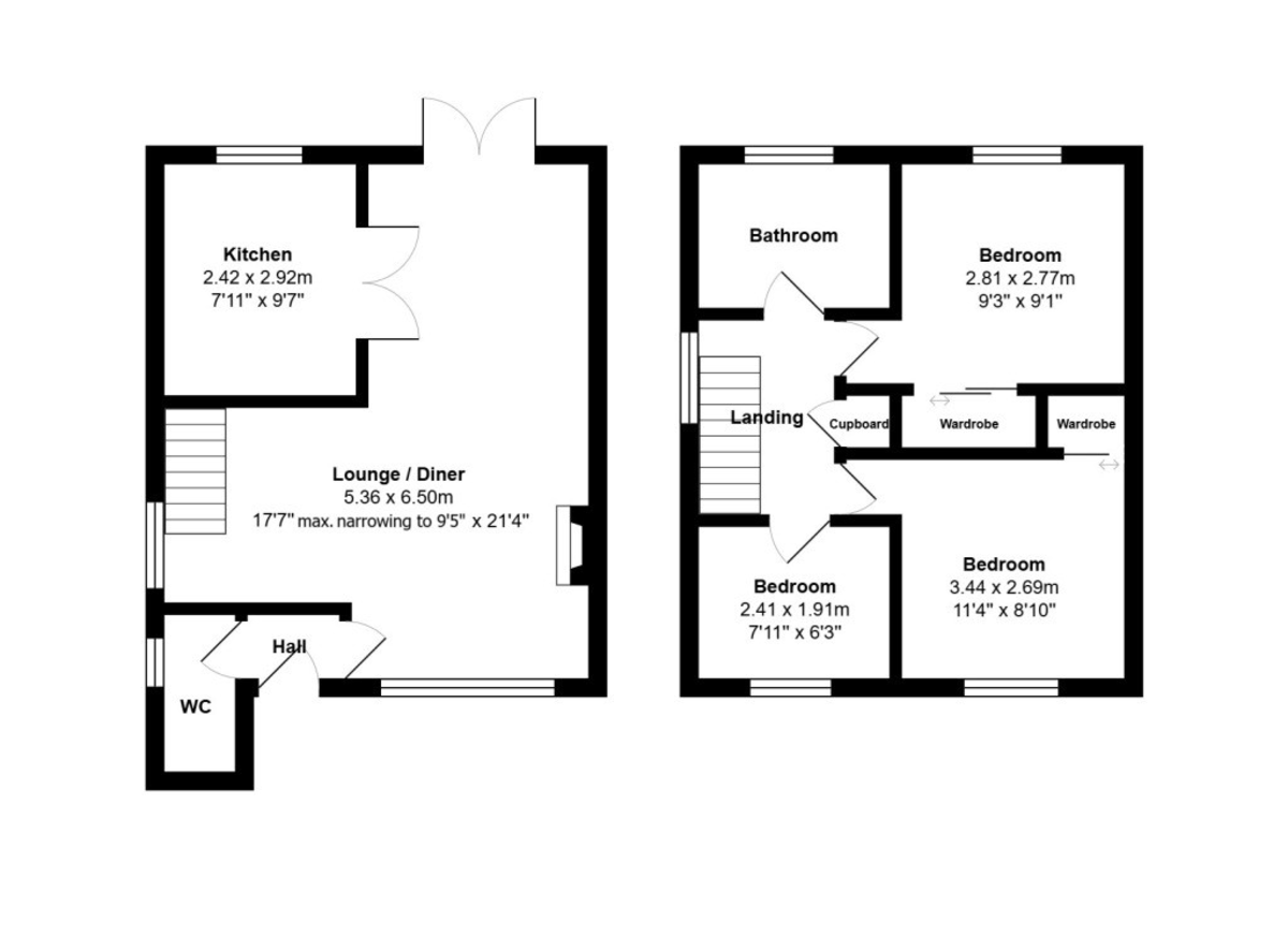
INTRODUCTION CHAIN FREE - Situated on the modern Chilton Hall Development in Stowmarket, convenient to the town centre and train station, lies this nicely presented three bedroom semi-detached house. The property benefits from double glazing, gas central heating, driveway providing off-road parking, garage, and fully enclosed rear garden. The accommodation is well proportioned and briefly comprises entrance lobby, cloakroom, 21ft sitting and dining room, fitted kitchen, first floor landing, three bedrooms, and family bathroom. Early viewing is highly advised.

Stowmarket is a market town situated on the A14 trunk road between Bury St Edmunds and Ipswich and is on the main railway line between London Liverpool Street and Norwich. The town lies on the River Gipping which is joined by its tributary, the River Rat, to the South of the town and boasts a wide range of amenities including Stowmarket High School, a church, leisure centre, health centre and is home to the Museum of East Anglian Life. 

SHELTERED ENTRANCE Double glazed door to entrance lobby. 

ENTRANCE LOBBY Door to cloakroom and sitting and dining room. 

SITTING & DINING ROOM 17' 7" narrowing to 9' 5" x 21' 4" (5.36m x 6.5m) Double glazed shallow bay window to front, two radiators, dado rail, television and broadband points, stairs with spindle railed banister rising to firs floor, double doors to kitchen, double glazed French Doors opening to garden. 

KITCHEN 7' 11" x 9' 7" approx. (2.41m x 2.92m) Double glazed window to side, a range of wood effect base and eye level fitted cupboard and drawer units, wall mounted gas fired boiler, rolled edge work surface, built-in electric oven, inset electric hob with extractor over, space for fridge freezer, under counter space for washing machine, tiled splash back, wood effect flooring. 

CLOAKROOM Obscure double glazed window to side, radiator, low level WC, mounted hand wash basin, tiled splash back, wood effect flooring. 

STAIRS RISING TO FIRST FLOOR  

LANDING Double glazed window to side, built-in cupboard, loft access, doors to. 

BEDROOM ONE 11' 4" x 8' 10" approx. (3.45m x 2.69m) Double glazed window to front, radiator, built-in wardrobe. 

BEDROOM TWO 9' 3" x 9' 1" approx. (2.82m x 2.77m) Double glazed window to rear, radiator, built-in wardrobe. 

BEDROOM THREE 7' 11" x 6' 3" approx. (2.41m x 1.91m) Double glazed window to front, radiator. 

BATHROOM Obscure double glazed window to rear, radiator, panel bath with mixer tap and shower attachment, pedestal hand wash basin, low level WC, tiled splash backs, wood effect flooring, extractor fan. 

OUTSIDE The frontage consists of an area laid to mature lawn and slate chip bed with a brick paved side driveway providing off-road parking and access to a detached garage. Gated pedestrian access to the rear reveals an enclosed established garden, mainly laid to mature lawn with Easterly facing outlook, a pathway leads to a personal door accessing the garage. There is an external tap, the picket fencing surrounding the patio will be removed. 

DETACHED GARAGE 8' 1" x 17' 6" approx. (2.46m x 5.33m) Up and over entry door, window to rear, personal door to garden, pitched roof, mains power and lighting. 

MID SUFFOLK COUNCIL Tax band C - £2,065.98 PA (2025-2026). 

NEAREST SCHOOLS (.GOV ONLINE) Wood Ley primary and Stowmarket secondary. 

DIRECTIONS Leaving Stowmarket town centre, follow Union St W to Gipping Way/A1308, turn left onto Gipping Way/A1308, go through 1 roundabout, take Chilton Way to The Becketts, the destination is on the right. 

BROADBAND & MOBILE PHONE COVERAGE Broadband- To check the broadband coverage available in the area go to
https://checker.ofcom.org.uk/en-gb/broadband-coverage

Mobile Phone- To check mobile phone coverage in the area go to
https://checker.ofcom.org.uk/en-gb/mobile-coverage 

STAMP DUTY LAND TAX (SDLT) On all property and land transactions, the buyer needs to be aware that there is potentially a stamp duty land tax amount to pay on their completed purchase.
The link below will take you to the government online calculator to assist you with working out the cost for this tax and if it is applicable to you.

www.tax.service.gov.uk/calculate-stamp-duty-land-tax/!/intro 

DIGITAL MARKETS, COMPETITION AND CONSUMER ACT 2024 (DMCC) Your Ipswich Ltd has not tested any electrical items, appliances, plumbing or heating systems and therefore cannot testify that they are operational. These particulars are set out as a general outline only for the guidance of potential purchasers or tenants and do not constitute an offer or contract. Photographs are not necessarily comprehensive or current and all descriptions, dimensions, references to condition necessary permissions for use and occupation and other details are given in good faith and believed to be correct but should not be relied upon as statements of, or representations of, fact. Intending purchasers or tenants must satisfy themselves by inspection or otherwise as to the correctness of each of them. We have taken steps to comply with the Digital Markets, Competition and Consumer Act 2024 (DMCC), which require both the seller and their agent to disclose anything, within their knowledge, that would affect the buying decision of the average consumer. If there are any aspects of this property that you wish to clarify before arranging an appointment to view or considering an offer to purchase, please contact us and we will make every effort to be of assistance.

Your Ipswich Ltd, as part of their service to both vendor and purchaser, offer assistance to arrange mortgage and insurance policies, legal services, energy performance certificates, and the valuation and sale of any property relating to any purchaser connected to this transaction. Your Ipswich Ltd confirms they will not prefer one purchaser above another solely because he/she has agreed to accept the offer of any other service from Your Ipswich Ltd. Referral commission (where received) is in the range of £60 to £200. 

Property Ref: 100138005422

Share:

Similar Properties

Dales Road, Ipswich

3 Bedroom Semi-Detached House | £260,000

NO ONWARD CHAIN - Your Ipswich Estate Agents are delighted to be offering for sale this 3 bedroom semi-detached house lo...

Chequer Field, Sutton Heath, Woodbridge

3 Bedroom Semi-Detached Bungalow | £260,000

NO ONWARD CHAIN - An ideal opportunity to secure this 3 bedroom semi-detached bungalow situated on the Sutton Heath deve...

Margate Road, Ipswich

2 Bedroom Semi-Detached House | Guide Price £260,000

CHAIN FREE - A cherished and cared for two double bedroom semi-detached house, well positioned on a no through road in t...

Kensington Road, Ipswich

3 Bedroom Semi-Detached House | Guide Price £265,000

A characterful, circa 1920's three bedroom semi-detached family home located to the popular North West of Ipswich fringi...

Dales Road, Ipswich

2 Bedroom Semi-Detached Bungalow | Guide Price £269,500

CHAIN FREE AND CHERISHED - A well proportioned two double bedroom single bay semi-detached bungalow offering well presen...

Beechcroft Road, Ipswich, Suffolk

3 Bedroom Semi-Detached House | Guide Price £274,000

NO ONWARD CHAIN - Ipswich & Suffolk estate agents are delighted to be offering for sale this 3 bedroom semi-detached fam...

Your Ipswich (Ipswich)

125 Dale Hall Lane, Ipswich, Suffolk, IP1 4LS

01473 289333

How much is your home worth?

Use our short form to request a valuation of your property.

Request a Valuation

Mortgage Calculator

Amount Borrowed: £
Total Amount Repayable: £
Total Monthly Payment: £
©2026 The Guild of Property Professionals. All rights reserved. Terms and Conditions | Privacy Policy | Cookie Policy | Complaints Policy | Members Login
The Guild of Property Professionals Trading Address: 121 Park Lane, London W1K 7AG. GPEA Limited. Registered in England & Wales.  Company No: 02819824.  Registered Office Address: 2 St. Stephen's Court, St. Stephen's Road, Bournemouth, Dorset, England, BH2 6LA.  VAT Registration No: 576 8795 61
Book a Property Valuation Update Cookies Preferences