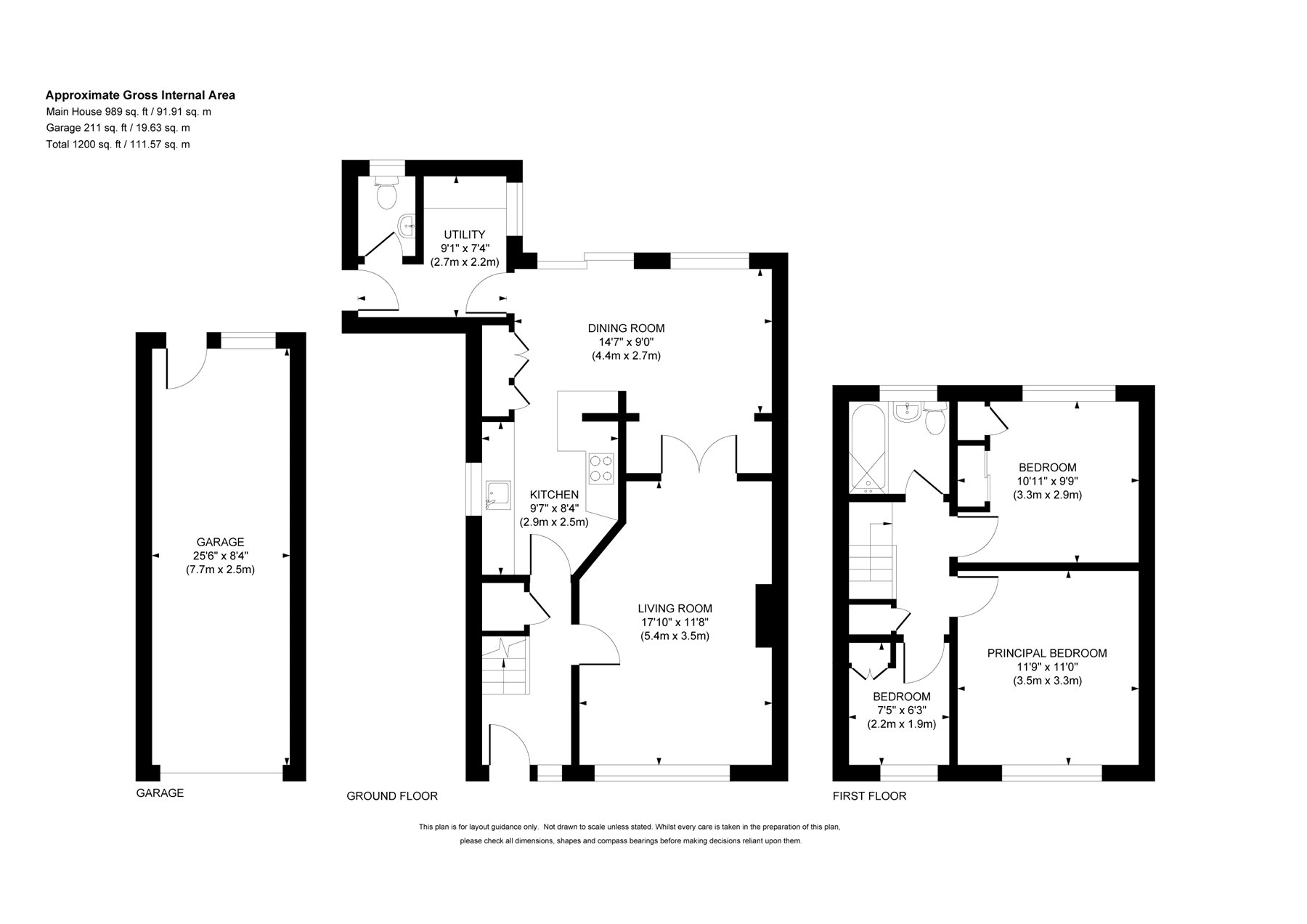
- Extended three-bedroom semi-detached home
- Recently updated kitchen
- Dining room with garden access
- Utility room & downstairs cloakroom
- Over 60ft private rear garden
- Driveway & garage
- Quiet cul-de-sac location
- Short walk to village amenities and bus links
- Excellent access to Woking Town Centre & mainline station