Beaford, Winkleigh

Guide Price
£699,950

6 Bedroom Detached House for sale in Winkleigh

4 6 6
  • Extensive accommodation
  • Unique lifestyle to be enjoyed
  • Magnificent drawing room
  • Impressive 28’ Kitchen/breakfast room with mood lighting
  • Master suite with amazing dressing room having distant views
  • Guest suite
  • Lift
  • Annexe with potential for income
  • Planning to enlarge the annexe (TDC 1/1071/2022/FUL)
  • Two double garages

Extensive accommodation
Unique lifestyle to be enjoyed
Magnificent drawing room
Impressive 28’ Kitchen/breakfast room with mood lighting
Master suite with amazing dressing room having distant views
Guest suite
Lift
Annexe with potential for income
Planning to enlarge the annexe (TDC 1/1071/2022/FUL)
Two double garages
Two driveways
Large BBQ terrace with awning
Fabulous low maintenance gardens

Webbers Estate Agents are now in receipt of an offer for the sum of £710,000 for Latchford, Beaford, Winkleigh, EX19 8LU.Anyone wishing to place an offer on the property should contact Webbers Estate Agents, 17 High Street, Torrington, EX38 8HN 01805 624334 before exchange of contracts.

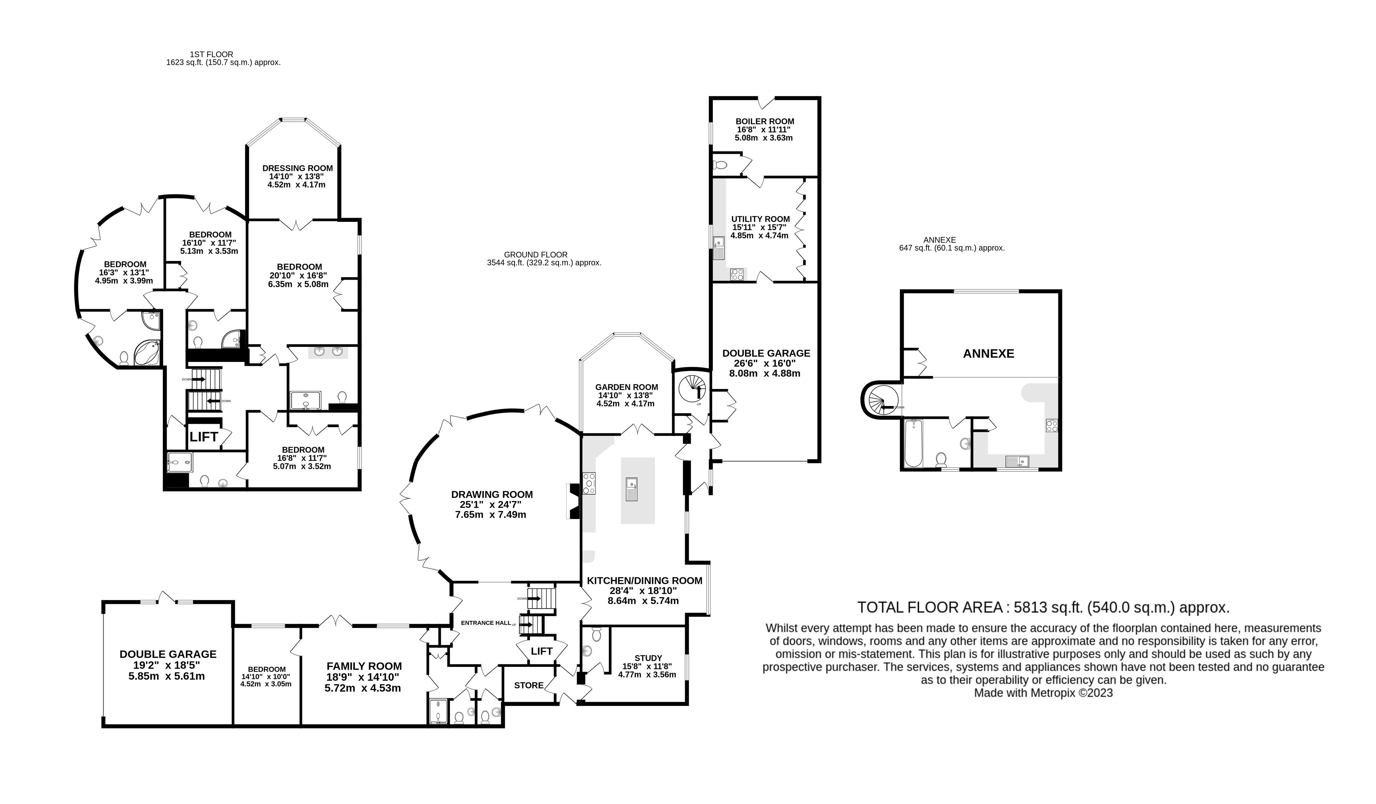
Accommodation

Ground Floor
Beyond the gate found adjacent to the double garage on the main drive, you enter your own world where the stature and shape of this unique home comes into its own. Two things strike you immediately, one being the curvature of one part of the house and the other is the large BBQ area running along what was formerly an indoor swimming pool but is now a delightful, spacious guest suite. The property offers external elevations of brick, stone and colour wash render under a slate roof. Opening the front door, you are greeted by an impressive vaulted reception hall, complete with lift entrance, where you get a sense that this home is really something quite special. The fine Oak staircase makes quite a statement. A wide arch opens into the curved drawing room which has no less than four sets of opening double doors to the outside and a Minster Stone fireplace with log burner providing a focal point. What an ideal place with which to entertain and one can only imagine the enjoyment to be had during the summer afternoons and evenings in this room with all the doors open, listening to the sound of the fountain outside. From the hall a small flight of stairs leads down into an inner hall where the study, cloakroom, a large store cupboard and door to the outside are found. Double doors lead into the impressive 28’kitchen/breakfast room which is another wonderful entertaining space complete mood lighting and featuring an extensive range of wall, floor and drawer units with associated polished granite work surfaces, island unit complete with sink and Quooker instant hot water tap. Appliances include a Rangemaster induction hob with double oven hob, extractor, microwave, dish washer, coffee machine and a Rangemaster double door fridge freezer. A honeyed Oak floor offsets the cream and black from the kitchen units and worksurfaces beautifully, and gives a lovely warm feel throughout the room. The flooring continues through the double doors into the garden/sun room which has almost full height glazing overlooking the pond. Sitting in here you get a sense of calm with the pond outside and the sound of the water tumbling down from the fountain. Opening up from the kitchen a rear hall gives access via a side door out to the second driveway and a further door connects to the double garage. A spiral staircase leads to the upper floor Annex which has an open plan sitting room/ kitchen/bedroom. The kitchen area has a full range of matching wall and base units, integrated fridge freezer, double oven and four ring electric hob and along run of worksurface with bistro bar at on end. On a clear day, Dartmoor can be seen in the distance beyond the village church on one side of the annexe and on the other are far reaching rural views across the fields. A bathroom with three piece suite completes the accommodation. Planning has been passed to create further accommodation (Torridge District Council 1/1071/2022/FUL). Accessed through the double garage is a large utility/laundry/boiler room complete with extensive units, work tops, appliance space, two boilers serving the hot water and heating. Rounding off the accommodation is a plant room complete with geothermic ground source heat pump, running gear for the photo voltaic panels found on the guest suite roof and a gardener’s WC. whilst a door leads out into the rear garden.

First Floor
Effectively Latchford has been built on half levels so the stairs are short runs and on the first floor is found a well-proportioned master suite complete with wardrobe cupboards, display shelves, air conditioner and the most amazing dressing room approached via double opening doors and step having views across the pond to the fields beyond. You will not find many dressing rooms like this! The hotel like en suite offers twin wash hand basins with Corian surface, large walk in shower with remote control, tiled walls and Geberit Aquaclean Mera toilet. On the opposite side of the landing is a further suite which is a double room with a bank of wardrobe cupboards along one wall as well as having a stylish en suite shower room with multi jet shower, wash hand basin w.c. and heated towel rail.

A further run of stairs leads to a galleried landing where the two remaining double bedroom suites are found both with views and a Juliet balcony. One has a bathroom with corner bath, separate multi jet shower cubicle, wash hand basin, w.c. and heated towel rail, whilst the other en suite has a good sized multi jet shower cubicle, w.c., wash hand basin and heated towel rail.

One cannot emphasize enough the quality of fittings, the attention to detail throughout and the potential style of living to be enjoyed.

Guest Suite
Formerly an indoor pool this suite is approached off the reception hall and offers a cloakroom, shower room with oversized shower cubicle and the former pool hall has been divided to create an amazing space with large family/sitting room having doors out onto the BBQ terrace and a good sized double room beyond with air conditioner. The vaulted painted wood ceiling has been replicated on the divide between the two rooms and having tiled walls and washed look flooring it gives an almost seaside feel to this part of the house.

Outside
The two double garages, both have electric up and over doors with power and light connected. Found one on either side of the house they approached over brick paviour driveways down. All paths are wheelchair accessible.

Gardens and Grounds
As agents we understand that the garden was designed and installed by St John's Garden Centre, Barnstaple and what they have created is a lovely oasis of calm, centred on the oversized pond complete with lit fountain. There is an area of formal lawn adjacent to the luxury Wolsey design, Crown Pavilion gazebo, which is a great space for al fresco dining. Within the well-stocked gardens complete with box, acers, rose, hosta, photinia red robin, heathers, wistaria are meandering paths, low stone walls, BBQ terrace and several places just to sit, ponder or read whilst listening to the tumbling of the water

Agents Notes
The lift serves three out of the four floors.
The driveways are owned by ‘Latchford’ with the two neighbouring properties having a right of way over.
A public footpath runs along the edge of one of the driveways giving access to the fields behind.
Intercom entry system

Drawing Room 25'1"x24'7" (7.65mx7.5m).

Kitchen / Dining Room 28'4"x18'10" (8.64mx5.74m).

Family Room 18'9"x14'10" (5.72mx4.52m).

Garden Room 14'10"x13'8" (4.52mx4.17m).

Study 15'8"x11'8" (4.78mx3.56m).

Bedroom 14'10"x10' (4.52mx3.05m).

Double Garage 19'2"x18'5" (5.84mx5.61m).

Double Garage 26'6"x16' (8.08mx4.88m).

Utility Room 15'11"x15'7" (4.85mx4.75m).

Boiler Room 16'8"x11'11" (5.08mx3.63m).

Bedroom 16'8"x11'7" (5.08mx3.53m).

Bedroom 20'10"x16'8" (6.35mx5.08m).

Dressing Room 14'10"x13'8" (4.52mx4.17m).

Bedroom 16'10"x11'7" (5.13mx3.53m).

Bedroom 16'3"x13'1" (4.95mx4m).

EPC C.

Council Tax G.

Tenure    Freehold

Viewing Arrangements    Strictly by appointment only with sole selling agent

Services    Mains water, electricity and drainage. Private borehole servicing the garden.
Ground source heat pump for underfloor heating.
Oil fired boilers for the upstairs radiators, annex heating and hot water.
Solar panels.

From the M5 and Exeter take the A30 heading west towards Bodmin/ Okehampton for about 17 miles leaving at the Whiddon Down junction taking the A3124 signed Winkleigh and Torrington for about 5 miles. At the T junction turn left onto the A3072 and after a mile turn right back onto the A3124 signed Winkleigh and Torrington. After 200 yards turn left keeping on the A3124 bypassing the village of Winkleigh to the junction with the B3220. Turn left signed towards Torrington and Bideford, continuing for about 7 miles into the village of Beaford turning left into Green Lane beside the Beaford Community Primary and Nursery School the Beaford Community Primary and Nursery School into Green Lane and continue along the road towards the village hall. The property can be found on the right hand side.

Leave Torrington taking the A386 towards Okehampton and at the bottom of the hill, turn left onto the A3124 towards Winkleigh. Pass RHS Rosemoor and continue for several miles until reaching Beaford. Take the right turn just before the Beaford Community Primary and Nursery School into Green Lane and continue along the road towards the village hall. The property can be found on the right hand side.

https://what3words.com/unite.balanced.silence

Important Information

  • This is a Freehold property.

Property Ref: 55681_TOR230192

Share:

Similar Properties

Wellsprings Lane, Sampford Courtenay, Okehampton

3 Bedroom Detached House | Guide Price £650,000

This handsome detached grade II listed cottage sits in grounds a little over 1 acre and has the most wonderful, homely f...

Burrington, Umberleigh

5 Bedroom Detached House | Guide Price £650,000

*FLEXIBLE LIVING AND INCOME POTENTIAL* This incredible 5 bedroom CHARACTER HOME provides plenty of accommodation for all...

Huntshaw, Torrington, Devon

4 Bedroom Detached House | Guide Price £650,000

A handsome detached character 4/5 bedroom home, presented in good decorative order, set in a favoured hamlet, with wonde...

Stevenstone, Torrington, Devon

4 Bedroom Detached House | Guide Price £700,000

A rare opportunity to own a charming split-level home on the historic Stevenstone Estate, just 2.5 miles from Great Torr...

Peters Marland, Great Torrington, Devon

4 Bedroom Detached House | Guide Price £700,000

Set amidst Devon rural countryside this detached home provides for very stylish contemporary living, within delightful f...

Bonfire Hill, Black Torrington, Beaworthy

6 Bedroom Detached House | Guide Price £740,000

Sitting in approximately 11 acres of ground and occupying an ideal location just outside this popular mid Devon village,...

Webbers Torrington (Torrington)

Torrington, Devon, EX38 8HN

01805 624334

How much is your home worth?

Use our short form to request a valuation of your property.

Request a Valuation

Mortgage Calculator

Amount Borrowed: £
Total Amount Repayable: £
Total Monthly Payment: £
©2025 The Guild of Property Professionals. All rights reserved. Terms and Conditions | Privacy Policy | Cookie Policy | Complaints Policy | Members Login
The Guild of Property Professionals Trading Address: 121 Park Lane, London W1K 7AG. GPEA Limited. Registered in England & Wales.  Company No: 02819824.  Registered Office Address: 2 St. Stephen's Court, St. Stephen's Road, Bournemouth, Dorset, England, BH2 6LA.  VAT Registration No: 576 8795 61
Book a Property Valuation Update Cookies Preferences