Sheppard Drove, Wymondham, NR18

Offers in region of
£325,000
SSTC
This property listing is now SSTC

3 Bedroom Detached House for sale in Wymondham

1 3 2
  • Immaculately presented three bedroom detached house
  • Bought from new in 2021 occupying a generous corner plot
  • Three well-proportioned bedrooms with an ensuite to bedroom one
  • Bright and airy living room
  • Open plan kitchen/diner with a separate utility room
  • Good-sized lawn laid rear garden
  • Single garage with off-road parking for x2 cars
  • Within ease of access to local amenities, bus routes and the A11
  • Offered with no onward chain
  • See our full online listing for further details including flood risk, broadband speed and other material information.


Moneyproperties are delighted to be marketing this immaculately presented three-bedroom detached house located on a sought-after residential development within ease of access to local amenities, bus routes and the A11 for commuting towards Norwich and Cambridge. Occupying a spacious corner plot the property comprises of an entrance hall, bright and airy living room, open plan kitchen/diner with a separate utility room and wc. To the upstairs comes three well-proportioned bedrooms with an ensuite and a family bathroom. Outside the property enjoys a good-sized rear garden, single garage, and off-road parking for x2 cars. Offered with no-onward chain!!


Tenure: Freehold     EPC: B    Council Tax: C


 



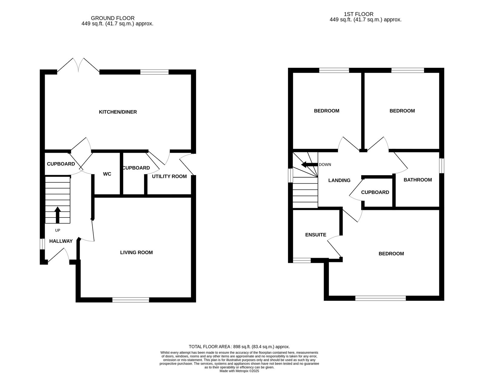
Entrance Hall - 3.94m x 1.46m (12'11" x 4'9")


Living Room - 3.9m x 3.69m (12'9" x 12'1")


Kitchen/Diner - 5.5m x 2.9m (18'0" x 9'6")


Utility Room - 1.7m x 1.59m (5'6" x 5'2")


WC - 1.6m x 0.92m (5'2" x 3'0")


Bedroom - 3.58m x 3.19m (11'8" x 10'5")


Ensuite - 1.79m x 1.73m (5'10" x 5'8")


Bedroom - 2.85m x 2.77m (9'4" x 9'1")


Bedroom - 2.85m x 2.57m (9'4" x 8'5")


Bathroom - 2.11m x 1.69m (6'11" x 5'6")


Single Garage with Off-Road Parking for x2 cars


 


AGENT’S NOTES -


Planning :  Details, if any, can be found on the South Norfolk Council Planning website.


Covenants, Rights and Restrictions:  Please enquire with the selling agents for any information.


Broadband :  FTTP - Ultrafast Full Fibre , See Ofcom checker and Openreach website for more details.


Mobile phone :  See Ofcom checker for coverage details.


Flood risk :  Very low risk of surface, rivers and seas according to Gov.uk website


Services :  Mains gas, electricity, water and sewage


Local authority :  Norfolk County Council and South Norfolk


Council Tax Band :  C


Tenure :  Freehold


EPC : B
 

Important Information

  • This is a Freehold property.
  • This Council Tax band for this property is: C

Property Ref: 680_1192094

Share:

Similar Properties

Vicarage Road, Deopham, NR18

3 Bedroom Semi-Detached House | £325,000

Moneyproperties bring to market this spacious three/four-bedroom semi-detached house occupying a generous plot with a la...

Bramble Way, Wymondham, NR18

3 Bedroom Semi-Detached House | Offers in region of £325,000

Moneyproperties bring to market this spacious three-bedroom semi-detached house located on the popular Harts Farm develo...

Orchard Way, Wymondham, Norfolk. NR18 0NX

3 Bedroom Bungalow | Guide Price £325,000

This charming detached three-bedroom bungalow nestled in the sought-after Orchard Way, boasting approximately 1200 sq ft...

Clifton Road, Wymondham, NR18

3 Bedroom Bungalow | Offers in region of £340,000

Moneyproperties bring to market this spacious three-bedroom detached bungalow conveniently located within ease of access...

Millway, Wymondham, NR18

3 Bedroom Bungalow | Offers in region of £350,000

Moneyproperties are delighted to bring to market this three-bedroom detached bungalow that has undergone an extension of...

Pople Street, Wymondham, NR18 0PS

3 Bedroom End of Terrace House | Offers in region of £350,000

A Rare Opportunity to Own a Piece of Wymondham’s History .Steeped in heritage, this delightful Georgian town centre cott...

Money Properties (Wymondham)

17/18 Market Place, Wymondham, Norfolk, NR18 0AX

01953 423 006

How much is your home worth?

Use our short form to request a valuation of your property.

Request a Valuation

Mortgage Calculator

Amount Borrowed: £
Total Amount Repayable: £
Total Monthly Payment: £
©2025 The Guild of Property Professionals. All rights reserved. Terms and Conditions | Privacy Policy | Cookie Policy | Complaints Policy | Members Login
The Guild of Property Professionals Trading Address: 121 Park Lane, London W1K 7AG. GPEA Limited. Registered in England & Wales.  Company No: 02819824.  Registered Office Address: 2 St. Stephen's Court, St. Stephen's Road, Bournemouth, Dorset, England, BH2 6LA.  VAT Registration No: 576 8795 61
Book a Property Valuation Update Cookies Preferences