Kendal Close, Bedgrove, Aylesbury

£475,000
SSTC
This property listing is now SSTC

3 Bedroom Bungalow for sale in Aylesbury

2 3 1
  • BEDGROVE
  • THREE BEDROOM CHALET BUNGALOW
  • NO UPPER CHAIN
  • SPACIOUS AND VERSATILE ACCOMMODATION
  • ENCLOSED REAR GARDEN
  • OFF ROAD PARKING AND GARAGE
  • GOOD ORDER THROUGHOUT
  • SEMI DETACHED

A spacious three bedroom semi-detached chalet bungalow, ideally located in the sought-after area of Bedgrove. Offered with no upper chain, the property is in good order throughout and features a generous open-plan living/dining room, a kitchen/diner, three bedrooms and a family bathroom. Outside, there is an enclosed rear garden, off road parking and garage, making this an ideal home for families or those seeking flexible living space in a popular location.

Location - Bedgrove is a highly regarded development situated on the south side of Aylesbury. At the heart of the estate is Jansel Square Centre which has a range of shops, pub, post office and hairdressers. Additional benefits include a doctor's surgery, two churches and a large recreation park with many sports clubs and activities. An ideal location for families the estate is served by the well regarded Bedgrove Infant and Junior schools and is within walking distance of the Aylesbury Grammar and Aylesbury High School. There is a frequent bus service to the town centre, good road links towards London on the A41 and A413 and the choice of Aylesbury Central or Stoke Mandeville Train Stations offering mainline services into London Marylebone.

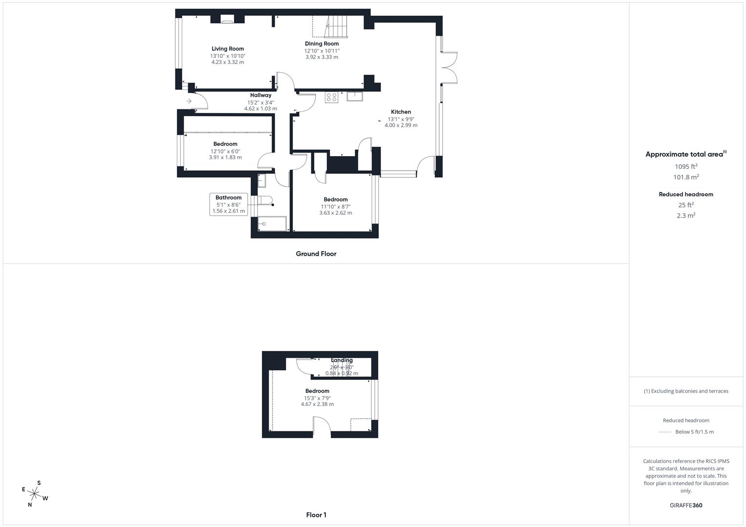
Accommodation - The accommodation begins with an entrance hall leading into a bright and generous living room, featuring a characterful fireplace as a focal point. This flows seamlessly through to the dining area, with stairs rising to the first floor, creating a sociable and versatile living space.

To the rear of the property is a well-appointed kitchen/dining area, fitted with an inset electric hob and extractor, integrated oven and grill, and integrated washing machine, with additional space for a fridge. A useful storage cupboard adds practicality, while double doors open directly onto the rear garden, allowing for plenty of natural light and easy indoor-outdoor living.

The ground floor further benefits from a bathroom, bedroom one featuring wall-to-wall built-in wardrobes, and bedroom two with a built-in cupboard, offering flexible accommodation for families, downsizers, or home working.

To the first floor is a third bedroom, complete with a built-in cupboard, ideal as a main bedroom, guest room, or private workspace.

Externally, the property enjoys an enclosed rear garden with a patio seating area, steps leading up to a lawned garden with established trees, providing a pleasant and private outdoor space. Off-road parking is available, along with a garage to the rear, adding further convenience.

Presented in good order throughout and offering generous, adaptable living space in a popular residential area, this property is an ideal home for a wide range of buyers.

Property Ref: 34452235

Share:

Similar Properties

Colney Road, Berryfields, Aylesbury

4 Bedroom Town House | Guide Price £475,000

An immaculately presented four bedroom townhouse in the popular development of Berryfields, Aylesbury. The property is o...

Fairford Leys Way, Fairford Leys, Aylesbury

4 Bedroom Detached House | £475,000

A WELL PRESENTED & UPGRADED FOUR BEDROOM DETACHED which is a credit to the present owner. Benefits include refitted kitc...

Wynford Green, Chiltern Park, Aylesbury

4 Bedroom Detached House | Offers in excess of £475,000

A beautifully presented four bedroom detached home on the sought-after Chiltern Park development, ideally located within...

Paradise Orchard, Berryfields, Aylesbury

3 Bedroom Detached House | Offers in excess of £490,000

A well presented three bedroom detached family home located in the popular Berryfields development, within walking dista...

Farleigh Drive, Berryfields, Aylesbury

4 Bedroom Detached House | Offers in excess of £490,000

An attractive three/four bedroom detached home located in the popular Berryfields development, within walking distance o...

Cranesbill Way, Kingsbrook, Aylesbury

4 Bedroom Detached House | Offers in excess of £490,000

A four bedroom detached home located in the sought after Kingsbrook development, offering excellent access to local scho...

George David & Co (Aylesbury)

Aylesbury, Buckinghamshire, HP20 1SE

01296 393393

How much is your home worth?

Use our short form to request a valuation of your property.

Request a Valuation

Mortgage Calculator

Amount Borrowed: £
Total Amount Repayable: £
Total Monthly Payment: £
©2026 The Guild of Property Professionals. All rights reserved. Terms and Conditions | Privacy Policy | Cookie Policy | Complaints Policy | Members Login
The Guild of Property Professionals Trading Address: 121 Park Lane, London W1K 7AG. GPEA Limited. Registered in England & Wales.  Company No: 02819824.  Registered Office Address: 2 St. Stephen's Court, St. Stephen's Road, Bournemouth, Dorset, England, BH2 6LA.  VAT Registration No: 576 8795 61
Book a Property Valuation Update Cookies Preferences