Noble Crescent, Berryfields, Aylesbury

Offers in excess of
£440,000

4 Bedroom Terraced House for sale in Aylesbury

1 4 2
  • BERRYFIELDS
  • FOUR BEDROOM TERRACED HOME
  • SET OVER THREE FLOORS
  • VERSATILE LAYOUT WITH FLEXIBLE LIVING SPACE
  • GARAGE & TWO CAR DRIVEWAY
  • FIRST FLOOR LIVING ROOM
  • MAIN BEDROOM WITH EN SUITE
  • FULLY ENCLOSED REAR GARDEN
  • UTILITY AND CLOAKROOM

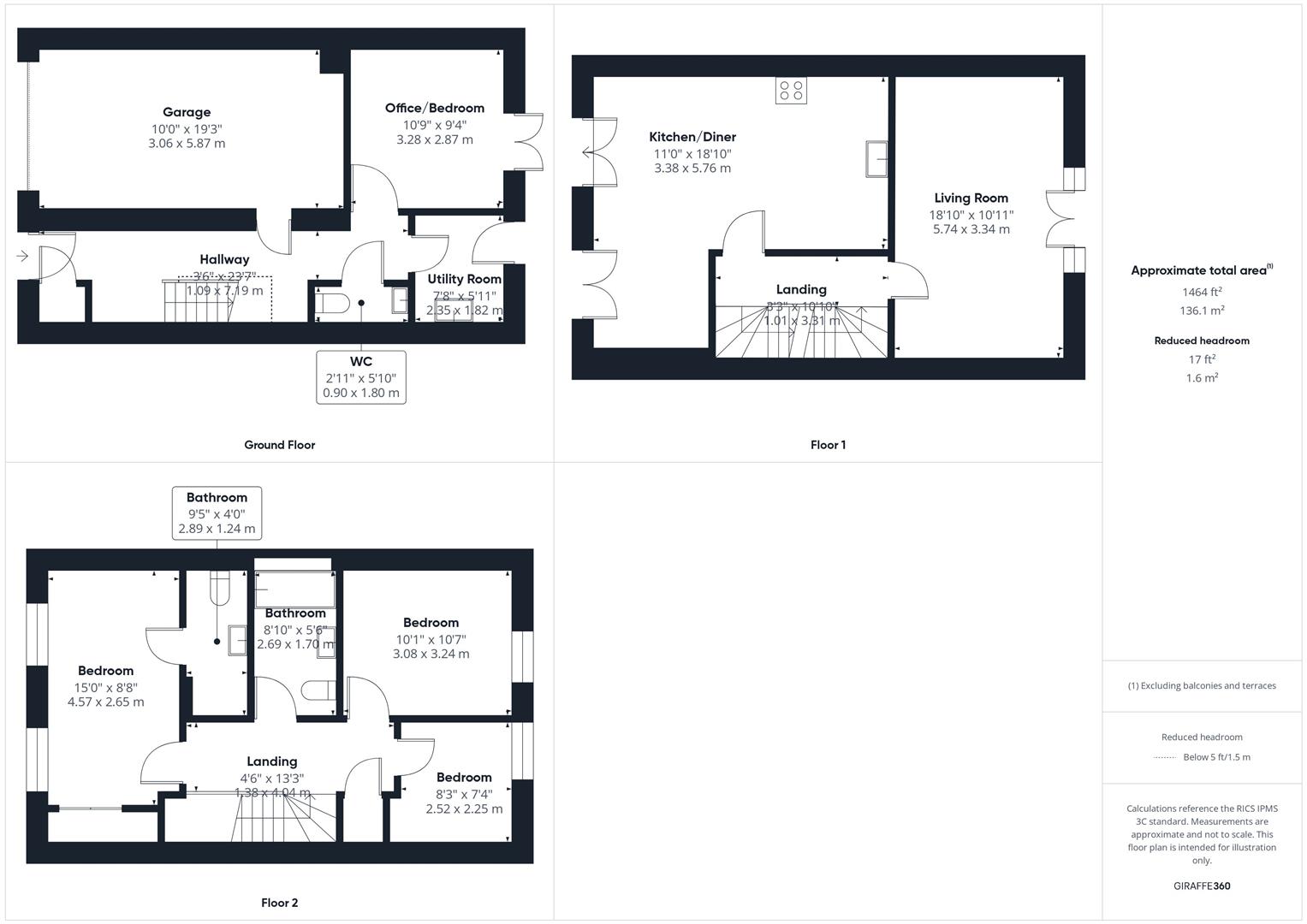
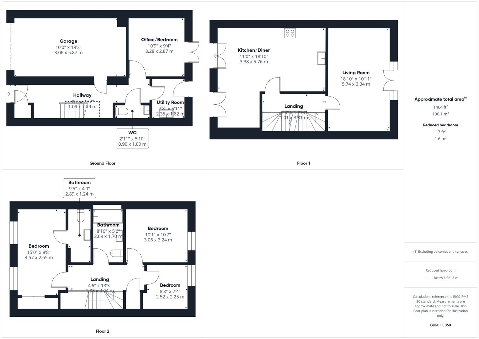
Spacious four bedroom terraced home set over three floors in the popular Berryfields development. The property offers versatile living space with a utility room, cloakroom, and office/bedroom with doors opening out to garden. The first floor features a bright living room and a modern kitchen/diner, while the second floor boasts three bedrooms, including a master with en suite, plus a family bathroom. Outside, the home benefits from a private garden, garage and two car driveway.

Location - Berryfields is a modern development situated on the northern outskirts of Aylesbury surrounded by open countryside. The development benefits from good transport links by road towards Bicester/M40 and back to the town centre. The development is home to Aylesbury Parkway Station which offers mainline services into London Marylebone in just under an hour. There is a parade of shops and a Miller and Carter restaurant on the development as well as a secondary school and two primary schools.

Accommodation - On the ground floor, the entrance hall provides access to the integral garage and a convenient cloakroom. A utility room offers space and plumbing for a washing machine and tumble dryer, with a door leading directly to the garden. There is also a flexible office/bedroom with double doors opening onto the rear garden.

The first floor is designed for family living, featuring a bright and airy living room with doors opening to a Juliet balcony. The modern kitchen/diner is well-equipped with an inset gas hob, splashback and cooker hood, integrated oven and grill, and space for a dishwasher and fridge. With two sets of double doors leading to Juliet balconies, this room enjoys excellent natural light and has ample space for a large dining table.

On the second floor, there are three bedrooms. The main bedroom benefits from built-in wardrobes and an en suite shower room. The remaining bedrooms are served by a modern family bathroom.

Externally, the property boasts a fully enclosed rear garden with a mix of patio, lawn, gravel, decking area, built-in planters, along with rear gate access. To the front, there is driveway parking in addition to the garage.

Property Ref: 34204112

Share:

Similar Properties

Acorn Path, Kingsbrook, Aylesbury

4 Bedroom Terraced House | £440,000

CHAIN FREE. A beautifully presented four bedroom terraced home in the new Kingsbrook development, offered in fantastic o...

Hampden Square, Fairford Leys, Aylesbury

4 Bedroom End of Terrace House | Offers Over £440,000

A four bedroom home situated in the popular Fairford Leys development, offering spacious and versatile accommodation arr...

Provis Wharf, Aylesbury, Buckinghamshire

4 Bedroom Semi-Detached House | Offers in excess of £439,950

This four bedroom home, located in the sought after Canalside development, offers a spacious and versatile living space....

Bernard Close, Cuddington, Aylesbury

3 Bedroom Semi-Detached House | £450,000

An extended 2/3 semi detached home situated in a quiet cul-de-sac in the sought after village of Cuddington. No upper ch...

Whitehead Way, Lavender Grange, Aylesbury

4 Bedroom Terraced House | £450,000

A four bedroom terraced home arranged over three floors, situated in the popular Lavender Grange area. Conveniently loca...

Bateman Drive, Aylesbury

4 Bedroom Link Detached House | Offers in excess of £460,000

A three/four bedroom home located on the south side of Aylesbury, within grammar school catchment and close to Stoke Man...

George David & Co (Aylesbury)

Aylesbury, Buckinghamshire, HP20 1SE

01296 393393

How much is your home worth?

Use our short form to request a valuation of your property.

Request a Valuation

Mortgage Calculator

Amount Borrowed: £
Total Amount Repayable: £
Total Monthly Payment: £
©2026 The Guild of Property Professionals. All rights reserved. Terms and Conditions | Privacy Policy | Cookie Policy | Complaints Policy | Members Login
The Guild of Property Professionals Trading Address: 121 Park Lane, London W1K 7AG. GPEA Limited. Registered in England & Wales.  Company No: 02819824.  Registered Office Address: 2 St. Stephen's Court, St. Stephen's Road, Bournemouth, Dorset, England, BH2 6LA.  VAT Registration No: 576 8795 61
Book a Property Valuation Update Cookies Preferences