Mill Lane, Hook End, Brentwood

Guide Price
£575,000
SSTC
This property listing is now SSTC

3 Bedroom Semi-Detached House for sale in Brentwood

1 3 1
  • THREE DOUBLE BEDROOMS
  • WELL-MAINTAINED FAMILY HOME
  • LARGE BATHROOM WITH BATH & SHOWER
  • GROUND FLOOR CLOAKROOM
  • SPACIOUS LOUNGE / DINER
  • LANDSCAPED REAR GARDEN
  • EXCELLENT PARKING INC. INTEGRAL GARAGE
  • OVERLOOKING FIELDS TO THE FRONT ASPECT

With a pleasant outlook over open fields to the front elevation, we are delighted to bring to market this attractive and beautifully maintained, semi-detached family home in the popular village of Hook End. Benefitting from three DOUBLE bedrooms, a spacious family bathroom which includes a large walk-in shower AND a freestanding, slipper bath, a ground floor cloakroom, a bright and spacious lounge/diner giving access into a landscaped rear garden and a stylish kitchen with appliances. There is plenty of parking available on your own private driveway, plus an integral garage. The property is perfectly located, being within walking distance of Doddinghurst Village and just a short drive into Brentwood and Shenfield Town Centres, where you will find high street shopping and mainline train services into London. Interested parties will be keen to know that the onward chain is complete.

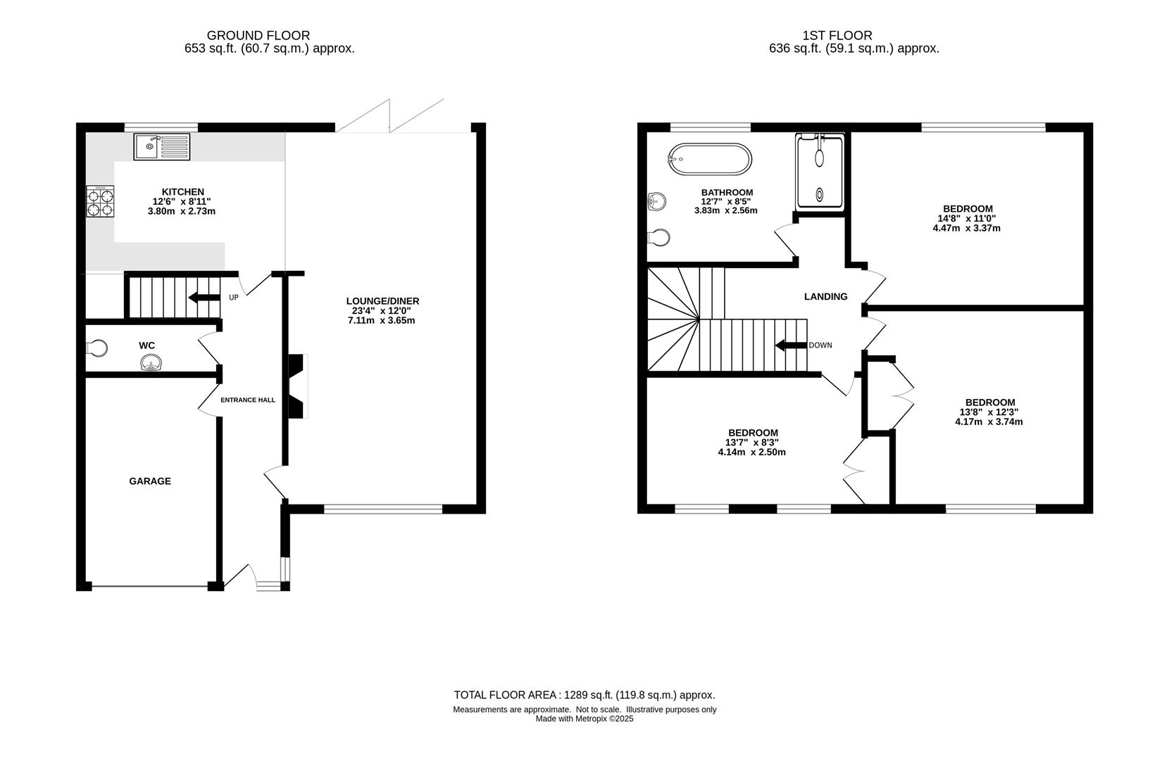
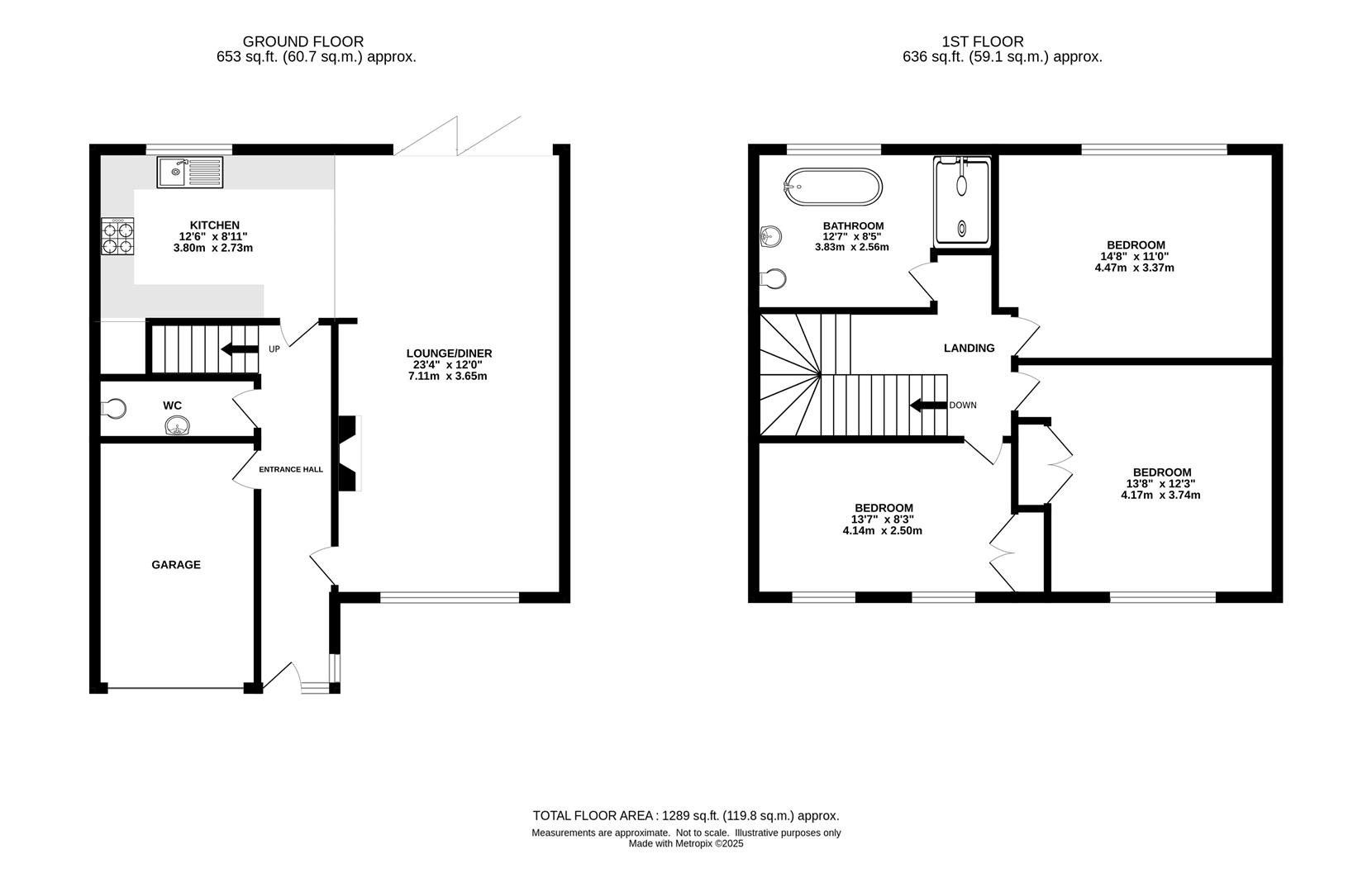
Stepping into the hallway there are oak doors to all rooms and stairs rising to the first floor with oak handrail and glass balustrade. A bright and spacious lounge/diner is a lovely room with contemporary, inset log burner and bi-folding doors which open directly onto the patio area. The lounge is open plan to a stylish kitchen, fitted with modern gloss wall and base units in contrasting colours. Integrated appliances include a double oven, hob with extractor above and a fridge/freezer and there is ample space for further appliances. Finishing the accommodation on the ground floor is a modern cloakroom with w.c. and wash hand basin.

Stairs rise to the first-floor landing, where there is an air conditioning unit and oak doors to all rooms. There are three bedrooms, all well-proportioned and of DOUBLE size. Two of the bedrooms have built-in cupboards, and all three rooms have space for additional fitted or freestanding bedroom furniture. There is a sizeable family bathroom, beautifully styled and including a free standing, slipper bath with central up and over mixer taps, a large walk-in shower, wash hand basin and a w.c. with hidden cistern.

At the rear of the property there is a well-maintained, landscaped garden which measures in the region of 70' in length. Commencing with a raised paved patio which leads into a neat sleeper edged lawn, with a paved pathway leading to the bottom of the garden where you will find a good-sized timber storage shed. Side pedestrian access leads through to the front of the property where you have parking for several vehicles on your own driveway, in addition to an integral garage.

Entrance Hall - Doors to all rooms. Stairs to first floor. Laminate flooring.

Lounge / Diner - 7.11m x 3.66m (23'4 x 12') - Window to front aspect and bi-folding doors to the rear. Contemporary, inset log burner. Open plan to :

Kitchen - 3.81m x 2.72m (12'6 x 8'11) - Modern gloss wall and base units with integrated double oven, hob with extractor above and fridge freezer. Space for further appliances. Window to rear aspect. Kitchen is also accessible from the hallway.

Ground Floor Cloakroom - Modern wash hand basin and W.C.

First Floor Landing - Doors to all rooms. Air conditioning unit.

Bedroom - 4.14m x 2.51m (13'7 x 8'3) - Two windows to the front aspect. Built-in storage cupboard.

Bedroom - 4.17m x 3.73m (13'8 x 12'3) - Window to front aspect. Built-in storage cupboard.

Bedroom - 4.47m x 3.35m (14'8 x 11') - Window to rear aspect.

Family Bathroom - 3.84m x 2.57m (12'7 x 8'5) - Spacious bathroom with freestanding slipper bath with central up and over mixer taps, fully tiled walk-in shower, wash hand basin and w.c. with hidden cistern.

Exterior - Rear Garden - approx 21.34m in length (approx 70' in length) - Well-maintained garden, commencing with a raised paved patio with a step down to a neat, sleeper edged lawn. There is a paved pathway to the side leading to a timber framed storage shed. Side access through to the front garden.

Exterior - Front Garden - Loose stone driveway allowing off street parking for several vehicles.

Integral Garage - Door into hallway.

Agents Note - Fee Disclosure - As part of the service we offer we may recommend ancillary services to you which we believe may help you with your property transaction. We wish to make you aware, that should you decide to use these services we will receive a referral fee. For full and detailed information please visit 'terms and conditions' on our website www.keithashton.co.uk

Property Ref: 34207467

Share:

Similar Properties

Barn Mead, Doddinghurst, Brentwood

3 Bedroom Semi-Detached House | Guide Price £575,000

Located in a Barn Mead, a popular turning in the village of Doddinghurst, we are delighted to bring to market this attra...

Onslow Gardens, Ongar, Essex

4 Bedroom Semi-Detached House | Guide Price £575,000

With NO ONWARD CHAIN, we are delighted to bring to market this extended, semi-detached house positioned in a quiet cul-d...

Glovers Field, Kelvedon Hatch

4 Bedroom Semi-Detached House | Offers in excess of £575,000

For sale is this beautifully maintained and modern, three/four double bedroom, semi-detached house located in a popular...

Glovers Field, Kelvedon Hatch, Brentwood

3 Bedroom End of Terrace House | Guide Price £585,000

Finished to an exceptional standard, with high spec. fittings throughout and with a fabulous open plan kitchen / family...

Parsonage Field, Doddinghurst, Brentwood

4 Bedroom Detached House | Guide Price £588,000

Deceptively spacious and with a well-maintained, unoverlooked garden to the rear, we are delighted to bring to market th...

Wyatts Green Road, Wyatts Green, Brentwood

3 Bedroom Semi-Detached House | Offers in excess of £588,000

The aptly named 'Wisteria House' with trailing wisteria over the front porch is a lovely bright and airy, three-bedroom...

Keith Ashton Estates - Village Office (Kelvedon Hatch)

38 Blackmore Road, Kelvedon Hatch, Essex, CM15 0AT

01277 375757

How much is your home worth?

Use our short form to request a valuation of your property.

Request a Valuation

Mortgage Calculator

Amount Borrowed: £
Total Amount Repayable: £
Total Monthly Payment: £
©2026 The Guild of Property Professionals. All rights reserved. Terms and Conditions | Privacy Policy | Cookie Policy | Complaints Policy | Members Login
The Guild of Property Professionals Trading Address: 121 Park Lane, London W1K 7AG. GPEA Limited. Registered in England & Wales.  Company No: 02819824.  Registered Office Address: 2 St. Stephen's Court, St. Stephen's Road, Bournemouth, Dorset, England, BH2 6LA.  VAT Registration No: 576 8795 61
Book a Property Valuation Update Cookies Preferences