Paglesfield, Hutton, Brentwood

Guide Price
£525,000

4 Bedroom End of Terrace House for sale in Brentwood

2 4 1
  • FOUR BEDROOM FAMILY HOME
  • OPPORTUNITY TO MODERNISE
  • INTEGRAL GARAGE
  • OFF-STREET PARKING
  • NO ONWARD CHAIN
  • 0.7 MILES TO SHENFIELD TRAIN STATION
  • CUL-DE-SAC LOCATION
  • HIGHLY REGARDED SCHOOLS NEARBY

**Guide Price £525,000 - £550,000** We are delighted to present this spacious four-bedroom family home, nestled in a quiet and sought-after cul-de-sac turning in the popular village of Hutton.

This end-of-terrace residence offers an exciting opportunity to modernise and create your dream home. Boasting generous living accommodation and an attractive rear garden, it provides the ideal setting for family living.

Conveniently offered with No Onward Chain, the property is superbly located just 0.7 miles from Shenfield Train Station, offering excellent links to London and beyond. Families will also appreciate its close proximity to highly regarded local schools, making this a fantastic choice for those seeking both comfort and convenience.

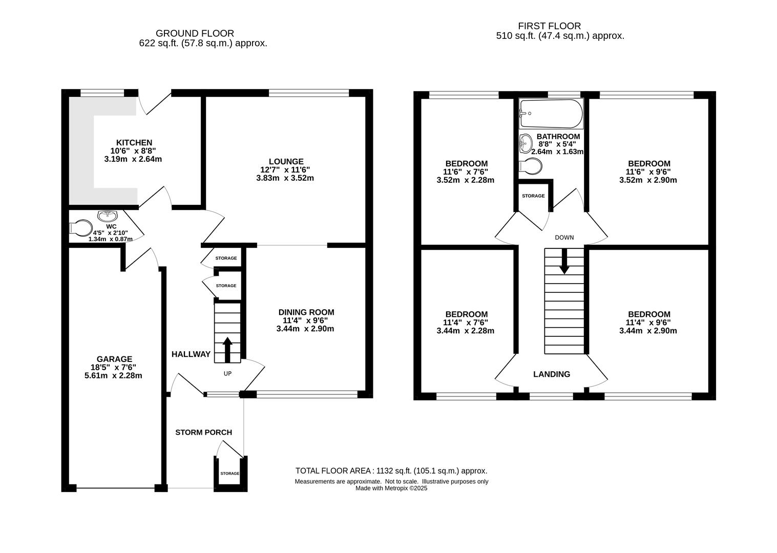
The internal layout begins with a welcoming entrance hall providing access to all principal rooms. To the rear, a bright and generously sized lounge seamlessly connects to the dining area, with large front and rear windows flooding the space with natural light - perfect for relaxed family living and entertaining. The kitchen, which offers great potential for updating, also sits at the rear of the property and enjoys garden views with direct access outside. From the hallway, there is convenient access to the integral garage, and a ground-floor cloakroom completes this level.

Upstairs, the first-floor hosts four well-proportioned bedrooms alongside a family bathroom, offering plenty of space for growing families.

Externally, the rear garden is mainly laid to lawn and bordered by mature shrubs, providing a private and tranquil outdoor space. To the front, a paved driveway offers off-street parking and leads to the garage with an up-and-over door.

Entrance Hallway -

Lounge - 3.83 x 3.52 (12'6" x 11'6") -

Kitchen - 3.19 x 2.64 (10'5" x 8'7") -

Dining Room - 3.44 x 2.90 (11'3" x 9'6") -

Wc -

Landing -

Bedroom One - 3.52 x 2.90 (11'6" x 9'6") -

Bedroom Two - 3.44 x 2.90 (11'3" x 9'6") -

Bedroom Three - 3.52 x 2.28 (11'6" x 7'5") -

Bedroom Four - 3.44 x 2.28 (11'3" x 7'5") -

Bathroom - 2.64 x 1.63 (8'7" x 5'4") -

Garage - 5.61 x 2.28 (18'4" x 7'5") -

Agents Note - As part of the service we offer we may recommend ancillary services to you which we believe may help you with your property transaction. We wish to make you aware, that should you decide to use these services we will receive a referral fee. For full and detailed information please visit 'terms and conditions' on our website www.keithashton.co.uk

Property Ref: 34139472

Share:

Similar Properties

Robin Close, Billericay

3 Bedroom Semi-Detached Bungalow | Guide Price £525,000

**Guide Price £525,000 - £550,000** New to the market comes this immaculate three-bedroom bungalow, nestled in a peacefu...

Brocksparkwood, Brentwood

3 Bedroom Semi-Detached House | Guide Price £525,000

** Guide Price £525,000 - £550,000 ** Situated in a popular cul-de-sac backing onto woodland, this well-maintained three...

Wendover Gardens, Brentwood

3 Bedroom Detached House | Guide Price £525,000

**Guide Price £525,000 - £550,000** We are pleased to present this detached family home, offered with No Onward Chain, n...

Pennyfields, Warley, Brentwood

5 Bedroom Semi-Detached House | £535,000

We are delighted to present this spacious and versatile four-to-five-bedroom family home, ideally located in a pleasant...

Hanging Hill Lane, Brentwood

2 Bedroom Semi-Detached Bungalow | Guide Price £535,000

**GUIDE PRICE £535,000 - £550,000** We are pleased to offer for sale, this extended semi-detached bungalow in the sought...

De Paul Way, Brentwood

3 Bedroom End of Terrace House | Offers in excess of £550,000

We are pleased to bring to market this three-bedroom end-terrace family home, located less than a mile from Brentwood Hi...

Keith Ashton Estates - Brentwood Office (Brentwood)

26 St. Thomas Road, Brentwood, Essex, CM14 4DB

01277 260858

How much is your home worth?

Use our short form to request a valuation of your property.

Request a Valuation

Mortgage Calculator

Amount Borrowed: £
Total Amount Repayable: £
Total Monthly Payment: £
©2026 The Guild of Property Professionals. All rights reserved. Terms and Conditions | Privacy Policy | Cookie Policy | Complaints Policy | Members Login
The Guild of Property Professionals Trading Address: 121 Park Lane, London W1K 7AG. GPEA Limited. Registered in England & Wales.  Company No: 02819824.  Registered Office Address: 2 St. Stephen's Court, St. Stephen's Road, Bournemouth, Dorset, England, BH2 6LA.  VAT Registration No: 576 8795 61
Book a Property Valuation Update Cookies Preferences