Swan Lane, Kelvedon Hatch

Guide Price
£475,000
SSTC
This property listing is now SSTC

3 Bedroom Detached House for sale in Brentwood

2 3 1
  • THREE BEDROOM FAMILY HOME
  • POPULAR VILLAGE LOCATION
  • GROUND FLOOR CLOAKROOM
  • WALKING DISTANCE OF LOCAL AMENITIES & SCHOOL
  • SPACIOUS LOUNGE
  • SEPARATE DINING ROOM
  • EN-SUITE TO BEDROOM ONE
  • GARAGE TO THE REAR

*Guide Price �475,000 - �500,000*
This part-weatherboarded, three-bedroom link-detached family home is situated in a pleasant village location in the heart of Kelvedon Hatch, close to local pubs, convenience store and post office and with bus routes into Brentwood Town Centre where you will find high street shopping and mainline train services into London. The property benefits from having two reception rooms, en-suite to the master bedroom and a garage to the rear with pedestrian door into the garden., with additional parking spaces provided at the side of the garage and on Blackmore Road.

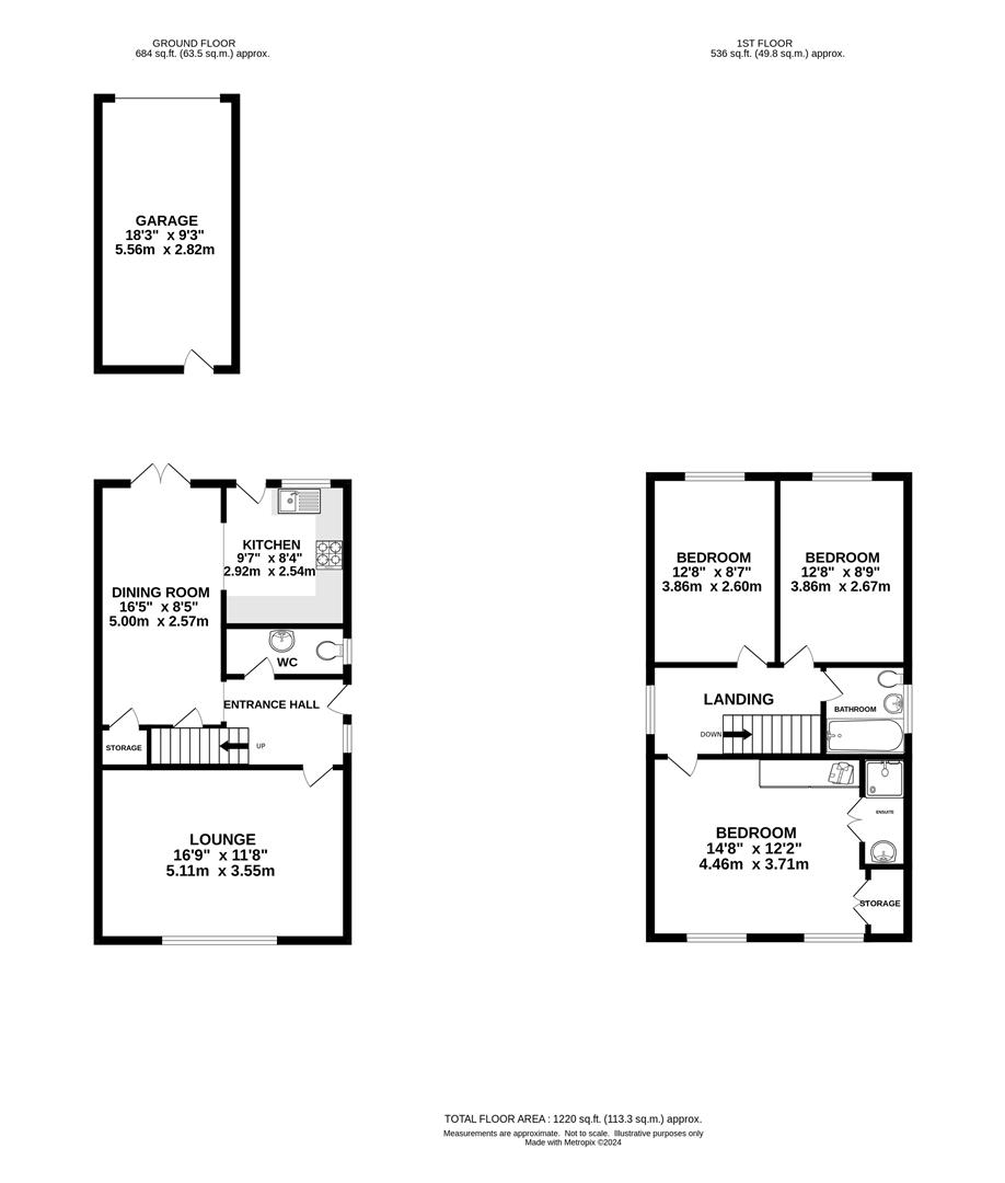
A bright and spacious hallway has stairs rising to the first floor with doors into both reception rooms and a ground floor cloakroom which is fitted with wash hand basin and w.c. A good-sized lounge sits at the front of the property and has a window to the front which overlooks the front garden. There is a further reception room which is in use as a dining room. This room has two large storage cupboards, French doors giving access into the rear garden and an archway which opens into the Kitchen. The kitchen is fitted in a range of white wall and base units with glass display cabinets, and includes an integrated gas hob with extractor above, with ample space for any freestanding appliances. A door from the kitchen gives further access into the garden.

Rising to the first floor there are three good-sized and well-proportioned bedrooms, along with a family bathroom. The main bedroom benefits from having built-in and fitted storage, and access to an en-suite shower room with fully tiled shower cubicle, and modern circular wash hand basin. A family bathroom has part tiled walls and laminate flooring and includes panelled bath with shower over, pedestal wash hand basin and close coupled w.c.

Externally, there is an easy to maintain garden to the rear which commences with a paved patio leading into neat lawns and to the bottom of the garden there is a raised decking area, providing a nice space to sit and relax. Parking is provided by way of a garage, with additional parking space to the side which is located at the rear of the property (accessible from Glovers Field) with pedestrian door into the rear garden, and a further parking space on Blackmore Road. There is a peasant and un-overlooked outlook to the front over a lawned front garden.

Entrance Hall - Stairs rising to the first floor. Door into :

Ground Floor Wc - Fitted in a modern white suite, comprising wash hand basin and close coupled w.c.

Lounge - 5.11m x 3.56m (16'9 x 11'8) - Window to front aspect with views over the front garden. Laminate wood strip flooring.

Dining Room - 5.00m x 2.57m (16'5 x 8'5) - Built-in storage cupboards. French doors to rear giving access to the garden. Laminate wood strip flooring. Archway through to :

Kitchen - 2.92m x 2.54m (9'7 x 8'4) - Fitted in a range of white, wall and base units with integrated gas hob and extractor above. Ample space for freestanding appliances. Further door into rear garden.

First Floor Landing - Doors to all rooms.

Bedroom - 4.47m x 3.71m (14'8 x 12'2) - Two windows to front aspect. Built-in cupboard and fitted bedroom furniture. Double doors to :

En-Suite Shower Room - Modern circular wash hand basin set into vanity unit. Fully tiled shower cubicle.

Bedroom - 3.86m x 2.62m (12'8 x 8'7) - Window to rear aspect.

Bedroom - 3.86m x 2.67m (12'8 x 8'9) - Window to rear aspect.

Family Bathroom - White suite, comprising panelled bath, pedestal wash hand basin and close coupled w.c.

Exterior - Rear Garden - Commencing with a paved patio leading into neat lawns. Raised decking area to the rear. Pedestrian door into garage.

Exterior - Front Garden - Front lawn. Pathway to front door.

Single Garage - 5.56m x 2.82m (18'3 x 9'3) - Located at the rear of the property and accessed from Glovers Field. Pedestrian door from the rear of the garage into the garden. Additional parking spaces to the side of the garage and on Blackmore Road.

Agents Note - Fee Disclosure - As part of the service we offer we may recommend ancillary services to you which we believe may help you with your property transaction. We wish to make you aware, that should you decide to use these services we will receive a referral fee. For full and detailed information please visit 'terms and conditions' on our website www.keithashton.co.uk

Property Ref: 59223_32993239

Share:

Similar Properties

Harwood Avenue, Hornchurch

2 Bedroom Terraced House | Guide Price £475,000

Situated in a pleasant road is this two, double-bedroom extended terrace house with a rear garden measuring in the regio...

Rectory Chase, Doddinghurst, Brentwood

2 Bedroom Detached Bungalow | Guide Price £475,000

Coming to the market with NO ONWARD CHAIN and having excellent potential for improvement and extension, subject to the u...

Ongar Road, Kelvedon Hatch, Brentwood

3 Bedroom End of Terrace House | Offers in excess of £475,000

A light and airy character three bedroom end of terrace cottage which has been improved and extended over the years and...

Birch Crescent, Hornchurch

3 Bedroom Terraced House | Guide Price £485,000

We are delighted to bring to market this well-presented and extended, three-bedroom terrace house which benefits from a...

Green Lane, Blackmore, Ingatestone

4 Bedroom Bungalow | Guide Price £485,000

Having been beautifully maintained by the current Vendors we are delighted to bring to market this chalet style bungalow...

Wyatts Green Lane, Wyatts Green, Brentwood

3 Bedroom Semi-Detached House | Offers in excess of £490,000

We are delighted to bring to market this semi-detached family home which located in a quiet turning in Wyatts Green and...

Keith Ashton Estates - Village Office (Kelvedon Hatch)

38 Blackmore Road, Kelvedon Hatch, Essex, CM15 0AT

01277 375757

How much is your home worth?

Use our short form to request a valuation of your property.

Request a Valuation

Mortgage Calculator

Amount Borrowed: £
Total Amount Repayable: £
Total Monthly Payment: £
©2025 The Guild of Property Professionals. All rights reserved. Terms and Conditions | Privacy Policy | Cookie Policy | Complaints Policy | Members Login
The Guild of Property Professionals Trading Address: 121 Park Lane, London W1K 7AG. GPEA Limited. Registered in England & Wales.  Company No: 02819824.  Registered Office Address: 2 St. Stephen's Court, St. Stephen's Road, Bournemouth, Dorset, England, BH2 6LA.  VAT Registration No: 576 8795 61
Book a Property Valuation Update Cookies Preferences