Coxtie Green Road, Pilgrims Hatch, Brentwood

Offers in excess of
£475,000

2 Bedroom Terraced House for sale in Brentwood

2 2 2
  • TWO DOUBLE BEDROOMS
  • EXTENDED & COMPLETELY REFURBISHED
  • VACANT - NO ONWARD CHAIN
  • EN-SUITES TO BOTH BEDROOMS
  • OPEN PLAN KITCHEN / DINER
  • SEPARATE LOUNGE
  • GROUND FLOOR CLOAKROOM & SEPARATE UTILTY ROOM
  • AMPLE OFF STREET PARKING

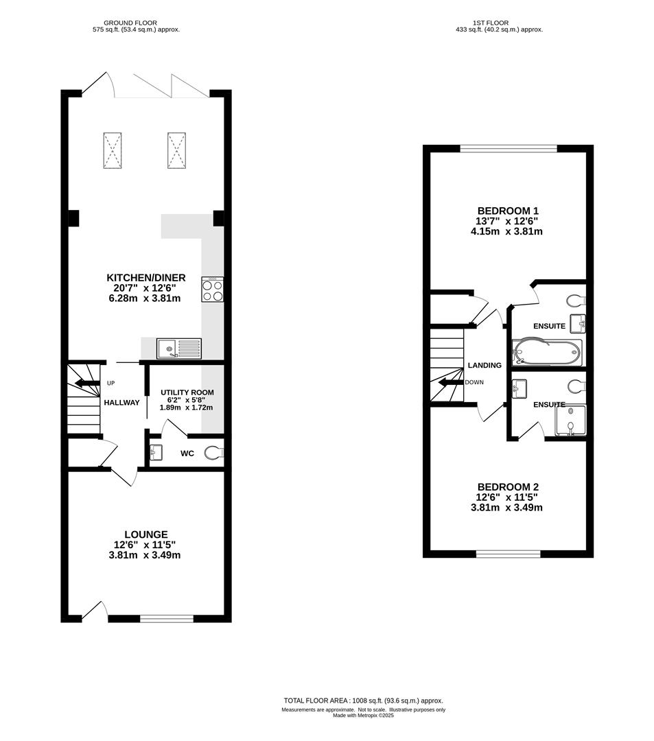
Having been completely refurbished to a high standard and extended to the rear to create a fabulous open plan kitchen / diner is this two, double bedroom mid terrace cottage which is located in a sought-after country lane with fields to the front elevation. Further benefits are a separate, spacious lounge, separate utility room, a ground floor cloakroom, en-suites to both bedrooms and ample off-street parking to the front and to the rear of the property. Coxtie Green Road is situated on the edge of Pilgrims Hatch, with the beautiful Weald Country Park and Brentwood Golf Course within close proximity. The property is also just a short drive into Brentwood and Shenfield Town centres where you have High Street shopping and mainline train services into London. Coming to the market with NO ONWARD CHAIN.

Entering the property, you find yourself immediately in a spacious lounge with sash windows to front aspect overlooking pleasant field views. An inner hallway is accessible from the lounge, here you will find stairs rising to the first-floor level with a large built-in storage cupboard under and further storage space which could be utilized for a small study area. A sliding door gives access into a separate utility room which has wall and base units and space/plumbing for appliances. A further door opens into a modern ground floor cloakroom. As previously mentioned, the property has been extended to the rear to create a wonderful kitchen / diner with bi-folding doors opening onto the rear garden. The kitchen area has been fitted in a range of stylish black, gloss wall and base units with quartz work surfaces over and includes an integrated oven with hob and extractor above.

Rising to the first floor you have two double bedrooms, both with pleasant views from the front and rear windows. Both bedrooms benefit from having access to individual en-suites, one with a L-shaped bath with shower over, wc and wash hand basin and the other a shower cubicle, wash hand basin and w.c.

At the rear of the property there is an easy to maintain garden which commences with a paved patio with a pathway to the side which leads to the side access. The remainder of the garden is laid to lawn. There are three parking spaces provided with off-street parking to the front of the property and to the rear (which is accessible from Rainbird Place)

Front Door Into : -

Lounge - 3.81m x 3.48m (12'6 x 11'5) - Window to front aspect. Door into :

Inner Hallway - Stairs to first floor. Understairs storage area & cupboard. Sliding door to utility room which gives access into the ground floor cloakroom.

Utility Room - 1.88m x 1.73m (6'2 x 5'8) - Wall and base units with sink unit and space/plumbing for appliances. Door to :

Ground Floor Cloakroom - Wash hand basin and w.c.

Kitchen / Diner - 6.27m x 3.81m (20'7 x 12'6) - Modern, black gloss wall and base units with contrasting work surface over. Peninsular breakfast bar with seating space. Open plan to the dining area where you find bi-folding doors opening onto the rear garden.

First Floor Landing - Doors to all rooms.

Bedroom One - 4.14m x 3.81m (13'7 x 12'6) - Window to rear aspect. Built-in storage cupboard. Door to :

En-Suite Bathroom - L-Shaped, panelled bath with shower over, wash hand basin and w.c.

Bedroom Two - 3.81m x3.48m (12'6 x11'5) - Window to front aspect. Door to :

En-Suite Shower Room - Shower cubicle, wash hand basin and w.c.

Exterior - Rear Garden - Paved patio leading into lawn. Side access (accessible from Rainbird Place)

Exterior - Front Garden - Loose stone driveway and paved pathway.

Parking - There is parking on the driveway to the front of the house and a further two spaces to the rear (accessible from Rainbird Place)

Agents Note - Fee Disclosure - As part of the service we offer we may recommend ancillary services to you which we believe may help you with your property transaction. We wish to make you aware, that should you decide to use these services we will receive a referral fee. For full and detailed information please visit 'terms and conditions' on our website www.keithashton.co.uk

Property Ref: 34305604

Share:

Similar Properties

Harwood Avenue, Hornchurch

2 Bedroom Terraced House | Guide Price £475,000

Situated in a pleasant road is this two, double-bedroom extended terrace house with a rear garden measuring in the regio...

Swan Lane, Kelvedon Hatch

3 Bedroom Detached House | Guide Price £475,000

*Guide Price ?475,000 - ?500,000* This part-weatherboarded, three-bedroom link-detached family home is situated in a ple...

Yoxley Drive, Ilford

3 Bedroom Terraced House | Guide Price £475,000

Offering an excellent opportunity for improvement and extension to the rear and into the loft space (stpp), is this thre...

Birch Crescent, Hornchurch

3 Bedroom Terraced House | Guide Price £485,000

We are delighted to bring to market this well-presented and extended, three-bedroom terrace house which benefits from a...

Green Lane, Blackmore, Ingatestone

4 Bedroom Bungalow | Guide Price £485,000

Having been beautifully maintained by the current Vendors we are delighted to bring to market this chalet style bungalow...

Wyatts Green Lane, Wyatts Green, Brentwood

3 Bedroom Semi-Detached House | Offers in excess of £490,000

We are delighted to bring to market this semi-detached family home which located in a quiet turning in Wyatts Green and...

Keith Ashton Estates - Village Office (Kelvedon Hatch)

38 Blackmore Road, Kelvedon Hatch, Essex, CM15 0AT

01277 375757

How much is your home worth?

Use our short form to request a valuation of your property.

Request a Valuation

Mortgage Calculator

Amount Borrowed: £
Total Amount Repayable: £
Total Monthly Payment: £
©2026 The Guild of Property Professionals. All rights reserved. Terms and Conditions | Privacy Policy | Cookie Policy | Complaints Policy | Members Login
The Guild of Property Professionals Trading Address: 121 Park Lane, London W1K 7AG. GPEA Limited. Registered in England & Wales.  Company No: 02819824.  Registered Office Address: 2 St. Stephen's Court, St. Stephen's Road, Bournemouth, Dorset, England, BH2 6LA.  VAT Registration No: 576 8795 61
Book a Property Valuation Update Cookies Preferences