Yoxley Drive, Ilford

Guide Price
£475,000
SSTC
This property listing is now SSTC

3 Bedroom Terraced House for sale in Ilford

2 3 1
  • THREE BEDROOM FAMILY HOME
  • EXCELLENT POTENTIAL FOR IMPROVEMENT
  • TWO RECEPTION ROOMS
  • GALLEY KITCHEN
  • SHORT WALK TO NEWBURY PARK TRAIN STATION
  • WALKABLE TO LOCAL SCHOOLS
  • WEST FACING REAR GARDEN
  • OFF STREET PARKING

Offering an excellent opportunity for improvement and extension to the rear and into the loft space (stpp), is this three-bedroom mid-terrace family home. The property is perfectly situated for easy access to the A12 and North Circular, and for those looking for train travel, Newbury Park Station serving the underground and central line is just a short walk away, as is Gants Hill Station. Families with children looking at schooling options, will note that the property is also within walking distance of Newbury Park Primary School, along with Oak Park Secondary School and Sixth Form College.

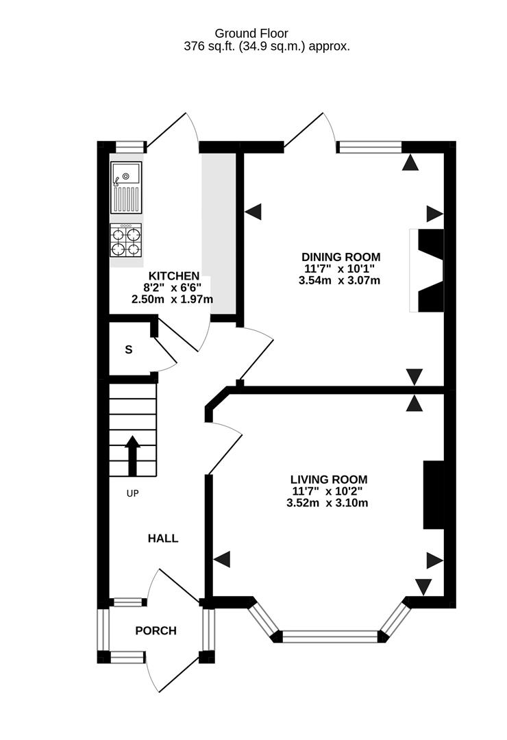
To the front of the property there is an enclosed porch which leads into the hallway. In the hallway there are stairs which rise to the first floor and give access into the kitchen, living room and dining room. A large bay window in this rooms provides lots of natural lighting. There is a further reception/dining room which sits at the rear of the property and has a double-glazed door which offers access onto a patio area in the rear garden. A well fitted galley kitchen, has a range of wall and base units with serving hatch through to the dining room. There is ample space in the kitchen for freestanding appliances and there is a further door into the rear garden.

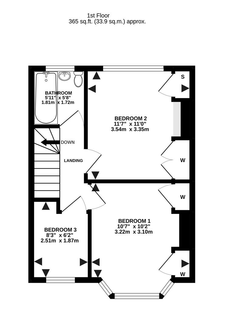
Rising to the first floor you will find three well-proportioned bedrooms, along with a family bathroom, fitted in a three-piece suite.

Externally, the property has a West facing rear garden which measures in the region of 35' in length. To the immediate rear of the property there is a paved patio area which has steps leading down to the lawn. To the bottom of the garden there is a timber framed shed which will remain. The property has its own driveway, which could accommodate off street parking for two cars.

Porch - Door into :

Hallway - Stairs rising to first floor. Storage cupboard

Lounge - 3.53m x 3.10m (11'7 x 10'2) -

Dining Room - 3.53m x 3.07m (11'7 x 10'1) - Double-glazed door onto rear garden.

Galley Kitchen - 2.49m x 1.98m (8'2 x 6'6) - Fitted in a range of wall and base units, with serving hatch through to dining room. Space for appliances. Door to garden.

First Floor Landing - Doors to all rooms.

Bedroom One - 3.23m x 3.10m (10'7 x 10'2) - Window to front aspect. Built-in wardrobes.

Bedroom Two - 3.53m x 3.35m 0.00m (11'7 x 11' 0) - Window to rear aspect. Built-in wardrobes.

Bedroom Three - 2.51m x 1.88m (8'3 x 6'2) - Window to front aspect.

Family Bathroom - 1.80m x 1.73m (5'11 x 5'8) - Fitted in a three piece suite.

Exterior - Rear Garden - 10.67m approx in length (35' approx in length) - West Facing. Patio area to immediate rear of house with steps leading down to lawned area.

Exterior - Front Garden - Off street parking for two cars.

Agents Note - Fee Disclosure - As part of the service we offer we may recommend ancillary services to you which we believe may help you with your property transaction. We wish to make you aware, that should you decide to use these services we will receive a referral fee. For full and detailed information please visit 'terms and conditions' on our website www.keithashton.co.uk

Property Ref: 31783693

Share:

Similar Properties

Swan Lane, Kelvedon Hatch

3 Bedroom Detached House | Guide Price £475,000

*Guide Price ?475,000 - ?500,000* This part-weatherboarded, three-bedroom link-detached family home is situated in a ple...

Harwood Avenue, Hornchurch

2 Bedroom Terraced House | Guide Price £475,000

Situated in a pleasant road is this two, double-bedroom extended terrace house with a rear garden measuring in the regio...

Coxtie Green Road, Pilgrims Hatch, Brentwood

2 Bedroom Terraced House | Offers in excess of £475,000

Having been completely refurbished to a high standard and extended to the rear to create a fabulous open plan kitchen /...

Birch Crescent, Hornchurch

3 Bedroom Terraced House | Guide Price £485,000

We are delighted to bring to market this well-presented and extended, three-bedroom terrace house which benefits from a...

Green Lane, Blackmore, Ingatestone

4 Bedroom Bungalow | Guide Price £485,000

Having been beautifully maintained by the current Vendors we are delighted to bring to market this chalet style bungalow...

Wyatts Green Lane, Wyatts Green, Brentwood

3 Bedroom Semi-Detached House | Offers in excess of £490,000

We are delighted to bring to market this semi-detached family home which located in a quiet turning in Wyatts Green and...

Keith Ashton Estates - Village Office (Kelvedon Hatch)

38 Blackmore Road, Kelvedon Hatch, Essex, CM15 0AT

01277 375757

How much is your home worth?

Use our short form to request a valuation of your property.

Request a Valuation

Mortgage Calculator

Amount Borrowed: £
Total Amount Repayable: £
Total Monthly Payment: £
©2026 The Guild of Property Professionals. All rights reserved. Terms and Conditions | Privacy Policy | Cookie Policy | Complaints Policy | Members Login
The Guild of Property Professionals Trading Address: 121 Park Lane, London W1K 7AG. GPEA Limited. Registered in England & Wales.  Company No: 02819824.  Registered Office Address: 2 St. Stephen's Court, St. Stephen's Road, Bournemouth, Dorset, England, BH2 6LA.  VAT Registration No: 576 8795 61
Book a Property Valuation Update Cookies Preferences