Alfred Road, Brentwood

£385,000
SSTC
This property listing is now SSTC

2 Bedroom End of Terrace House for sale in Brentwood

1 2 1
  • NO ONWARD CHAIN
  • 2 BED END TERRACE
  • EXTENDED TO THE REAR
  • PRIVATE COURTYARD FRONT GARDEN
  • OUTHOUSE IN GARDEN
  • UTILITY AREA
  • PARKING PERMIT
  • DESIRABLE LOCATION

Nestled in the charming area of Alfred Road, Brentwood, this delightful two-bedroom house presents an excellent opportunity for those seeking a comfortable and inviting home. Ideally located within a stones throw of Brentwood's vibrant High Street this home benefits from a community atmosphere, with local shops, schools, and parks all within easy reach. The area is well-connected, offering convenient transport links for those commuting.

This property is an ideal choice for anyone looking to settle in a friendly neighbourhood while enjoying the comforts of a well-designed home. With its appealing features and prime location, this house on Alfred Road is not to be missed.

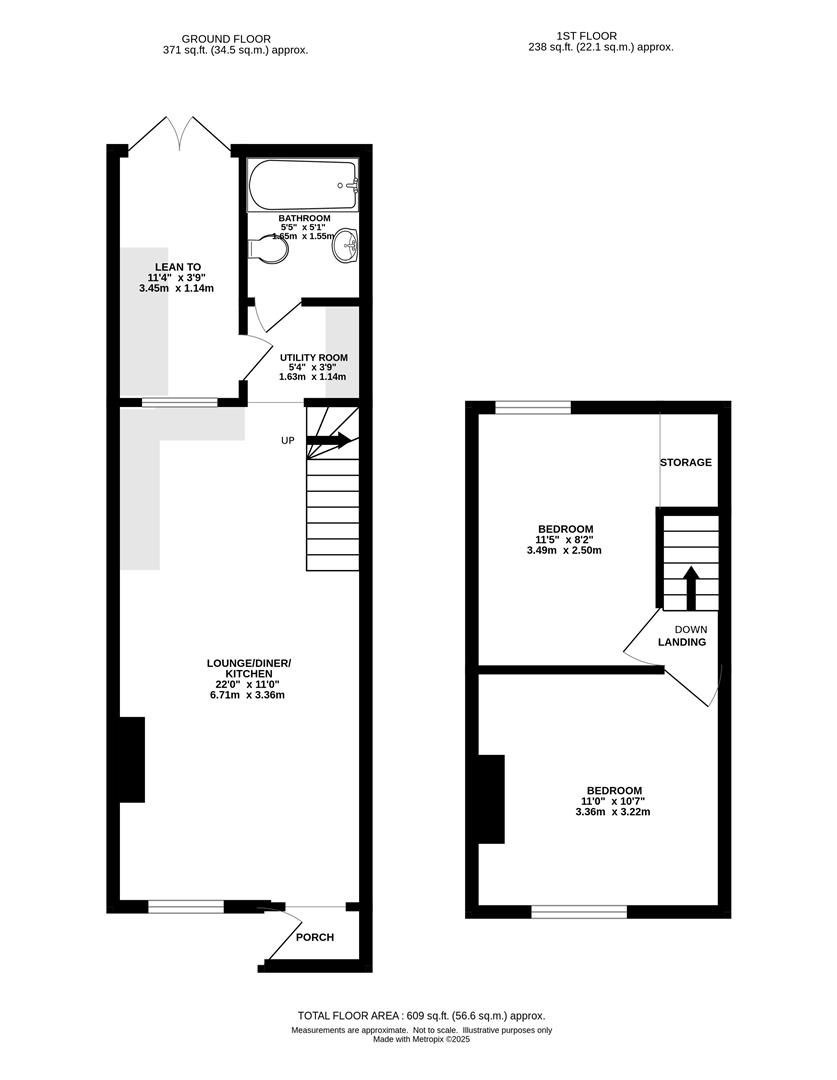
This charming two-bedroom home offers a well-designed layout across two floors, providing comfort and practicality in equal measure. On the ground floor, you are welcomed through a porch into a spacious open-plan lounge, diner, and kitchen that extends the full length of the property, creating a bright and versatile living space perfect for both relaxing and entertaining. To the rear, a utility room adds everyday convenience, while a bathroom and a lean-to completes the ground floor layout.

Upstairs, the first floor is home to two well-proportioned bedrooms, each filled with natural light. The larger bedroom enjoys extra space for wardrobes or a seating area, while the second bedroom benefits from its own storage area, making it ideal for guests, children, or a home office. Externally, the property enjoys a well maintained rear garden, laid principally to lawn with a convenient outhouse that provides extra storage.

With a total floor area of approximately 609 square feet (56.6 sq. m), this property combines practical features with a warm and inviting feel. It is an ideal choice for first-time buyers, downsizers, or those seeking a well-located investment property.

Porch -

Lounge/Kitchen/Diner - 6.71m x 3.35m (22'0 x 11'0) -

Utility Room - 1.63m x 1.14m (5'4 x 3'9) -

Lean To - 3.45m x 1.14m (11'4 x 3'9) -

Bathroom - 1.65m x 1.55m (5'5 x 5'1) -

Bedroom One - 3.35m x 3.23m (11'0 x 10'7) -

Bedroom Two - 3.48m x 2.49m (11'5 x 8'2) -

Agents Note - As part of the service we offer we may recommend ancillary services to you which we believe may help you with your property transaction. We wish to make you aware, that should you decide to use these services we will receive a referral fee. For full and detailed information please visit 'terms and conditions' on our website www.keithashton.co.uk

Property Ref: 8226_34172441

Share:

Similar Properties

Cedar Road, Hutton, Brentwood

2 Bedroom Bungalow | Offers in excess of £375,000

We bring to market this two-bedroom semi-detached bungalow, nestled in a tranquil cul-de-sac within a sought-after area...

Lascelles Close, Pilgrims Hatch, Brentwood

3 Bedroom End of Terrace House | Guide Price £375,000

**Guide Price £375,000 - £400,000** We are pleased to present this three-bedroom end-of-terrace home, ideally situated i...

Heather Close, Pilgrims Hatch, Brentwood

3 Bedroom Terraced House | £375,000

Offered with No Onward Chain, we are pleased to bring to market this three-bedroom, mid-terrace home, located in the sou...

Sussex Road, Warley, Brentwood

2 Bedroom House | Guide Price £400,000

**GUIDE PRICE £400,000 - £425,000** Perfect for a first-time buyer, investor or commuter is this two, double bedroom end...

Burnell Walk, Great Warley, Brentwood

3 Bedroom End of Terrace House | £400,000

We are delighted to bring to market this three-bedroom family home, offered with no onward chain and conveniently locate...

Balmoral Road, Pilgrims Hatch, Brentwood

2 Bedroom Terraced House | £400,000

We are pleased to bring to market this two-bedroom mid-terrace home, ideally located in the ever-popular Pilgrims Hatch...

Keith Ashton Estates - Brentwood Office (Brentwood)

26 St. Thomas Road, Brentwood, Essex, CM14 4DB

01277 260858

How much is your home worth?

Use our short form to request a valuation of your property.

Request a Valuation

Mortgage Calculator

Amount Borrowed: £
Total Amount Repayable: £
Total Monthly Payment: £
©2025 The Guild of Property Professionals. All rights reserved. Terms and Conditions | Privacy Policy | Cookie Policy | Complaints Policy | Members Login
The Guild of Property Professionals Trading Address: 121 Park Lane, London W1K 7AG. GPEA Limited. Registered in England & Wales.  Company No: 02819824.  Registered Office Address: 2 St. Stephen's Court, St. Stephen's Road, Bournemouth, Dorset, England, BH2 6LA.  VAT Registration No: 576 8795 61
Book a Property Valuation Update Cookies Preferences