Osborne Road, Broadstairs, CT10

£399,950

3 Bedroom Semi-Detached House for sale in Broadstairs

2 3 3
  • Substantial Period House
  • Arranged as Two Flats
  • Ground Floor One Bedroom Flat
  • Upper Floors Two Bedroom Flat
  • Both With Private Gardens
  • Well Presented Accommodation
  • Option to Revert to One House
  • Investment Opportunity

This substantial well presented semi-detached Victorian house is currently arranged as two flats and is situated within close proximity of local shops, schools and the railway station.

On the ground floor is a one bedroom self-contained flat with a recently fitted stylish kitchen, bathroom/WC with bath and separate shower and a bright living room with direct access out to a private garden area.

The upper flat is arranged over the first and second floors and comprises, a spacious living room, fitted kitchen and bathroom/WC at first floor level and two double bedrooms, with an en-suite shower room/WC to the principal bedroom, on the second floor. This flat also benefits from a private allocated garden area at the rear of the property. There is an informal parking area for one vehicle to the front of the property.

The property would be suitable for an owner occupier who is looking to provide independent accommodation for a dependent, or for a buy to let investor. Alternatively the property could revert to a single substantial semi-detached house. The property is being offered with no forward chain. To arrange your viewing appointment call the agents Terence Painter on 01843 866866

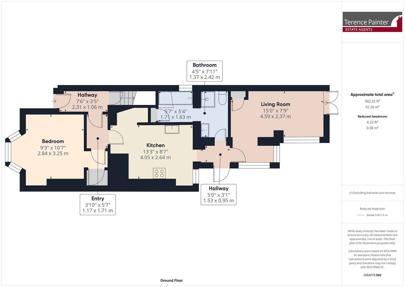
Ground Floor


Entrance
Via composite front door leading to entrance lobby with cupboard housing electric meters. Further half glazed door to entrance hall with doors to ground floor flat and upper flat.

Flat One - Ground Floor Flat


Hallway
Cupboard housing electric consumer unit. Fitted carpet. Door to bedroom and kitchen.

Bedroom
3.52m extending to 4.15m into bay x 3.26m (11' 7"

Important Information

  • This is a Freehold property.

Property Ref: 5345346_28830442

Share:

Similar Properties

College Gardens, Westgate-on-Sea, CT8

4 Bedroom Townhouse | £399,950

A VERY WELL PRESENTED FAMILY TOWN HOUSE LOCATED WITHIN THE PRESTIGIOUS ST AUGUSTINE'S PARK DEVELOPMENT AT WESTGATE ON SE...

Ramsgate Road, Broadstairs, CT10

3 Bedroom Semi-Detached House | £385,000

A SPACIOUS AND BEAUTIFULLY PRESENTED THREE DOUBLE BEDROOM SEMI-DETACHED HOUSE LOCATED IN A CONVENIENT TOWN CENTRE LOCATI...

16 Victoria Parade, Broadstairs, CT10

2 Bedroom Flat | £360,000

STUNNING & SPACIOUS SEA FRONT APARTMENT LOCATED IN ONE OF BROADSTAIRS' MOST DESIRABLE AREAS, OFFERING SPECTACULAR UNINTE...

Farley Road, Margate, CT9

4 Bedroom Semi-Detached House | £399,995

IMMACULATELY PRESENTED, SPACIOUS & EXTENDED FOUR BEDROOM SEMI-DETACHED HOUSE BEING OFFERED TO THE MARKET WITH NO FORWARD...

Drapers Avenue, Margate, CT9

4 Bedroom Semi-Detached House | £425,000

A TRULY STUNNING EXTENDED FOUR BEDROOM SEMI-DETACHED FAMILY HOME IN CENTRAL MARGATE LOCATION, WHICH WILL NOT FAIL TO IMP...

Harbour Street, Ramsgate, CT11

3 Bedroom Commercial Property | £425,000

FREEHOLD MIXED INVESTMENT PROPERTY LOCATED IN PRIME TOWN CENTRE LOCATIONThis substantial mixed commercial and residentia...

Terence Painter Estate Agents (Broadstairs)

Broadstairs, Kent, CT10 1JT

01843 866866

How much is your home worth?

Use our short form to request a valuation of your property.

Request a Valuation

Mortgage Calculator

Amount Borrowed: £
Total Amount Repayable: £
Total Monthly Payment: £
©2025 The Guild of Property Professionals. All rights reserved. Terms and Conditions | Privacy Policy | Cookie Policy | Complaints Policy | Members Login
The Guild of Property Professionals Trading Address: 121 Park Lane, London W1K 7AG. GPEA Limited. Registered in England & Wales.  Company No: 02819824.  Registered Office Address: 2 St. Stephen's Court, St. Stephen's Road, Bournemouth, Dorset, England, BH2 6LA.  VAT Registration No: 576 8795 61
Book a Property Valuation Update Cookies Preferences