Colliers Way, Huntington, Cannock

Offers Over
£385,000
SSTC
This property listing is now SSTC

4 Bedroom Detached House for sale in Cannock

2 4 3
  • LARGE DETACHED HOME SET OVER THREE FLOORS
  • WELL PRESENTED THROUGHOUT
  • ORIGINALLY A FIVE BEDROOM HOME
  • STUNNING L SHAPED KITCHEN,DINING AND FAMILY AREA
  • SPACIOUS LOUNGE
  • LANDSCAPED REAR GARDEN
  • TWO BEDROOMS WITH EN-SUITE BATHROOMS
  • EXCELLENT SCHOOLS AND TRANSPORT LINKS
  • UTILITY AND GUEST WC
  • VIEWING ADVISED TO FULLY APPRECIATE THE PROPERTY ON OFFER

** STUNNING FAMILY HOME ** SET OVER THREE FLOORS ** ORIGINALLY A FIVE BEDROOM HOME ** ENVIABLE EXTENDED KITCHEN, DINING AND FAMILY SPACE ** LANDSCAPED REAR GARDEN ** TWO ENSUITE BEDROOMS ** AMPLE OFF ROAD PARKING ** EARLY VIEWING ADVISED **
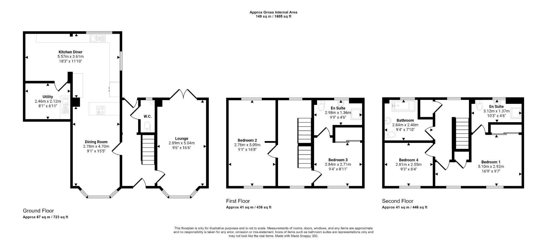
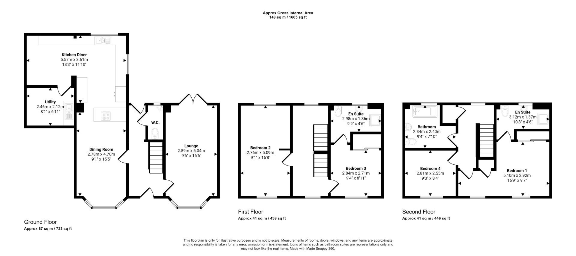
Set on a sought-after development in Huntington, Cannock, this spacious and extended three-storey property which was previously a five-bedroom home, offering excellent access to local schools, transport links, and everyday amenities.
This attractive double-fronted home provides generous living space across three floors. The ground level comprises a welcoming entrance hall, a bright lounge, a stylish extended kitchen, dining and family room ideal for everyday living, utility room and a convenient guest cloakroom complete the ground floor.
On the first floor are two well-proportioned double bedrooms, including one with a contemporary en-suite. The top floor hosts a further two double bedrooms alongside two modern bathrooms, offering flexibility for larger families or visiting guests.
Occupying a prominent corner plot on a peaceful residential street, the home benefits from two driveways - one on either side of the property - providing ample off-road parking and access to the converted garage. The recently landscaped rear garden features a mix of slabbed and decked seating areas, low-maintenance artificial turf with block-paved edging, and two handy storage sheds.

VIEWING STRONGLY ADVISED TO FULLY APPRECIATE THE SIZE AND STANDARD OF THE PROPERTY ON OFFER.

Hallway -

Guests Wc -

Lounge - 2.89m x 5.04m (9'5" x 16'6") -

Kitchen/Diner/Family Room - 5.57m x 8.31m (18'3" x 27'3") -

Utility - 2.46m x 2.12m (8'0" x 6'11") -

First Floor Landing -

Bedroom 2 - 5.09m x 2.76m (16'8" x 9'0") -

Bedroom 3 - 2.84m x 2.71m (9'3" x 8'10") -

En-Suite - 2.98m x 1.36m (9'9" x 4'5") -

Second Floor Landing -

Master Bedroom - 5.10m x 2.92m (16'8" x 9'6") -

En-Suite - 3.12m x 1.37m (10'2" x 4'5") -

Bedroom 4 - 2.81m x 2.55m (9'2" x 8'4") -

Bathroom - 2.84m x 2.40m (9'3" x 7'10") -

Landscaped Rear Garden -

Two Driveways And Frontage -

Identification Checks - C - Should a purchaser(s) have an offer accepted on a property marketed by Webbs Estate Agents they will need to undertake an identification check. This is done to meet our obligation under Anti Money Laundering Regulations (AML) and is a legal requirement. We use a specialist third party service to verify your identity. The cost of these checks is £36 inc. VAT per buyer, which is paid in advance, when an offer is agreed and prior to a sales memorandum being issued. This charge is non-refundable.

Property Ref: 34187440

Share:

Similar Properties

Chenet Way, Cannock

4 Bedroom Detached House | Offers Over £380,000

** POPULAR TOWN CENTRE LOCATION ** SPACIOUS DETACHED ** FOUR BEDROOMS ** EN-SUITE TO MASTER ** SPACIOUS LOUNGE ** MODERN...

Baneberry Drive, Featherstone, Wolverhampton

4 Bedroom Detached House | £380,000

A beautifully modernised detached residence situated on the fringe of Featherstone, offering convenient access to Wolver...

Hatherton Street, Cheslyn Hay, Walsall

4 Bedroom House | Offers in region of £375,000

** WOW ** STUNNING TRADITIONAL THREE STOREY SEMI DETACHED ** MASTER EN-SUITE ** FOUR DOUBLE BEDROOMS ** DOWNSTAIRS SHOWE...

Stag Drive, Huntington, Cannock

4 Bedroom Detached House | Offers in excess of £390,000

Nestled in the desirable area of Stag Drive, Huntington, Cannock, this splendid detached house offers a perfect blend of...

Poplar Lane, Shoal Hill, Cannock

3 Bedroom Detached House | Offers in region of £395,000

** NO CHAIN ** FABULOUS DETACHED HOME ** OUTSTANDING POTENTIAL FOR EXTENSION ** HIGHLY SOUGHT AFTER LOCATION ** ARCHITEC...

Stafford Road, Cannock

5 Bedroom Detached House | £395,000

** REDUCED FOR QUICK SALE ** ENVIABLE VERSATILE FAMILY HOME ** LARGE LOUNGE DINER ** WELL EQUIPPED KITCHEN ** UTILITY AN...

Webbs Estate Agents (Cannock)

Cannock, Staffordshire, WS11 1LF

01543 468846

How much is your home worth?

Use our short form to request a valuation of your property.

Request a Valuation

Mortgage Calculator

Amount Borrowed: £
Total Amount Repayable: £
Total Monthly Payment: £
©2026 The Guild of Property Professionals. All rights reserved. Terms and Conditions | Privacy Policy | Cookie Policy | Complaints Policy | Members Login
The Guild of Property Professionals Trading Address: 121 Park Lane, London W1K 7AG. GPEA Limited. Registered in England & Wales.  Company No: 02819824.  Registered Office Address: 2 St. Stephen's Court, St. Stephen's Road, Bournemouth, Dorset, England, BH2 6LA.  VAT Registration No: 576 8795 61
Book a Property Valuation Update Cookies Preferences