Dumont Avenue, Point Clear

£588,000

4 Bedroom Detached House for sale in Clacton-on-Sea

2 4 3
  • Detached Family Home
  • Four Double Bedrooms
  • Two En Suites plus Family Bathroom
  • Picturesque Countryside Views
  • Unfinished Project
  • Ample Off Street Parking
  • 83' x 59' Rear Garden
  • Coastal Rural Village

This one has unfinished business, which gives you your chance to create your own corner of paradise. The last house in the road, this four double bedroom executive home is an unfinished project with simply STUNNING views, and is nestled in a private road section within a semi rural idyllic location.

Council Tax Band: E
Tenure: Freehold
Parking options: Driveway, Off Street
Garden details: Private Garden, Rear Garden


Details with approximate only room sizes
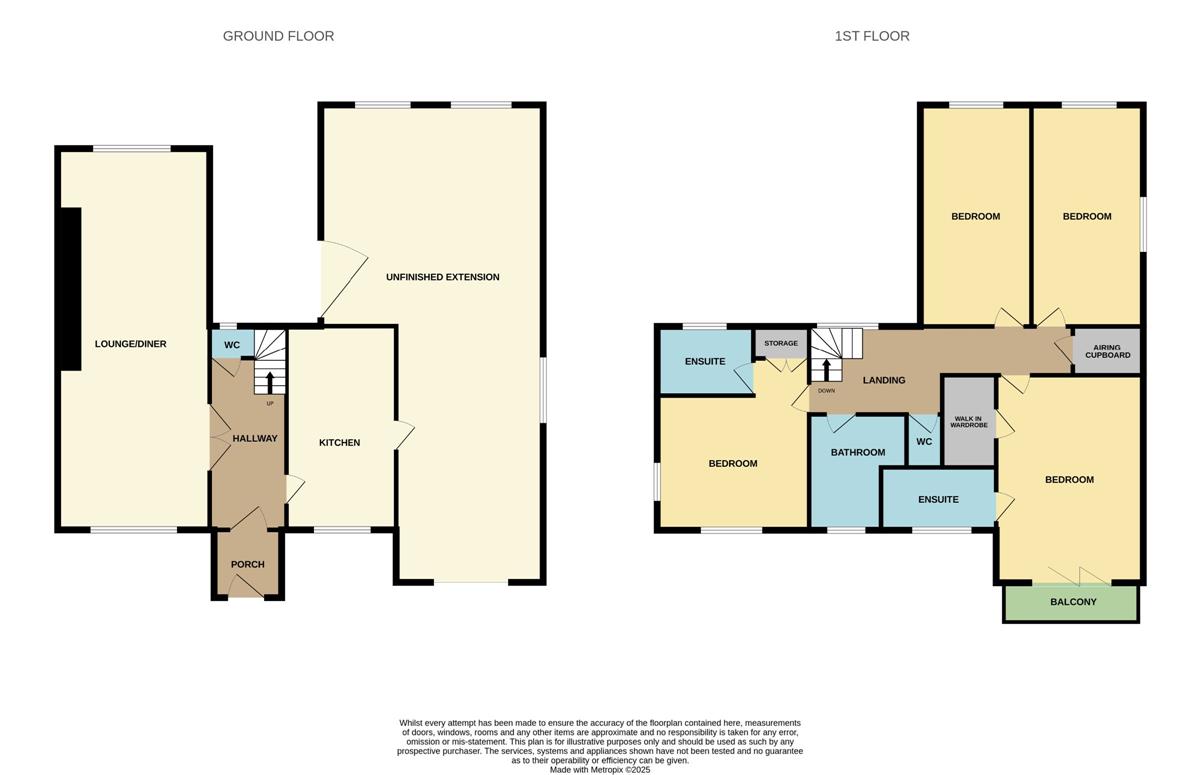
Storm porch giving access via panelled entrance door to fully enclosed porch, tiled floor, further door to

Entrance Hall
Tiled floor, returning stair flight to first floor with picture window back drop, further doors to

Lounge/Diner w: 3.99m x l: 10.06m (w: 13' 1" x l: 33' )
Currently in an unfinished condition, solid fuel stove set in recess, double glazed front and rear window, under floor heating (n/t). We understand the seller had planned to install wrap around windows and patio doors to the rear onto the garden.

Cloakroom w: 0.84m x l: 1.57m (w: 2' 9" x l: 5' 2")
With low level WC, wash hand basin, tiled flooring, double glazed rear window.

Kitchen w: 2.9m x l: 5.31m (w: 9' 6" x l: 17' 5")
Fitted with a wood effect fronted units comprising laminated rolled edge work tops with cupboards and drawers below, breakfast bar area, fitted oven, hob and extractor hood, inset single drainer sink unit, double glazed front window, double glazed door to

Unfinished Extension w: 5.84m x l: 12.65m (w: 19' 2" x l: 41' 6")
The area is L shaped in design and has been externally planked with internal walls and ceiling insulation to most parts. We believe there are electrics and plumbing present, therefore the area lends itself to provide accommodation by design. The L shaped measurements are 41'6" length x 19'2" nar 12'8" width. Currently with double glazed windows to front and side, and opening to the front which lends itself to opening doors.

Landing
Double glazed picture rear window, radiator, airing cupboard housing electric heating boiler for first floor heating system, loft access, doors to

Bedroom 1 w: 3.84m x l: 5.08m (w: 12' 7" x l: 16' 8")
Radiator, bi-fold doors to front facing balcony with farmland and distant estuary views, walk in wardrobe, doors to

En-suite w: 1.65m x l: 2.97m (w: 5' 5" x l: 9' 9")
White suite comprising of double shower cubicle, wash hand basin, low level WC, tiled floor and splash backs, heated towel rail, double glazed front window.

Bedroom 2 w: 4.01m x l: 3.1m (w: 13' 2" x l: 10' 2")
Radiator, double glazed front and side windows, store cupboard with double doors, door to

En-suite w: 1.73m x l: 2.51m (w: 5' 8" x l: 8' 3")
White suite with double shower cubicle, wash hand basin, low level WC, tiled floor and splash backs, heated towel rail, double glazed rear window

Bedroom 3 w: 2.79m x l: 5.89m (w: 9' 2" x l: 19' 4")
Radiator, double glazed window to side and rear

Bedroom 4 w: 2.82m x l: 5.89m (w: 9' 3" x l: 19' 4")
Fitted wardrobe, radiator, double glazed rear window

Bathroom
Suite comprising of circular bath with tiled surround, wash hand basin, double shower cubicle with mirrored sliding enclosure doors, tiled walls and floor, heated towel rail, double glazed front window.

Separate WC
Comprising of low level WC, wash hand basin, part tiled walls and floor.

Outside
The property is currently the last property in the road and is accessed via a private gravelled driveway with picturesque views to the front and side over farm and natural land extending to distant views towards the estuary.
The rear garden is approx 83' x 59' mainly laid to lawn with mature shrubs and tree.

Material Information
Tenure: Freehold
Council Tax Band: E
Any known additional property charges: None currently known
Non-standard property features to note: The property has been extended but is currently an unfinished project.
Disclosures to declare: The property is located at the end of a private access road.
Gas: No
Electricity: Yes
Water: Connected to mains
Sewerage Type: To be confirmed
Broadband: Available
Mobile coverage: Available - Please refer to checker.ofcom.org.uk

Flood Risk:
Surface water: Very Low Rivers and the sea: Very Low
Other flood risks: Groundwater: Flooding from groundwater is unlikely in this area.
Reservoirs: Flooding from reservoirs is unlikely in this area.
For more information visit: https://check-long-term-flood-risk.service.gov.uk/postcode

Important Information

  • This is a Freehold property.

Property Ref: 5628112_RS0973

Share:

Similar Properties

Wash Lane, Clacton-on-Sea

4 Bedroom Detached House | Guide Price £500,000

*Guide Price £500,000 to £550,000* Situated in the highly sought after 'Royals Area' is this 1920's built 4 bedroom, 3 r...

Clotree House, Colchester Road, Thorpe-le-Soken, Clacton-on-Sea

4 Bedroom Detached House | £475,000

This BRAND NEW four bedroom detached house located within the sought after and historic village of THORPE LE SOKEN with...

Maetree House, Colchester Road, Thorpe-le-Soken, Clacton-on-Sea

4 Bedroom Detached House | £475,000

This BRAND NEW four bedroom detached house located within the sought after and historic village of THORPE LE SOKEN with...

Sodbury House, Nightingale Way, Clacton-on-Sea

8 Bedroom Detached House | £700,000

Sodbury House is a substantial period building built in 1891 and occupying grounds of approx. third of an acre. The prop...

Woodlands Farm, Rectory Road, Weeley Heath, Clacton-on-Sea

5 Bedroom Detached House | Guide Price £950,000

Situated on approximately 3 acres this imposing FIVE BEDROOM DETACHED HOUSE benefits from FOUR RECEPTION ROOMS detached...

Mike Vincent & Son (Clacton on Sea)

Clacton on Sea, Essex, CO15 1SD

01255220232

How much is your home worth?

Use our short form to request a valuation of your property.

Request a Valuation

Mortgage Calculator

Amount Borrowed: £
Total Amount Repayable: £
Total Monthly Payment: £
©2025 The Guild of Property Professionals. All rights reserved. Terms and Conditions | Privacy Policy | Cookie Policy | Complaints Policy | Members Login
The Guild of Property Professionals Trading Address: 121 Park Lane, London W1K 7AG. GPEA Limited. Registered in England & Wales.  Company No: 02819824.  Registered Office Address: 2 St. Stephen's Court, St. Stephen's Road, Bournemouth, Dorset, England, BH2 6LA.  VAT Registration No: 576 8795 61
Book a Property Valuation Update Cookies Preferences