Feering Road Coggeshall

Asking Price
£875,000

4 Bedroom Detached House for sale in Colchester

2 4 2
  • Brand New Family Home
  • Completion Mid /Late 2025
  • Four Bedrooms
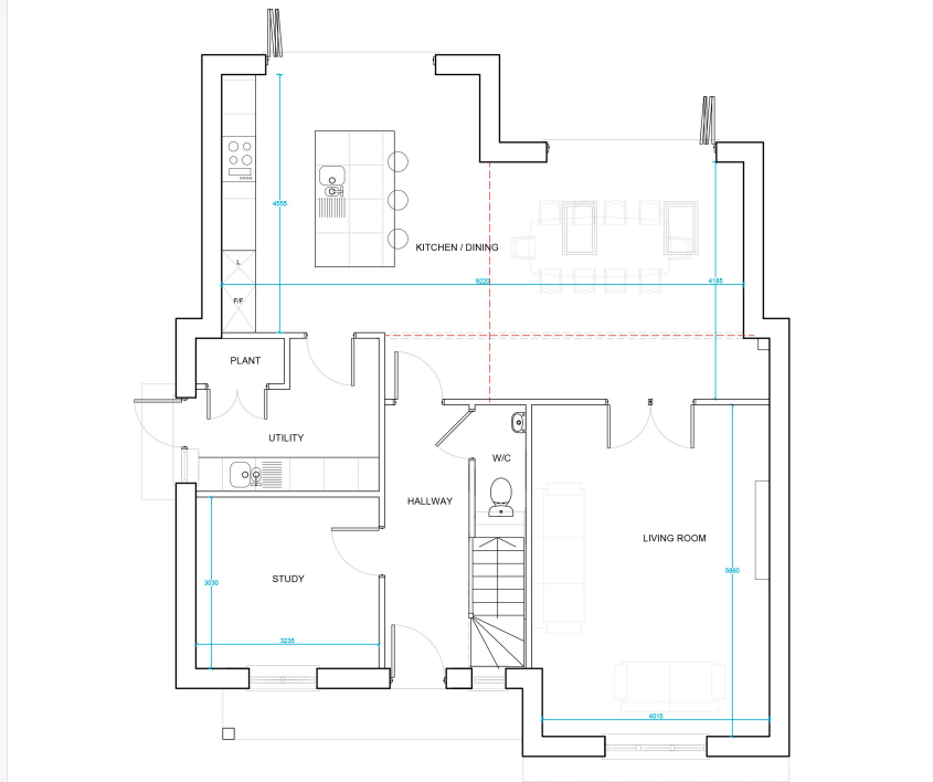
  • Reception Hall
  • Study and Utility
  • Sitting Room
  • Kitchen Living Room
  • Generous Plot

Currently under construction - This is a unique opportunity to purchase this brand new four bedroom family home located on the fringe of Coggeshall occupying a generous plot and a few minutes’ walk from the village centre.

The property has been well-designed with a centrally positioned entrance hall affording views from front to back that opens to a kitchen / living room occupying the entire width of the property. There is a study at the front of the property and a utility room with door to the side. There is also a generous sitting room with double doors leading into the kitchen living room.

To the first floor there are four ample bedrooms all accessed from a landing as well as a generous family bathroom with room for a bath and double shower cubicle. The master bedroom has pleasant views over the rear garden and an en-suite shower room.

Externally there is a parking area to the front and access to the rear garden. The rear garden is very established and benefits from many mature hedgerows and trees with a pleasant Westerly aspect.

Important Information

  • This is a Freehold property.
  • The review period for the ground rent on this property is every 1 year

Property Ref: COG_COG220102

Share:

Similar Properties

The Street Feering

6 Bedroom Detached House | Asking Price £875,000

CHAIN FREE - Prominent Six bedroom detached house overlooking the village green in Feering. This fantastic property offe...

East Street Coggeshall

5 Bedroom Terraced House | Asking Price £865,000

A handsome double-fronted 18th-century home in the heart of Coggeshall, offering 2,900 sq ft of elegant living space wit...

Hedingham Road Blackmore End

4 Bedroom Detached House | Asking Price £850,000

A beautiful family home set at the heart of a mature plot of approximately 0.75 acres, surrounded by open countryside. T...

Feering Hill Feering

4 Bedroom House | Guide Price £900,000

St Andrews is one of the most prominent and attractive period properties in Feering. It stands on a well-maintained and...

Nunns Close Coggeshall

5 Bedroom Detached House | Asking Price £900,000

A individually designed, five-bedroom house situated in a small cul-de-sac within the heart of Coggeshall.

East Street Coggeshall

4 Bedroom Link Detached House | Asking Price £900,000

NO ONWARD CHAIN A stunning 15th-century home in the heart of Coggeshall, offering spacious, character-filled living with...

Heritage Estate Agents (Coggeshall)

Manchester House, Church Street, Coggeshall, Essex, CO6 1TU

01376 566890

How much is your home worth?

Use our short form to request a valuation of your property.

Request a Valuation

Mortgage Calculator

Amount Borrowed: £
Total Amount Repayable: £
Total Monthly Payment: £
©2025 The Guild of Property Professionals. All rights reserved. Terms and Conditions | Privacy Policy | Cookie Policy | Complaints Policy | Members Login
The Guild of Property Professionals Trading Address: 121 Park Lane, London W1K 7AG. GPEA Limited. Registered in England & Wales.  Company No: 02819824.  Registered Office Address: 2 St. Stephen's Court, St. Stephen's Road, Bournemouth, Dorset, England, BH2 6LA.  VAT Registration No: 576 8795 61
Book a Property Valuation Update Cookies Preferences