Renaissance Way, Crewe

Offers Over
£375,000

3 Bedroom Detached House for sale in Crewe

3
  • Detached family home
  • Cul-De-Sac Setting
  • Three / Four Bedrooms
  • Ensuite Bathroom
  • Driveway
  • Garden
  • Viewings Highly Recommended

Nestled within a highly desirable development, this beautifully presented and substantially extended detached family home offers flexible living across three or four bedrooms. Impeccably maintained, it effortlessly combines spacious, contemporary interiors with charming curb appeal, making it the ideal setting for family life.

Step inside to discover generously proportioned rooms flooded with natural light. A welcoming hallway leads to a spacious living area and a versatile additional room, perfect as a guest bedroom, home office, or playroom, depending on your requirements. The open-plan aspect creates an inviting space for relaxing with family or entertaining friends. The modern kitchen features high-quality fittings and ample storage, designed for those who enjoy both everyday meals and special occasions. Upstairs, comfortable bedrooms provide sanctuary and privacy, complemented by stylish bathrooms and plenty of storage throughout.

Conveniently located, residents enjoy easy access to excellent local amenities. A selection of well-regarded schools, lovely parks, and popular high street shops are just moments away. Superb transport links, including nearby railway connections and major roadways, ensure commuting is seamless and stress-free. At the weekends, a variety of leisure options and picturesque green spaces are right on your doorstep, perfect for family outings and morning jogs.

Don't miss the chance to make this impressive house your home. Arrange your viewing today and experience all it has to offer for yourself.

Council Tax Band: D (Cheshire East)
Tenure: Freehold
Parking options: Driveway
Garden details: Rear Garden
Electricity supply: Mains
Heating: Gas Mains
Water supply: Mains
Sewerage: Mains
Broadband: FTTC


Access
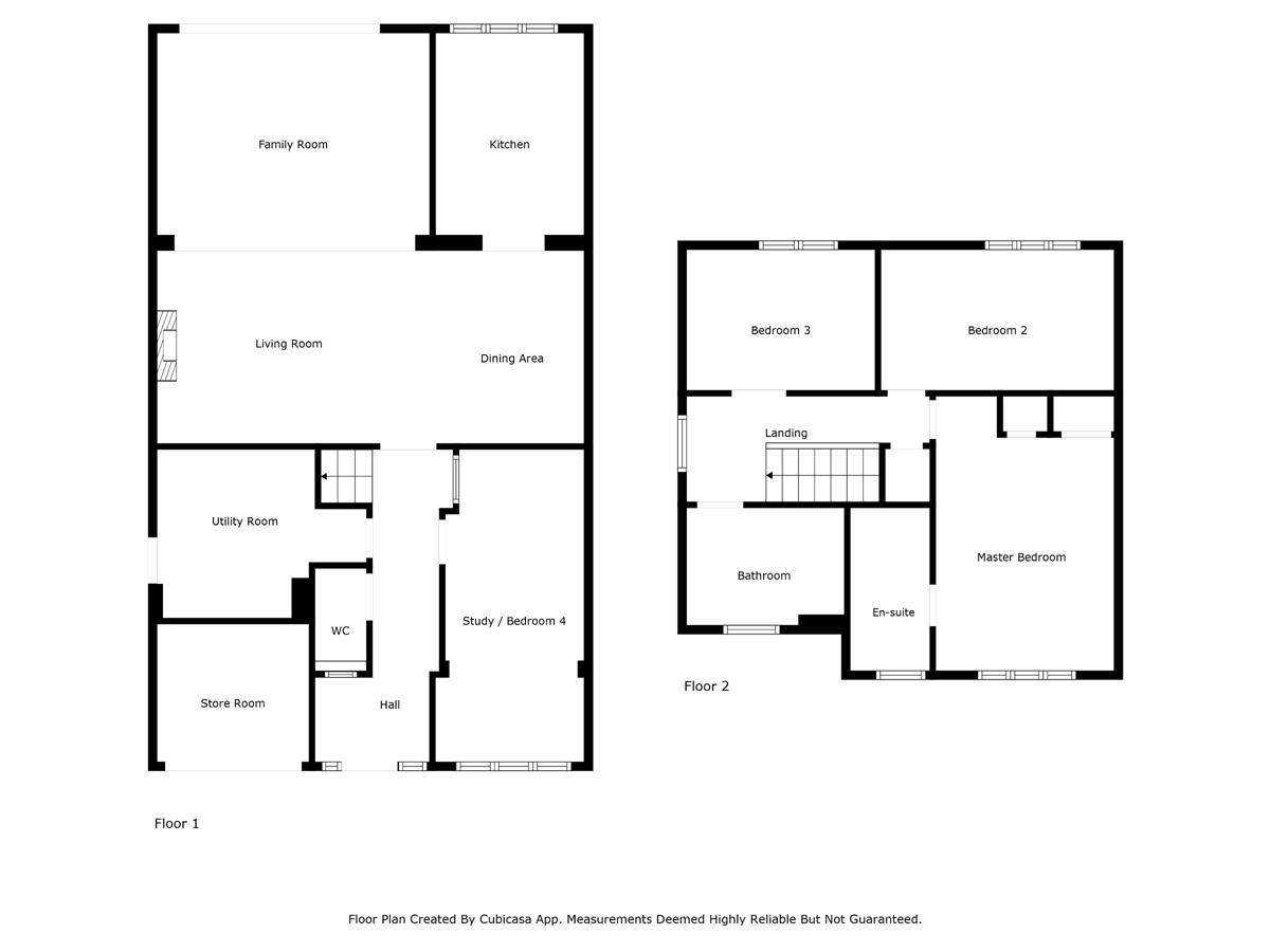
Approached over a decorative concrete imprinted driveway leading to the decorative double glazed panelled composite entrance door giving access to the reception hall.

Reception Hall w: 2m x l: 5.47m (w: 6' 7" x l: 17' 11")
Having two double glazed panelled frosted windows to the front elevation, double panelled radiator, oak flooring, oak panelled doors leading to all further rooms, stairs rising to the first floor.

Cloakroom w: 0.9m x l: 1.81m (w: 2' 11" x l: 5' 11")
Having a two piece suite comprising of a low level WC and a vanity unit wash hand basin with mixer tap and storage cupboard below, heated towel rail finished in chrome, oak flooring, complimentary wall tiling, uPvc double glazed frosted panelled window to the front elevation.

Office / Bedroom 4 w: 2.6m x l: 5.47m (w: 8' 6" x l: 17' 11")
Versatile and spacious room currently set up as a home office having a uPvc double glazed panelled window to the front elevation, laminate flooring, double panelled radiator, inset spot lighting, decorative single glazed arched window looking back into the reception hall.

Utility w: 3.67m x l: 2.95m (w: 12' x l: 9' 8")
Really spacious utility room having a uPvc double glazed frosted panelled door leading out to the side of the property, laminate flooring, fitted with a range of wall and base units with work surfaces over, wall mounted central heating boiler, space for washer, space for dryer.

Living / Dining w: 7.47m x l: 6.92m (w: 24' 6" x l: 22' 8")
A great open plan space for dining, relaxing, or enjoying the views of the garden having laminate flooring throughout, feature marble fire surround housing a living flame gas fire with chrome surround, ample space for dining table and chairs, to the lounge area there are double glazed bi-fold doors leading to the rear, wall mounted vertical radiator, electrically operated double glazed panelled roof lights to the rear, and glazed panelled double doors leading into the kitchen, inset spot lighting throughout.

Kitchen w: 2.6m x l: 3.53m (w: 8' 6" x l: 11' 7")
Modern and light filled kitchen, having a uPvc double glazed panelled window to the rear elevation, inset spotlighting, two electrically operated double glazed panelled roof lights. The kitchen is fitted with a range of wall, base and drawer units with quartz work surfaces over incorporating a single drainer resin sink unit with mixer tap, space for American style fridge freezer, built in range cooker with wok burner and hot plate, central island with quartz work surfaces over and storage cupboards below, integrated dish washer.

FIRST FLOOR:


Landing w: 4.25m x l: 1.85m (w: 13' 11" x l: 6' 1")
Galleried landing having a double panelled radiator, uPvc double glazed frosted panelled window to the side elevation, loft access point leading to the boarded loft with drop down ladder, built in airing cupboard, doors to all further rooms.

Master bedroom w: 3.12m x l: 4.81m (w: 10' 3" x l: 15' 9")
Spacious double room with uPvc double glazed panelled window to the front elevation, double panelled radiator, built in wardrobes, door leading into the en-suite.

En-suite w: 1.39m x l: 2.86m (w: 4' 7" x l: 9' 5")
Good sized en-suite shower room with a uPvc double glazed frosted panelled window to the front elevation, heated towel rail finished in chrome, tiled flooring, three piece suite comprising of a low level WC, pedestal wash hand basin with mixer tap and wall mounted shaver socket over, walk in shower enclosure housing a mixer shower, complimentary wall tiling, inset spot lighting.

Bedroom 2 w: 4.07m x l: 2.47m (w: 13' 4" x l: 8' 1")
A further double room with uPvc double glazed panelled window to the rear elevation, double panelled radiator.

Bedroom 3 w: 3.29m x l: 2.47m (w: 10' 10" x l: 8' 1")
A further double room with a uPvc double glazed panelled window to the rear elevation, double panelled radiator.


Bathroom w: 2.96m x l: 2.06m (w: 9' 9" x l: 6' 9")
Well appointed family bathroom having a uPvc double glazed frosted panelled window to the front elevation, fitted with a three piece suite comprising of a push button low level WC with concealed cistern, vanity unit wash hand basin with mixer tap and storage cupboards below, panelled bath with mixer tap / shower attachment over, complimentary tiling to the walls, wall mounted shaver socket, inset spot lighting, double panelled radiator / towel rail.

Externally
To the rear of the property there is a enclosed garden with fenced boundaries all round, mainly laid to lawn with borders housing a variety of shrubs and plants, Indian stone paved patio area providing ample space for garden furniture, outside tap, outside power points, outside lighting, to the rear of the garden there is a stone paved patio again, allowing ample space for garden furniture, access path to both sides of the property leading to the front.

To the front of the property there is a double width decorative concrete imprinted driveway providing off road parking, outside lighting, the garage has been split and now provides a storage room with an electrically operated roller door to the front.

Energy Performance
The Current rating is 69 with a potential of 75

Viewings
Viewings are strictly by appointment only, please call or email the office. Thank you.

Looking to sell?
If you are thinking of selling please call or email the office to arrange a free market appraisal. Thank you.

Important Information

  • This is a Freehold property.

Property Ref: 632445_RS0672

Share:

Similar Properties

Old Willow Barns, Congleton Road, Sandbach

3 Bedroom Semi-Detached House | £375,000

Stunning 3 double bedroomed barn conversion with views over the rolling Cheshire countryside. Seamlessly combining rusti...

Swallowfield Close, Wistaston, Crewe

4 Bedroom Detached House | £350,000

A beautifully presented four double bedroom detached family home situated in a popular and sought after residential loca...

Thorneycroft Way, Crewe

4 Bedroom Detached House | £350,000

A beautiful four double bedroom detached family home situated in a popular residential location.

Main Road, Shavington, Crewe

3 Bedroom Cottage | Offers in region of £400,000

WE ARE DELIGHTED TO HAVE BEEN INSTRUCTED TO OFFER FOR SALE A PIECE OF SHAVINGTON HISTORY. One of a row of three cottages...

Ringlet Place, Sandbach

4 Bedroom Detached House | Offers in region of £400,000

QUITE SIMPLY STUNNING! 4 bedroom detached family home on the highly sought after J17 estate within walking distance to t...

Roman Way, Sandbach

3 Bedroom Detached House | Offers in region of £400,000

A spacious detached family home, situated in a popular residential location within easy reach of all local amenities. Th...

Wheatcroft & Lloyd (Sandbach)

Sandbach, Cheshire, CW11 1AL

01270 382283

How much is your home worth?

Use our short form to request a valuation of your property.

Request a Valuation

Mortgage Calculator

Amount Borrowed: £
Total Amount Repayable: £
Total Monthly Payment: £
©2025 The Guild of Property Professionals. All rights reserved. Terms and Conditions | Privacy Policy | Cookie Policy | Complaints Policy | Members Login
The Guild of Property Professionals Trading Address: 121 Park Lane, London W1K 7AG. GPEA Limited. Registered in England & Wales.  Company No: 02819824.  Registered Office Address: 2 St. Stephen's Court, St. Stephen's Road, Bournemouth, Dorset, England, BH2 6LA.  VAT Registration No: 576 8795 61
Book a Property Valuation Update Cookies Preferences