Ringlet Place, Sandbach

Offers in region of
£400,000
SSTC
This property listing is now SSTC

4 Bedroom Detached House for sale in Sandbach

4
  • Beautifully presented detached family home
  • Counrtyside views
  • Four bedrooms
  • En-Suite To Master
  • 2 Reception rooms
  • Dining kitchen
  • Cloakroom
  • Detached garage
  • Double driveway
  • Enclosed rear garden

We are proud to offer for sale this stunning 4 bedroom, detached family home on the sought after J17 estate. As you walk through the door you are enveloped in an aura of calm and the most wonderful fragrance, both of which set the scene to promote the well thought out, beautifully presented accommodation which quite honestly will delight!

In brief the property comprises, 4 generous bedrooms, en-suite to Master bedroom, family bathroom, cloakroom, spacious dining kitchen with integrated appliances, generous sitting room, formal dining room, enclosed, low maintenance rear garden with ample space for outside entertaining. Double driveway and detached garage.

Sitting toward the top of a quiet cul-de-sac and overlooking a woodland pathway the property is within walking distance to the historic Sandbach town centre and benefits from excellent commuter links.

This property will be quick to sell so please book a priority viewing today.

Council Tax Band: E (Cheshire East)
Tenure: Freehold
Parking options: Driveway, Garage
Garden details: Enclosed Garden, Front Garden, Rear Garden
Electricity supply: Mains
Water supply: Mains
Sewerage: Mains


Access
Sitting behind a low Laurel hedge with dividing pathway the property is approached over the paved pathway which leads to the part modesty glazed, composite front door under storm porch which opens into:

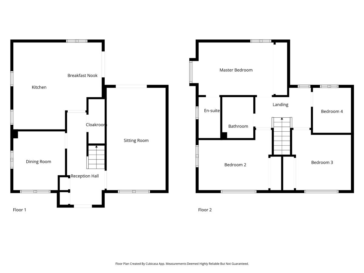
Reception Hall
Light, spacious and calm entrance hall with stairs rising to the first floor landing, ceramic tiled flooring, radiator, wired smoke alarm and doors off to sitting room, dining room, dining kitchen and cloakroom. Door to meter cupboard and door to storage cupboard. Inset spotlighting.

Sitting Room
Generous sitting room, dual aspect with uPvc French doors leading to the rear garden, uPvc double glazed, Georgian bar window to front elevation. Radiator.

Dining room w: 2.83m x l: 3.23m (w: 9' 3" x l: 10' 7")
Versatile reception room currently the formal dining room but equally suitable as a playroom or study. Dual aspect having uPvc double glazed, Georgian bar windows to front and side elevations. Ceramic tiled flooring continued through from the reception hall and radiator.

Cloakroom
Fitted with a 2 piece suite comprising low level, push button W.C., pedestal wash hand basin with mixer tap over and tiled splashback. Extractor fan and radiator. Inset spotlighting.

Dining kitchen w: 4.83m x l: 4.77m (w: 15' 10" x l: 15' 8")
STUNNING! Generous fitted kitchen with matching central island with storage cupboards and breakfast bar. Fitted with a range of high gloss, soft close, white wall base and drawer units under granite worksurface incorporating a one and a half bowl sink with mixer tap and grooved drainer. Granite upstand. Integrated fridge/freezer, integrated dishwasher, integrated washing machine, integrated eye level microwave and electric oven, induction hob with pan drawers below and extractor over and glazed splashback. Inset spotlighting. Ceramic tiled flooring continued through from the reception hall. Radiator. uPvc double glazed, Georgian bar windows to side elevation and uPvc double glazed French doors to rear garden. Wall mounted central heating boiler in matching cupboard.

Landing
First floor landing with loft access, radiator and uPvc double glazed, Georgian bar window to rear elevation. Doors off to all bedrooms and family bathroom.

Master bedroom w: 2.89m x l: 4.11m (w: 9' 6" x l: 13' 6")
Spacious double room fitted with a wall of mirrored, sliding door wardrobes with hanging rails and shelving, uPvc double glazed windows to side and rear elevations, radiator and door into:

En-suite
Fitted with a 3 piece suite comprising walk in shower cubicle with glazed screen, low level, push button W.C., pedestal wash hand basin with waterfall mixer tap, inset spotlighting, radiator, shaver point, extractor fan and part tiled walls. Modesty glazed Georgian bar window to side elevation.

Bedroom 2 w: 3.31m x l: 4.01m (w: 10' 10" x l: 13' 2")
Large double room dual aspect with uPvc Georgian bar windows to front and side elevation, fitted wardrobes with hanging rails and shelving, radiator.

Bedroom 3 w: 3.23m x l: 3.31m (w: 10' 7" x l: 10' 10")
Another large double room with built in wardrobe with hanging rails and shelving. uPvc double glazed Georgian bar windows to front elelvation. Radiator.

Bedroom 4 w: 2.09m x l: 2.48m (w: 6' 10" x l: 8' 2")
Single room, currently used as a Dressing room, could be used for a Nursery or home office. uPvc Georgian Bar window to rear elevation. Radiator.

Bathroom
Fitted with a three piece suite comprising panelled bath with mixer tap, shower over and glazed, pivot screen, low level, push button W.C., pedestal wash hand basin with waterfall mixer tap over, tiled walls, inset spotlighting, radiator, extractor fan.

Externally
The front of the property sits behind a low Laurel hedge and overlooks a woodland pathway. The garden is laid to lawn. To the rear the garden is fenced and walled on all boundaries creating a peaceful open space. The garden is laid to artificial lawn with Indian stone patio and raised decked area providing ample room for outside entertaining. Borders are well stocked with mature shrubs and trees. Outside tap. A wooden gate gives access to the double driveway and detached garage.

Energy Performance
The current rating is 84 with a potential of 94.

About Sandbach
Sandbach is a market town. The Charter Market takes place every Thursday, with regular Saturday markets and specialist markets taking place in the Town throughout the year. Sandbach is home to a fantastic array of independent stores offering a wide variety of products, with caf?s, restaurants and hostelries providing a tempting and diverse selection of food and drink for daytime and evening visitors to the Town. Whether visiting the award winning parks and play areas, the ancient Saxon Crosses, shopping or watching the world go by from a local venue. Keep an eye out for the wonderful Town Crier often in the Town Centre. A host of excellent schools with Sandbach School having a strong local and national reputation for excellence. One of the top performing schools in Cheshire East. With excellent commuter links, prominent walking routes and a thriving town centre Sandbach is a perfect place to live.

Viewings
Viewings are strictly by appointment only. Please call or email the office to arrange. Thank you.

Looking to sell?
If you are thinking of selling please call or email the office to arrange a free Market Appraisal. Thank you.

Important Information

  • This is a Freehold property.

Property Ref: 632445_RS0678

Share:

Similar Properties

Roman Way, Sandbach

3 Bedroom Detached House | Offers in region of £400,000

A spacious detached family home, situated in a popular residential location within easy reach of all local amenities. Th...

Main Road, Shavington, Crewe

3 Bedroom Cottage | Offers in region of £400,000

WE ARE DELIGHTED TO HAVE BEEN INSTRUCTED TO OFFER FOR SALE A PIECE OF SHAVINGTON HISTORY. One of a row of three cottages...

Renaissance Way, Crewe

3 Bedroom Detached House | Offers Over £375,000

A beautifully presented three / four bedroom detached family home situated in a sought after location.

Lyncroft Close, Crewe

4 Bedroom Detached House | £425,000

Stunning, 4 bedroom, detached family home situated in a peaceful and sought after residential location with large privat...

Aldford Close, Crewe

4 Bedroom Detached House | Offers in region of £425,000

Introducing this exceptional property: a spacious 4 bed detached house with a double garage located in a semi-rural sett...

Main Road, Shavington, Crewe

4 Bedroom Cottage | Offers in region of £425,000

WE ARE DELIGHTED TO HAVE BEEN INSTRUCTED TO OFFER FOR SALE A PIECE OF SHAVINGTON HISTORY. One of a row of three cottages...

Wheatcroft & Lloyd (Sandbach)

Sandbach, Cheshire, CW11 1AL

01270 382283

How much is your home worth?

Use our short form to request a valuation of your property.

Request a Valuation

Mortgage Calculator

Amount Borrowed: £
Total Amount Repayable: £
Total Monthly Payment: £
©2025 The Guild of Property Professionals. All rights reserved. Terms and Conditions | Privacy Policy | Cookie Policy | Complaints Policy | Members Login
The Guild of Property Professionals Trading Address: 121 Park Lane, London W1K 7AG. GPEA Limited. Registered in England & Wales.  Company No: 02819824.  Registered Office Address: 2 St. Stephen's Court, St. Stephen's Road, Bournemouth, Dorset, England, BH2 6LA.  VAT Registration No: 576 8795 61
Book a Property Valuation Update Cookies Preferences