Clare Court, Thaxted, Dunmow

Offers Over
£400,000
SSTC
This property listing is now SSTC

4 Bedroom Detached House for sale in Dunmow

2 4 2
  • Four Bedrooms
  • Detached Family Home
  • Single Garage With Driveway Parking
  • Front & Rear Gardens
  • Quiet Cul-De Sac Location
  • Walking Distance To Local Amenities
  • Two Receptions & Study
  • Kitchen/Breakfast Room
  • En-Suite & Family Bathroom
  • No Onward Chain

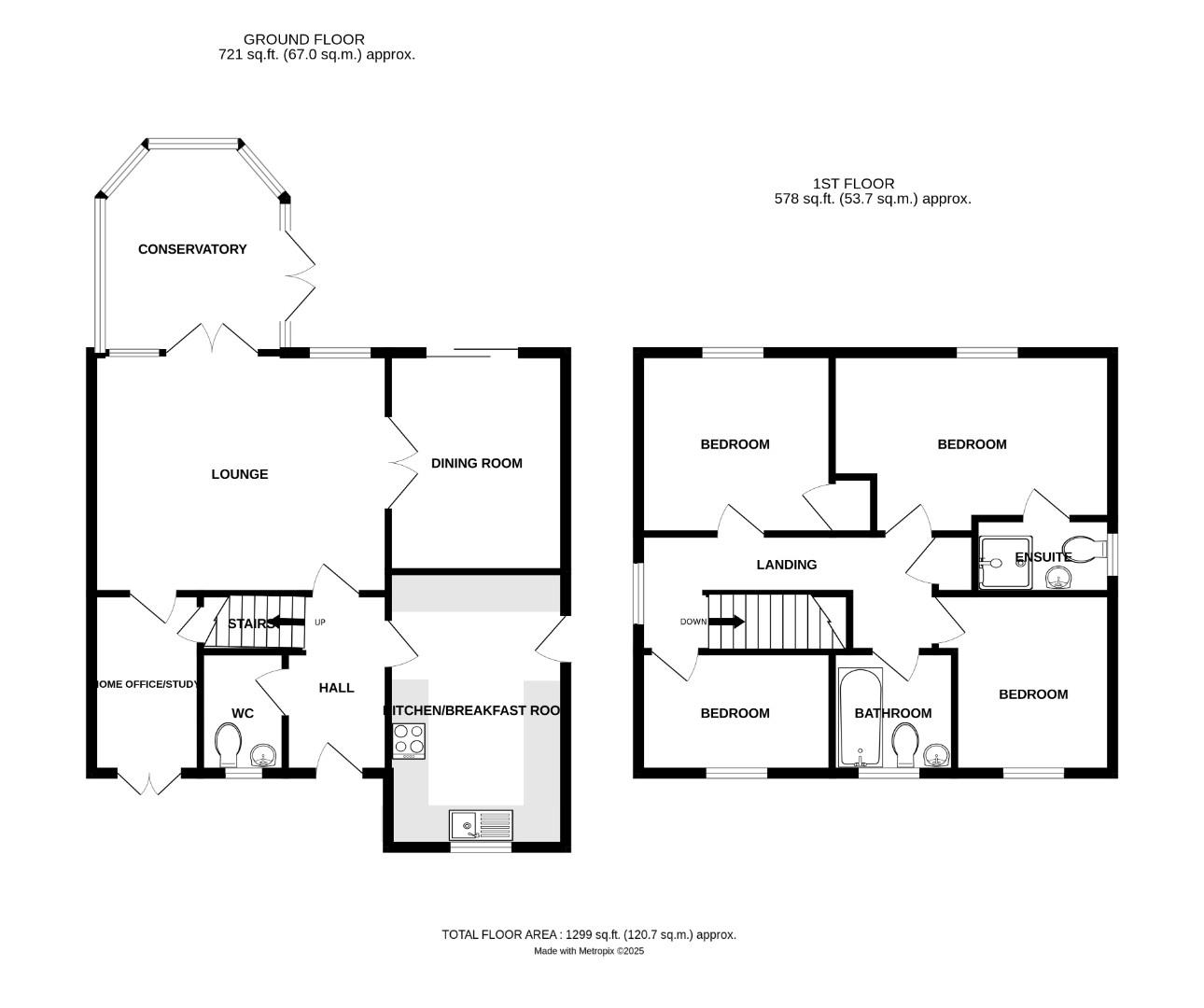
***No Onward Chain*** Located in a quiet cul-de-sac in the historic market town of Thaxted is this substantial four bedroom detached family home in need of modernisation. The ground floor accommodation comprises:- lounge, dining room, kitchen/breakfast room, home office/study, conservatory, cloakroom and entrance hall. On the first floor are four bedrooms with en-suite facilities to the principal bedroom and a family bathroom. Externally the property boasts front & rear gardens, a single garage and driveway parking.

Entrance Hall - Accessed via front door, radiator, wood effect flooring, radiator, power points, stairs rising to the first floor landing, doors to.

Cloakroom - UPVC double glazed opaque window to front aspect, W.C, radiator, wood effect flooring.

Kitchen/Breakfast Room - 4.49 x 2.76 (14'8" x 9'0") - UPVC double glazed window to front aspect, base and eye level units with working surface over, inset 1 1/2 bowl sink with drainer unit & filter tap, space for freestanding cooker, space for fridge/freezer, tiled flooring, power points, part tiled walls, single door to side aspect.

Lounge - 4.94 x 3.84 (16'2" x 12'7") - UPVC double glazed window to rear aspect, feature fireplace, radiator, power points, T.V point, French doors to conservatory, door to study, opening to.

Dining Room - 3.76 x 2.47 (12'4" x 8'1") - Sliding doors to the rear garden, radiator, power points.

Study - 3.11 x 1.78 (10'2" x 5'10") - UPVC double glazed French doors leading to a front courtyard, radiator, power points, understairs storage cupboard.

Conservatory - 3.38 x 3.02 (11'1" x 9'10") - Windows to multiple aspects, French doors leading to the rear garden.

First Floor Landing - UPVC double glazed window to side aspect, power points, doors to.

Principal Bedroom - 4.47 x 3.01 (14'7" x 9'10") - UPVC double glazed window to rear aspect, radiator, power points, door to.

En-Suite - UPVC double glazed opaque window to side aspect, enclosed shower cubicle with glass enclosure, wash hand basin with vanity unit below, W.C, heated towel rail, part tiled walls, tiled flooring, inset spotlights.

Bedroom Two - 3.1 x 3.19 (10'2" x 10'5") - UPVC double glazed window to rear aspect, radiator, power points, built-in wardrobe.

Bedroom Three - 2.96 x 2.4 - UPVC double glazed window to front aspect, radiator, power points.

Bedroom Four - 2.97 x 1.97 (9'8" x 6'5") - UPVC double glazed window to front aspect, radiator, power points.

Bathroom - UPVC double glazed opaque window to front aspect, enclosed bath with mixer taps & shower attachment, W.C, wash hand basin with pedestal, radiator, part tiled walls, tiled flooring, inset spotlights, extractor fan.

Front & Rear Gardens - To the rear of the property is a patio area leading to lawn with a variety of mature trees & shrubs. Side access is granted via a timber gate. To the front of the property is an enclosed courtyard garden. The remainder of the frontage is well stocked with plants and a paved pathway provides access to the front door & storm porch.

Single Garage With Driveway Parking - To the side of the property is a detached single garage with up & over door, power, lighting, pitched roof for storage and single door to side aspect. to the front of the garage is driveway parking.

Town Summary - The Medieval market town of Thaxted is steeped in history and retains an abundance of character to this day. The town boasts three public houses, various restaurants, a bakery, petrol station and various independent shops. Some of the beautiful landmarks Thaxted has to offer include the stunning Guild Hall, Thaxted Parish Church, and John Webbs Windmill. Thaxted is approximately seven miles from the popular town of Saffron Walden and approximately six miles from the bustling market town of Great Dunmow.

Property Ref: 34246526

Share:

Similar Properties

Almond Road, Dunmow

3 Bedroom End of Terrace House | Offers Over £400,000

Located on the award winning "Woodlands Park" development is this spacious three double bedroom end of terrace town hous...

Rayfield Close, Barnston, DUNMOW

3 Bedroom Semi-Detached House | Offers Over £400,000

Located at the end of a quiet close is this immaculate three bedroom semi-detached family home boasting a modern open pl...

The Downs, Stebbing, Dunmow, Essex

4 Bedroom Semi-Detached House | £400,000

***No Onward Chain***Located on a quiet close in the heart of the highly sought-after village of Stebbing, this well-pro...

Ainsworth Drive, Felsted, Dunmow, Essex

3 Bedroom Detached House | Offers Over £415,000

We are pleased to offer this well presented three bedroom detached family home situated on a quiet development on the ou...

Blackwater Drive, Dunmow, Essex

3 Bedroom Semi-Detached House | Offers Over £415,000

Nestled on the border of Dunmow in Blackwater Drive, this delightful semi-detached house offers a perfect blend of comfo...

Deer Park View, Great Bardfield, Braintree, Essex

3 Bedroom Semi-Detached House | Offers Over £425,000

Located on a desirable small development in the highly sought after village 'Great Bardfield' is this spacious three bed...

Daniel Brewer Estate Agents (Great Dunmow)

51 High Street, Great Dunmow, Essex, CM6 1AE

01371 856 585

How much is your home worth?

Use our short form to request a valuation of your property.

Request a Valuation

Mortgage Calculator

Amount Borrowed: £
Total Amount Repayable: £
Total Monthly Payment: £
©2026 The Guild of Property Professionals. All rights reserved. Terms and Conditions | Privacy Policy | Cookie Policy | Complaints Policy | Members Login
The Guild of Property Professionals Trading Address: 121 Park Lane, London W1K 7AG. GPEA Limited. Registered in England & Wales.  Company No: 02819824.  Registered Office Address: 2 St. Stephen's Court, St. Stephen's Road, Bournemouth, Dorset, England, BH2 6LA.  VAT Registration No: 576 8795 61
Book a Property Valuation Update Cookies Preferences