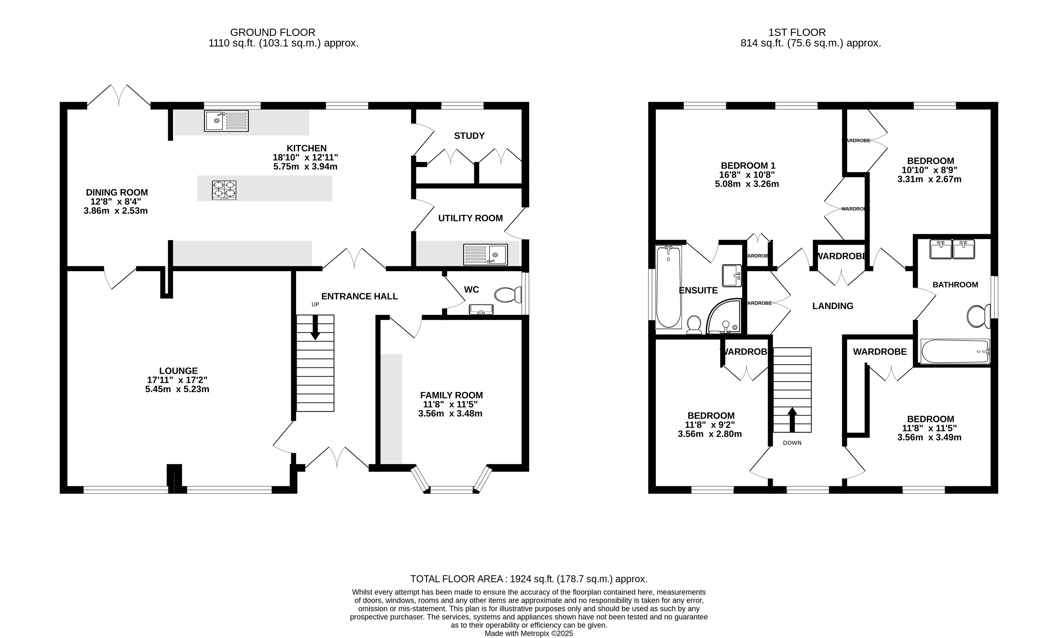
Set on the desirable Gills Hill Lane in Radlett, this beautifully arranged detached family home offers spacious and versatile accommodation across two floors, with a total area of over 1,900 sq ft.
The ground floor features a welcoming entrance hall that provides access to a bright and generously sized lounge at the front of the property, perfect for relaxing or entertaining. The heart of the home is an expansive kitchen with an adjoining dining area, offering an ideal open-plan space for family gatherings and complemented by a useful utility room and a separate study, providing a quiet space to work from home. 
A family room with a charming bay window and a convenient downstairs WC complete the layout on this level.
Upstairs, the first floor boasts four well-proportioned bedrooms. The principal bedroom benefits from built-in storage and a modern ensuite shower room. There is a spacious family bathroom serving the additional three bedrooms, two of which also feature built-in cupboards. The layout maximizes both comfort and functionality, making it ideal for family living.
The propertys thoughtful design includes multiple living spaces, ample storage and good-sized bedrooms, all situated on a sought-after residential lane within easy reach of Radletts amenities, transport links and excellent local schools.
Important Information
Property Ref: 603603_LUM240106
The Close, Radlett, Hertfordshire, WD7
3 Bedroom Detached House | Guide Price £1,300,000
Tucked away in the peaceful cul-de-sac of The Close in the sought-after village of Radlett, this impressive and spacious...
Middle Down, Aldenham, Watford, Hertfordshire, WD25
4 Bedroom House | £1,275,000
This magnificent four double bedroom family home forms part of the award winning Wall Hall development, located in the r...
5 Bedroom Detached House | £1,250,000
Set in the sought-after location of Mill Hill, this impressive five-bedroom detached family home, built circa 10 years a...
Stables End, Aldenham, Watford, Hertfordshire, WD25
6 Bedroom Detached House | £1,400,000
Nestled within the highly sought-after village of Aldenham, this impressive six-bedroom detached residence is situated o...
Hale Grove Gardens, London, NW7
5 Bedroom House | Offers in excess of £1,420,000
This exquisite 5-bedroom family residence has recently undergone a complete renovation to the highest standards.
Florida Close, Bushey Heath, Bushey, Hertfordshire, WD23
5 Bedroom Detached House | £1,450,000
Lumley Estates are proud to present this stunning five bedroom detached home located in the ever-desirable location of B...
 
                            Lumley Estates (Radlett)
72 Watling Street, Radlett, Hertfordshire, WD7 7NP
Use our short form to request a valuation of your property.
Request a Valuation