Tuddenham Avenue, Ipswich

Guide Price
£275,000
SSTC
This property listing is now SSTC

3 Bedroom Semi-Detached House for sale in Ipswich

3 1
  • DESIRABLE NORTH EAST & ASSOCIATED SCHOOLS
  • UPPER TUDDENHAM AVENUE
  • CONVENIENT TO PARK, TOWN CENTRE & WATERFRONT
  • SEMI-DETACHED HOUSE
  • THREE BEDROOMS
  • ENTRANCE HALL
  • SITTING & DINING ROOM
  • FIRST FLOOR BATHROOM
  • PARKING, EXTENDED GARAGE AND GARDENS
  • CHAIN FREE

SUMMARY CHAIN FREE - A improvable, three bedroom semi-detached family home of good proportions located in the sought after North East of Ipswich, convenient to St Margaret's primary and Northgate secondary schools, the town centre and waterfront. The accommodation comprises; enclosed porch, entrance hall, sitting and dining room, and fitted kitchen on the ground floor with landing, three comfortable bedrooms,family bathroom and separate WC (which could be reconfigured to create an incorporated three/four piece suite), on the first floor. To the outside front there is driveway off-road parking, access to a detached garage and area laid to lawn, whilst to the rear there is an established Westerly facing two tier enclosed garden, mainly laid to mature lawn with patio and shed. Further benefits include predominant double glazing, gas central heating via a modern boiler, and extended garage which could be remodelled to gain additional accommodation (subject to gaining any required permissions). Early viewing is highly recommended. 

FRONT DOOR TO  

ENCLOSED PORCH Door to entrance hall. 

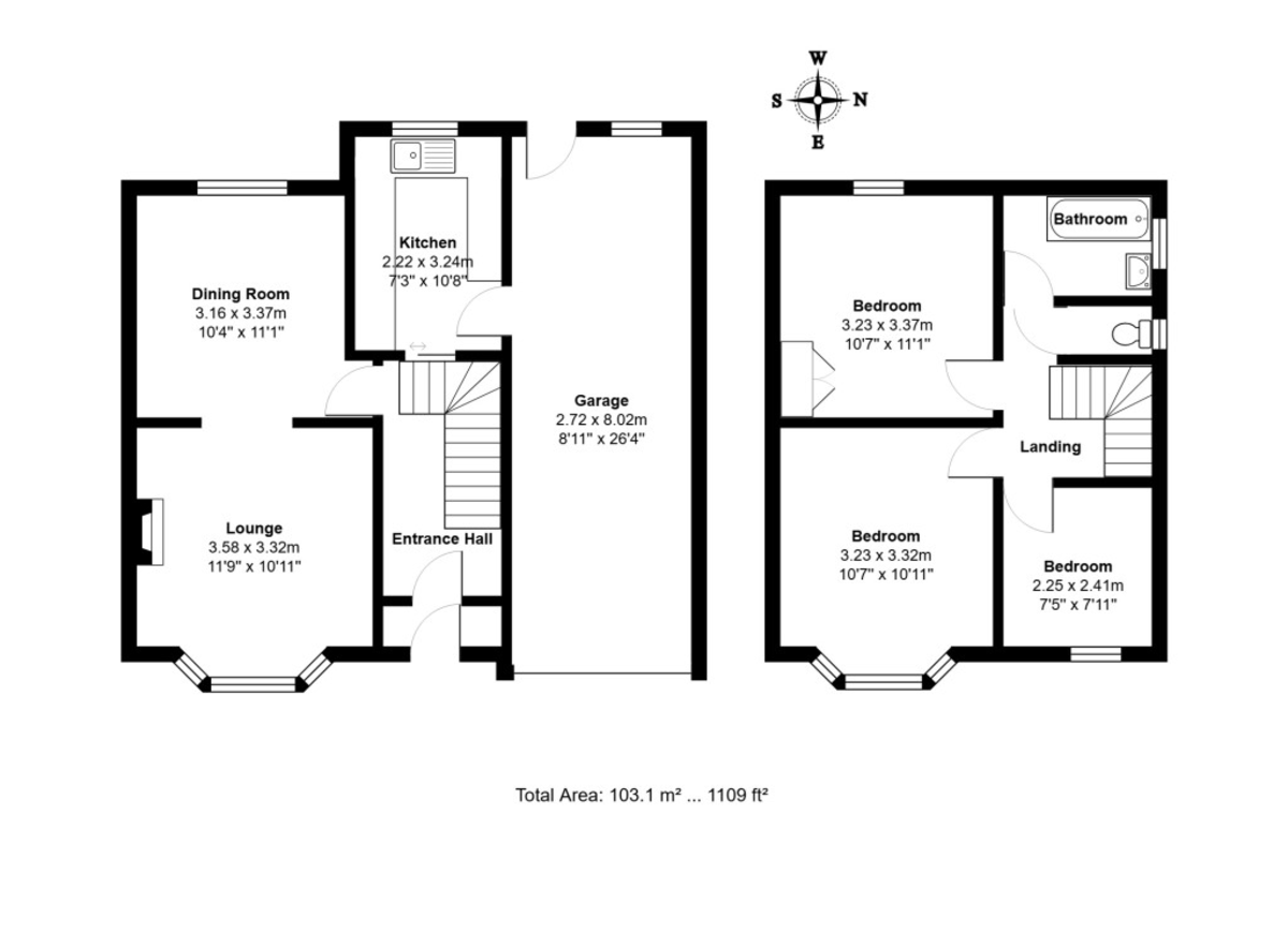
ENTRANCE HALL Radiator, under stairs cupboard, stairs rising to first floor, laminate wood flooring, doors to. 

DINING ROOM 10' 4" x 11' 1" approx. (3.15m x 3.38m) Double glazed window to rear, radiator, sliding doors opening to sitting room. 

SITTING ROOM 11' 9" x 10' 11" approx. (3.58m x 3.33m) Double glazed bay window to front, radiator, television point, Sky broadband. 

KITCHEN 7' 3" x 10' 8" approx. (2.21m x 3.25m) Double glazed bay window to rear, radiator, base and eye level fitted cupboard and drawer units, granite effect work surfaces, inset stainless steel sink drainer unit with mixer tap, tiled splash backs, built-in electric oven and grill, inset electric hob, under counter spaces for fridge and washing machine, tile effect flooring, side door to garage. 

STAIRS RISING TO FIRST FLOOR  

LANDING Double glazed window to side, loft hatch access to loft space housing modern wall mounted gas fired boiler, laminate wood flooring, doors to. 

BEDROOM ONE 10' 7" x 10' 11" approx. (3.23m x 3.33m) Double glazed bay window to front, radiator. 

BEDROOM TWO 10' 7" x 11' 1" approx. (3.23m x 3.38m) Double glazed window to rear, radiator, built-in airing cupboard into alcove housing hot water tank. 

BEDROOM THREE 7' 5" x 7' 11" approx. (2.26m x 2.41m) Double glazed window to front, radiator. 

BATHROOM Obscure double glazed window to side, radiator, panel bath with mixer tap and shower attachment, pedestal hand-wash basin with mixer tap, recess for storage unit, tiled walls and floor. 

SEPERATE WC Obscure double glazed window to side, low level WC, tiled floor. 

OUTSIDE To the outside, the frontage provides driveway off-road parking, access to a detached garage, and an area laid to mature lawn, whilst to the rear there is an established, Westerly facing two tier enclosed garden, mainly laid to mature lawn with patio and wooden shed. In the valuer's opinion, the extended garage could be remodelled to gain additional accommodation (subject to gaining any required permissions). Steps up to retained second level with sunken pond, pathway, external tap. 

EXTENDED GARAGE 8' 11" x 26' 4" approx. (2.72m x 8.03m) Up and over entry door, double glazed window to rear, mains power and lighting, personal door to garden. 

IPSWICH BOROUGH COUNCIL Tax band C - Approximately £2,096.48 PA (2025-2026). 

NEAREST SCHOOLS (.GOV ONLINE) St Margaret's primary and Northgate High secondary. 

DIRECTIONS Leaving Ipswich town centre and heading east on Crown Street/A1156 towards Neale Street, continue to follow A1156, turn left onto Soane Street/B1077, turn left onto Bolton Lane/B1077, slight right onto Tuddenham Road, turn right onto Tuddenham Avenue, the destination will be on the right. 

BROADBAND & MOBILE PHONE COVERAGE Broadband- To check the broadband coverage available in the area go to
https://checker.ofcom.org.uk/en-gb/broadband-coverage

Mobile Phone- To check mobile phone coverage in the area go to
https://checker.ofcom.org.uk/en-gb/mobile-coverage 

STAMP DUTY LAND TAX (SDLT) On all property and land transactions, the buyer needs to be aware that there is potentially a stamp duty land tax amount to pay on their completed purchase.
The link below will take you to the government online calculator to assist you with working out the cost for this tax and if it is applicable to you.

www.tax.service.gov.uk/calculate-stamp-duty-land-tax/!/intro 

DIGITAL MARKETS, COMPETITION AND CONSUMER ACT 2024 (DMCC) Your Ipswich Ltd has not tested any electrical items, appliances, plumbing or heating systems and therefore cannot testify that they are operational. These particulars are set out as a general outline only for the guidance of potential purchasers or tenants and do not constitute an offer or contract. Photographs are not necessarily comprehensive or current and all descriptions, dimensions, references to condition necessary permissions for use and occupation and other details are given in good faith and believed to be correct but should not be relied upon as statements of, or representations of, fact. Intending purchasers or tenants must satisfy themselves by inspection or otherwise as to the correctness of each of them. We have taken steps to comply with the Digital Markets, Competition and Consumer Act 2024 (DMCC), which require both the seller and their agent to disclose anything, within their knowledge, that would affect the buying decision of the average consumer. If there are any aspects of this property that you wish to clarify before arranging an appointment to view or considering an offer to purchase, please contact us and we will make every effort to be of assistance.

Your Ipswich Ltd, as part of their service to both vendor and purchaser, offer assistance to arrange mortgage and insurance policies, legal services, energy performance certificates, and the valuation and sale of any property relating to any purchaser connected to this transaction. Your Ipswich Ltd confirms they will not prefer one purchaser above another solely because he/she has agreed to accept the offer of any other service from Your Ipswich Ltd. Referral commission (where received) is in the range of £60 to £200. 

Property Ref: 58007_100138005071

Share:

Similar Properties

Pinecroft Road, Ipswich

3 Bedroom Semi-Detached House | Offers in excess of £275,000

Your Ipswich are delighted to be offering for sale this 3 bedroom semi-detached property located on the sought after Cro...

Pine View Road, Ipswich, Suffolk

3 Bedroom Semi-Detached House | Guide Price £275,000

CHAIN FREE - A rarely available, much cherished and cared for family home of larger proportions, located to the popular...

Cedarcroft Road, Ipswich

3 Bedroom Semi-Detached House | Guide Price £275,000

CHAIN FREE - A superbly remodelled and thoroughly modernised three bedroom semi-detached family home, favourably positio...

Birchcroft Road, Ipswich

3 Bedroom Semi-Detached House | Offers in excess of £280,000

We are delighted to be offering for sale this 3 bedroom semi-detached property located to the North West of Ipswich on t...

Acton Gardens, Bramford

2 Bedroom Semi-Detached Bungalow | £280,000

A two bedroom semi-detached bungalow in the sought after village of Bramford to the Western outskirts of Ipswich conveni...

Kempton Road, Ipswich

3 Bedroom Semi-Detached House | Guide Price £285,000

CHAIN FREE - A well presented and extended three bedroom semi-detached family home of good proportions, located within a...

Your Ipswich (Ipswich)

125 Dale Hall Lane, Ipswich, Suffolk, IP1 4LS

01473 289333

How much is your home worth?

Use our short form to request a valuation of your property.

Request a Valuation

Mortgage Calculator

Amount Borrowed: £
Total Amount Repayable: £
Total Monthly Payment: £
©2025 The Guild of Property Professionals. All rights reserved. Terms and Conditions | Privacy Policy | Cookie Policy | Complaints Policy | Members Login
The Guild of Property Professionals Trading Address: 121 Park Lane, London W1K 7AG. GPEA Limited. Registered in England & Wales.  Company No: 02819824.  Registered Office Address: 2 St. Stephen's Court, St. Stephen's Road, Bournemouth, Dorset, England, BH2 6LA.  VAT Registration No: 576 8795 61
Book a Property Valuation Update Cookies Preferences