Wike Ridge Avenue, Leeds

£775,000
SSTC
This property listing is now SSTC

5 Bedroom Detached House for sale in Leeds

2 5 3
  • STUNNING 5-BED DETACHED
  • SHOW STOPPING KITCHEN/LIVING/DINER
  • LARGE GLASS SLIDING DOORS TO THE GARDEN
  • MODERN FITTED KITCHEN
  • SPANNING CIRCA 2100 SQFT
  • PRIVATE REAR GARDEN
  • HEART OF ALWOODLEY
  • GREAT LOCAL AMENITIES
  • EPC - C
  • COUNCIL TAX BAND - E

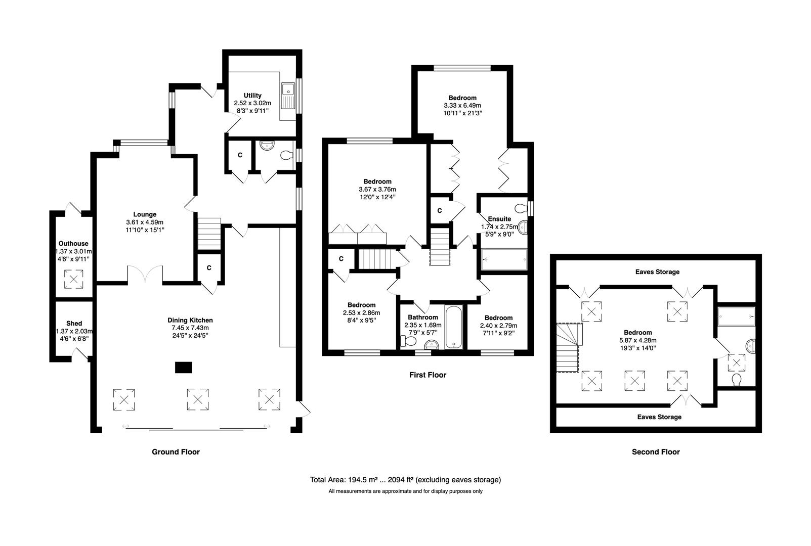
*** STUNNING 5-BED DETACHED HOME IN THE HEART OF ALWOODLEY *** SHOW STOPPING OPEN PLAN KITCHEN/LIVING/DINER *** PRIMARY BEDROOM WITH EN-SUITE *** PRIVATE GARDEN *** CIRCA 2100 SQFT *** Stoneacre Properties are delighted to present to market this exceptionally presented detached property. Offered in a move in ready condition it makes the perfect space for families with 4 double bedrooms two with en-suite, and a fifth single bedroom, a spacious formal lounge, and to the rear a wonderful open plan living space with direct access to the rear garden.

The ground floor of the property benefits from underfloor heating which runs throughout bar in the utility room. Entering the property you are welcomed into the entrance hallway which offers access to the utility room, formal lounge, w/c and cloakroom and leads on to the kitchen/living/diner. To the first floor of the property there are three double bedrooms, a further single bedroom which also makes an ideal space for a home office, and the main house bathroom. One of the three double bedrooms to this floor is the spacious primary suite. Having recently undergone structural work the primary bedroom has been increased in size boasting high vaulted ceilings, fitted wardrobes, with dressing table, and an en-suite shower room. To the second floor of the property is the fifth bedroom a further double with en-suite.

Situated on Wike Ridge Avenue the property is well positioned to offer easy access to the nearby shops, pubs and restaurants, and is only a short drive from the Ring Road making it an ideal location for commuters.

Externally, to the front of the property is driveway for multiple cars and a front garden laid to lawn. To the right hand side of the property is a useful outhouse currently used a cycling studio, but has versatile uses, and to the rear of this accessed from the rear garden is a shed.

This property must be seen to truly appreciate all it offers, to arrange your viewing contact Stoneacre Properties.

Lounge - The spacious formal lounge is finished with wood flooring and a gas fire. Offering ample space for seating, and double doors lead through to the kitchen/living/diner.

Utility Room - Complete with built in units providing plenty of storage space as well as an integrated freezer. The boiler and underfloor heating is all located in the utility room.

W/C - Comprising toilet and sink.

Cloakroom - A dedicated space for coats and shoes situated next to the w/c.

Kitchen/Living/Diner - The heart of this wonderful home is the impressive open plan kitchen/living/diner. A superb place for hosting and socialising with family and friends, large glass sliding doors open seamlessly to the rear decking and garden creating the perfect living space! With a dedicated dining space, and seating area the space is complete with a modern fitted kitchen made up of wall and base units comprising integrated microwave, double oven, gas hob with extractor above, dishwasher, wine fridge, American fridge/freezer will remain, and there is a boiling water tap. The kitchen boasts a central island all finished with solid worktops.

Bedroom 1 - Primary bedroom has recently been extended and now boasts wonderful vaulted ceilings, bespoke fitted wardrobes with dressing table, air conditioning. The room is laid to carpet and is complete with en-suite bathroom.

En-Suite - Tiled with electric underfloor heating, walk in shower, toilet and sink.

Bedroom 2 - Second double bedroom with fitted wardrobes.

Bedroom 3 - Third double bedroom to the first floor of the property, overlooks the rear garden with under stairs storage cupboard.

Bedroom 4 - Single bedroom also ideal as a home office, and currently used as a home gym.

House Bathroom - Tiled bathroom with shower over bath, toilet and sink.

Bedroom 5 - To the second floor of the property is the fourth double bedroom, with eves storage and en-suite bathroom.

En-Suite - Tiled with walk in shower, toilet and sink.

External - To the front of the property is a driveway for multiple cars and a front garden laid to lawn. To the right of the property and accessed from the front garden is one of two outhouses, currently used as a cycle studio but offering great versatility. Side access to the left of the property leads to the rear garden. To the rear is a private garden with raised composite decking and a garden laid to lawn with mature shrubbery to the perimeter. To the right of the property, accessed via the rear garden is the second of the two outhouses currently used a shed. The garden makes for a wonderful space to enjoy the outdoors and with the large sliding doors to the kitchen/living/diner it really helps bring the outdoors inside.

Property Ref: 478966_33723009

Share:

Similar Properties

Wigton Gate, Alwoodley, Leeds

4 Bedroom Detached House | Offers Over £725,000

*** APPROXIMATELY 2500 SQFT *** FOUR BEDROOM DETACHED HOUSE *** LOCATED IN A GATED DEVELOPMENT IN ALWOODLEY *** Stoneacr...

Woodland Lane, Chapel Allerton LS7 3QG

Commercial Property | Offers Over £695,000

FREEHOLD SALE - VACANT POSSESSION3 level property offering 4,630 plus sq ft with substantial car park located on Woodlan...

High Ash Crescent, Leeds

4 Bedroom Detached House | £675,000

*** STUNNING FAMILY HOUSE IN SOUGHT AFTER LOCATION *** 4-BED 2 BATH *** LARGE FAMILY ROOM WITH ACCESS TO REAR GARDEN ***...

Stoneleigh Way, Leeds

5 Bedroom Detached House | £795,000

*** STUNNING 5-BED DETACHED FAMILY HOME IN AMAZING ALWOODLEY LOCATION *** RARE OPPORTUNITY TO ACQUIRE A PROPERTY IN THIS...

Belvedere Road, Leeds

5 Bedroom Detached House | £795,000

*** 5-BED DETACHED WITH SUPERB OPEN PLAN KITCHEN *** SOLD CHAIN FREE *** Nestled on the highly sought after Belvedere Ro...

Luxury 4-bed Detached House, Leeds

4 Bedroom Detached House | Offers Over £795,000

*** BRAND NEW BUILD - READY TO MOVE IN *** 4-BED DETACHED ON SHADWELL LANE *** SPANNING 1725 SQFT*** Stoneacre Propertie...

Stoneacre Properties (Leeds)

Chapel Allerton, Leeds, West Yorkshire, LS7 4NZ

0113 2370999

How much is your home worth?

Use our short form to request a valuation of your property.

Request a Valuation

Mortgage Calculator

Amount Borrowed: £
Total Amount Repayable: £
Total Monthly Payment: £
©2025 The Guild of Property Professionals. All rights reserved. Terms and Conditions | Privacy Policy | Cookie Policy | Complaints Policy | Members Login
The Guild of Property Professionals Trading Address: 121 Park Lane, London W1K 7AG. GPEA Limited. Registered in England & Wales.  Company No: 02819824.  Registered Office Address: 2 St. Stephen's Court, St. Stephen's Road, Bournemouth, Dorset, England, BH2 6LA.  VAT Registration No: 576 8795 61
Book a Property Valuation Update Cookies Preferences