Station Road, Morton, Bourne

Offers Over
£467,500

4 Bedroom Detached House for sale in Morton

3 4 2
  • 3 Bedroom Period Family Home
  • Dating back to the 1850's
  • Situated in the Heart of this Popular Village
  • Sitting Room, Study & Dining Room
  • 21ft Library/Reception Room
  • Kitchen & Utility Room
  • 3 Double Bedrooms, Family Bathroom & Shower Room
  • Established Front and Rear Gardens & Off Road Parking
  • Please Refer to Attached KFB For Material Information Disclosures


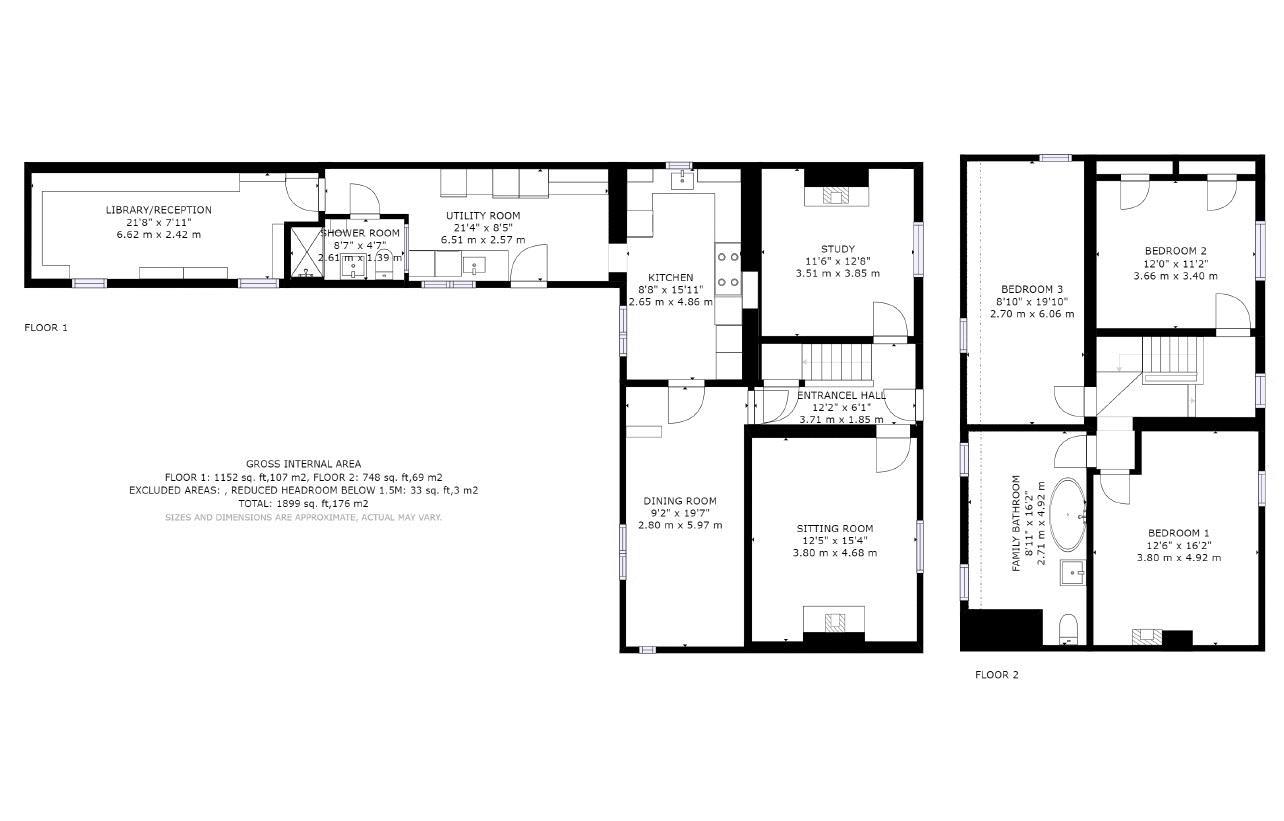
The remaining accommodation is very traditional in its layout and comprises; Entrance Hall, Sitting Room with brand new wood burning stove, Study, Dining Room and Kitchen. With Three Double Bedrooms and a Family bathroom to the first floor.

Outside the property is further enhanced by the mature front and rear gardens. There is also off-road parking for several vehicles to the front of the property. Morton is only 5 minutes drive from the lovely market town of Bourne but has many facilities within the village including, two shops, post office, a church and chapel, public house and primary school.

Agents Note:
Local Authority – South Kesteven District Council
Council Tax Band – D
EPC Rating - D

Internal viewing is highly recommended to fully appreciate this family home.

Entrance Hall
12' 2'' x 6' 1'' (3.71m x 1.85m)

Sitting Room
12' 5'' x 15' 4'' (3.78m x 4.67m)

Study
11' 6'' x 12' 8'' (3.50m x 3.86m)

Dining Room
9' 2'' x 19' 7'' (2.79m x 5.96m)

Kitchen
8' 8'' x 15' 11'' (2.64m x 4.85m)

Utility Room
21' 4'' x 8' 5'' (6.50m x 2.56m)

Shower Room
8' 7'' x 4' 7'' (2.61m x 1.40m)

Reception Room
21' 8'' x 7' 11'' (6.60m x 2.41m)

Landing

Bedroom 1
12' 6'' x 16' 2'' (3.81m x 4.92m)

Bedroom 2
12' 0'' x 11' 2'' (3.65m x 3.40m)

Bedroom 3
8' 10'' x 19' 10'' (2.69m x 6.04m)

Family Bathroom
8' 11'' x 16' 2'' (2.72m x 4.92m)

Established Front & Rear Gardens

Off Road Parking


Sizes and dimensions are calculated using a laser measuring modelling device and as such whilst representative it must be noted that they are all approximate, actual sizes may vary.

Important Information

  • This Council Tax band for this property is: D
  • EPC Rating is D

Property Ref: 43069_34130880

Share:

Similar Properties

Main Street, Caldecott, Market Harborough

3 Bedroom Cottage | £450,000

3 Bedrooms | 2 Bathrooms | 3 Reception RoomsA beautifully presented recently extended and fully renovated village home f...

Church Street, Northborough, Peterborough

3 Bedroom Detached House | £450,000

A rare opportunity to acquire an attractive stone cottage with a substantial converted barn, offering versatile addition...

Camrose Close, Oakham

4 Bedroom Detached House | £450,000

Spacious 4-Bedroom Detached Family Home - Camrose Close, Oakham. Nestled in a quiet cul-de-sac in the highly sought-afte...

Cambridge Road, Stamford

3 Bedroom Bungalow | £480,000

This deceptively spacious three-bedroom detached bungalow offers an exceptional amount of versatile living accommodation...

Barnack Road, Stamford

4 Bedroom Town House | £500,000

An immaculate four double bedroom townhouse, ideally positioned opposite Burghley Park and just a short stroll from Stam...

Conduit Road, Stamford

4 Bedroom Terraced House | £575,000

Finished to an exceptionally high standard throughout this 4 bedroom family home has been extended, meticulously refitte...

Goodwin Property (Stamford)

St Johns Street, Stamford, Lincolnshire, PE9 2DA

01780 750000

How much is your home worth?

Use our short form to request a valuation of your property.

Request a Valuation

Mortgage Calculator

Amount Borrowed: £
Total Amount Repayable: £
Total Monthly Payment: £
©2026 The Guild of Property Professionals. All rights reserved. Terms and Conditions | Privacy Policy | Cookie Policy | Complaints Policy | Members Login
The Guild of Property Professionals Trading Address: 121 Park Lane, London W1K 7AG. GPEA Limited. Registered in England & Wales.  Company No: 02819824.  Registered Office Address: 2 St. Stephen's Court, St. Stephen's Road, Bournemouth, Dorset, England, BH2 6LA.  VAT Registration No: 576 8795 61
Book a Property Valuation Update Cookies Preferences