Hill Chorlton, Newcastle, ST5

Offers in region of
£899,999
SSTC
This property listing is now SSTC

6 Bedroom Detached House for sale in Newcastle

3 6 2
  • The double garage has further living accommodation above with a one bedroom apartment with open plan living and separate bedroom with fully fitted bathroom
  • Situated on a generous plot of approximately 6 acres of mature gardens mostly laid to lawn with trees and a pond.
  • A well proportioned games room is the ideal space to enjoy, or, could also be used as an additional sitting room.
  • Located in the rural Hamlet of Chorlton where you can enjoy far reaching views and watch the seasons change.
  • An impressive Grade 2 listed residence with beautiful character features throughout, sitting within it's own gated private grounds

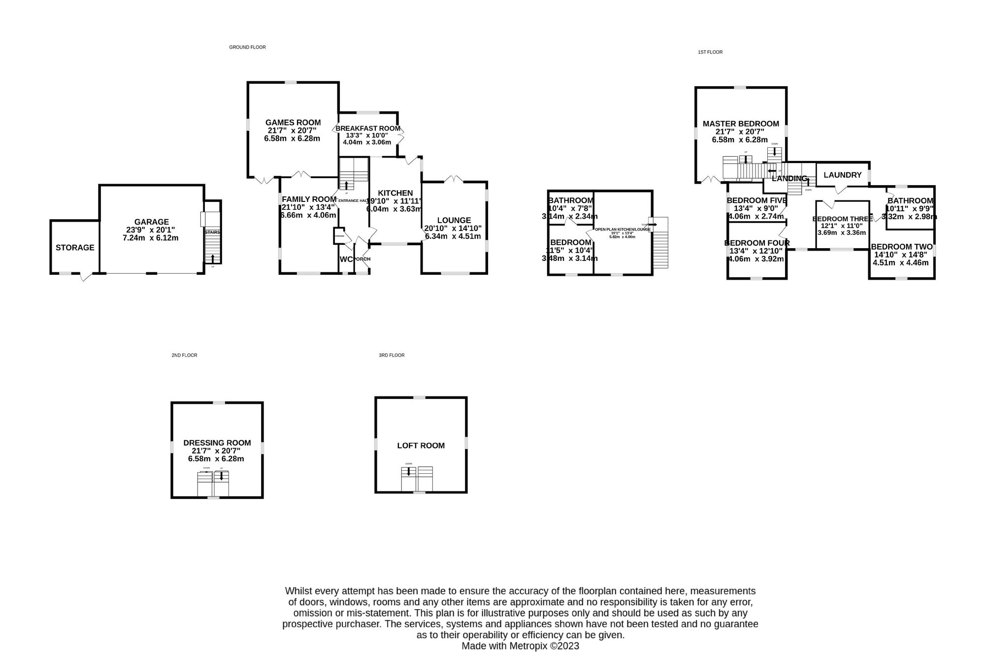
Wow! There is no other word more appropriate for this fantastic family home. Built up around a Grade II listed mill dating back to the 1850's with streams and ponds running through the approximate 6 acres of garden land. This fantastic house is built with families in mind, having space for everyone with three reception rooms on the ground floor, including the formal lounge with inglenook fireplace, further sitting room ideal for the children and spacious room on the ground floor of the mill that's currently used as a games room. In addition to the games room is a modern kitchen with exposed beams and brick work to added character but fitted with a kitchen of a spectacular modern design and fitted with a high gloss contemporary kitchen with black base and wall units and solid worktop to finish. Integrated into the worktops is a sunken sink with mixer tap above and etched drainer to the side. There is a recess for the television with television connection point, integrated appliances including a dishwasher and a fridge freezer along with an Aga. There are exposed beams to the ceiling, spotlights to the ceiling, tiled splashback and tiled flooring with under floor heating. There is also a front-facing double glazed window and rear-facing door providing access out onto the paved patio area where there is an outdoor barbecue and eatery. A breakfast room to the rear with vaulted ceiling and doors out into the garden as well as a log burner. The ground floor is finished with a guest WC, porch and entrance hallway. Up on the first floor are four double bedrooms and the family bathroom, a slight rise in steps takes you to the master suite within the old mill with the exposed stone work throughout and stairs rising up to the dressing room. A further set of stairs rise up again into the loft room at the top of the mill with exposed mill workings in the ceiling. Outside, the double garage has further living accommodation above with a one bedroom apartment with open plan living and separate bedroom with fully fitted bathroom. The property sits on a large plot of approximately seven acres and the majority of this is laid to lawn whilst there are sunken ponds and streams throughout.  There is a range of decorative planting along with two outbuildings including a large fifty foot greenhouse and double garage with flat above and storage unit to the side. It's something that you will fall in love with! Call us today to arrange your viewing!

Important Information

  • This Council Tax band for this property is: G

Property Ref: 9b6ddf5e-381f-4693-b2e0-7755ba743d0b

Share:

Similar Properties

Haddon Lane, Chapel Chorlton, ST5

5 Bedroom Plot | £895,000

Prestigious building plot with two fishing ponds on private acreage near Nantwich & Newcastle. Ideal for creating a drea...

Partridge Ride, Loggerheads, TF9

5 Bedroom Detached House | £895,000

Introducing a stunning 5-bed detached home with grand frontage, nestled by antient woodlands. Gated entrance, high ceili...

Knighton, Stafford, ST20

3 Bedroom Detached House | £850,000

Charming characterful 3-bed, 2-bath home in Knighton with 2.14 acres of land. Features log burners, modern kitchen, cell...

Lipley, Market Drayton, TF9

4 Bedroom Detached House | Offers in excess of £925,000

Charming 4-bed, 3-bath home on 2.86 acres with stables, paddock, garage & stunning views. Equestrian lifestyle in rural...

Green Lane, Whitgreave, ST18

5 Bedroom Detached House | £925,000

Luxury equestrian estate with barn conversion, stables, outbuildings, and 2 acres of picturesque land. 5 beds, 4 baths,...

Pinewood Road, Ashley Heath, TF9

5 Bedroom Detached House | Offers in excess of £950,000

Luxurious home on Pinewood Road, showcasing exquisite details. Stunning interiors, grand entrance, expansive kitchen/fam...

James Du Pavey Estate Agents (Eccleshall)

Eccleshall, Staffordshire, ST21 6BH

01785 851886

How much is your home worth?

Use our short form to request a valuation of your property.

Request a Valuation

Mortgage Calculator

Amount Borrowed: £
Total Amount Repayable: £
Total Monthly Payment: £
©2025 The Guild of Property Professionals. All rights reserved. Terms and Conditions | Privacy Policy | Cookie Policy | Complaints Policy | Members Login
The Guild of Property Professionals Trading Address: 121 Park Lane, London W1K 7AG. GPEA Limited. Registered in England & Wales.  Company No: 02819824.  Registered Office Address: 2 St. Stephen's Court, St. Stephen's Road, Bournemouth, Dorset, England, BH2 6LA.  VAT Registration No: 576 8795 61
Book a Property Valuation Update Cookies Preferences