Church Street, Northborough, Peterborough

£500,000

3 Bedroom Detached House for sale in Peterborough

3 3 2
  • Grade II Listed Stone Cottage
  • Converted Barn to Workshop & Hobby Rooms
  • Versatile Accommodation
  • Cottage - 2/3 Double Bedrooms - 3/4 Reception Rooms
  • Bespoke Kitchen Breakfast Room
  • Popular Village Location
  • Mature Gardens
  • Ample Off Road Parking & Single Garage
  • Please refer to attached Key Facts for Buyers for Material Information Disclosures


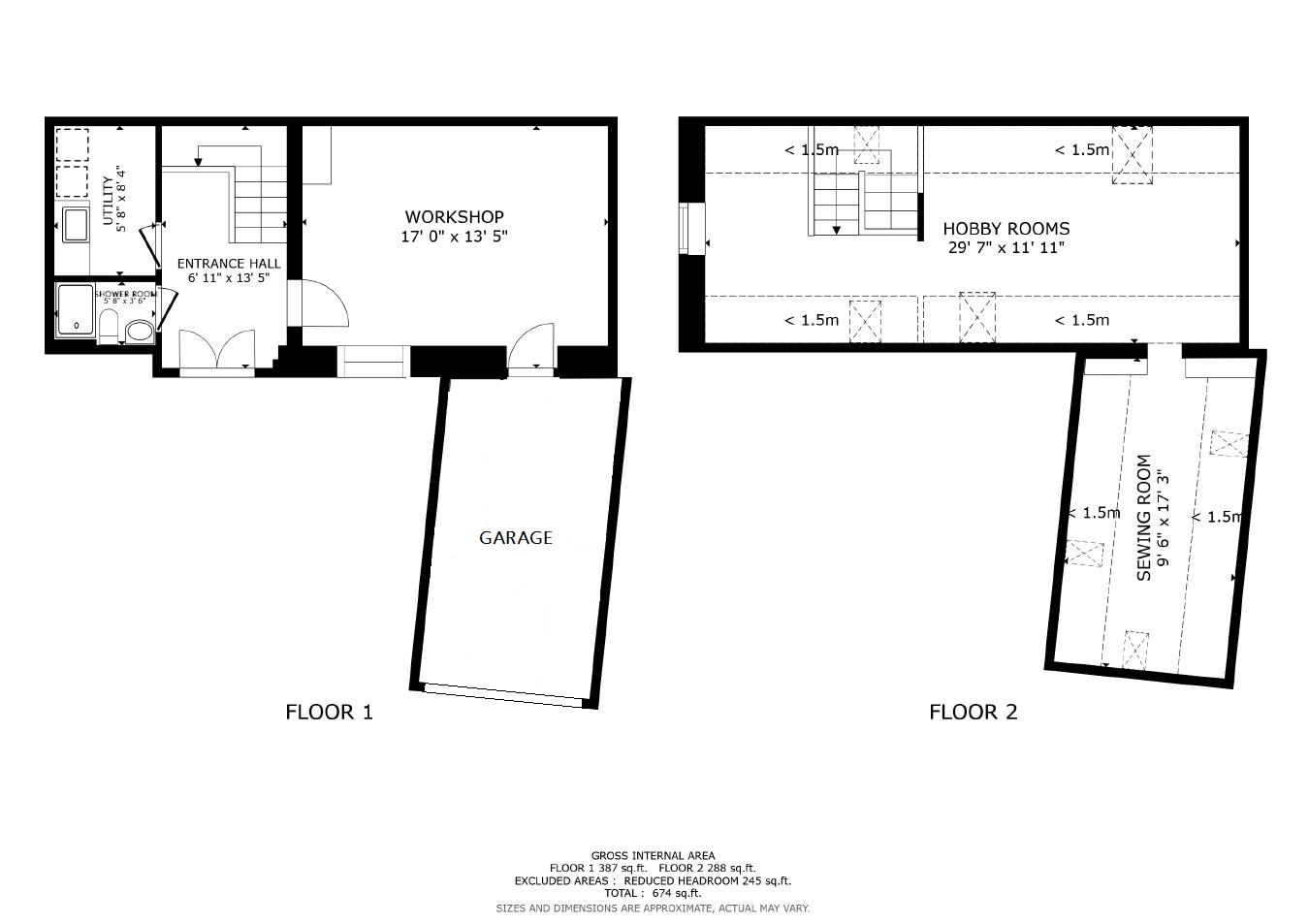
Briefly the accommodation comprises; Cottage - Ground Floor - Entrance Porch, Living Room, Dining Room, Hallway, Family Bathroom, Study, Bedroom 3/Sitting Room, Kitchen Breakfast Room, Utility, and Rear lobby. First Floor - Landing, 2 Double Bedrooms, Bedroom 1 with En-Suite Shower Room and good sized Cupboard. The Barn - The barn currently has planning permission to be used as a workshop and hobby rooms - for residential use, the property would need to obtain planning permission to convert usage. Current layout of Barn - Ground Floor - Hallway, Shower Room, Utility, Workshop and Single Garage. First Floor - 29' Hobby Room, and Sewing Room.

Outside - To the front the property there is a good sized lawned area and a driveway that provides off road parking for several vehicles which in turn leads to the Single Garage. To the rear is a private rear garden and patio area, mature planting and an outside store.

Internal Viewing Is Highly Recommended To Fully Appreciate The Accommodation On Offer

Agents Note:
Local Authority – Peterborough City Council
Council Tax Band – D
EPC Rating - Exempt

Cottage

Porch
1.22m x 1.42m (4'0" x 4'8")

Living Room
4.24m x 5.51m (13'11" x 18'1")

Dining Room
4.24m x 2.90m (13'11" x 9'6")

Hallway
1.63m x 3.84m (5'4" x 12'7")

Kitchen Breakfast Room
3.86m x 3.53m (12'8" x 11'7")

Utility
1.85m x 1.96m (6'1" x 6'5")

Rear Lobby
1.02m x 0.97m (3'4" x 3'2")

Bathroom
1.37m x 2.84m (4'6" x 9'4")

Hallway
2.49m x 0.97m (8'2" x 3'2")

Study
2.11m x 2.90m (6'11" x 9'6")

Bedroom 3/Sitting Room
2.44m x 3.96m (8'0" x 13'0")

Landing

Bedroom 1
4.52m x 3.66m (14'10" x 12'0")

En -Suite
2.01m x 1.12m (6'7" x 3'8")

Bedroom 2
4.52m x 2.97m (14'10" x 9'9")

The Barn

Entrance Hall
2.11m x 4.09m (6'11" x 13'5")

Shower Room
1.73m x 1.07m (5'8" x 3'6")

Utility
1.73m x 2.54m (5'8" x 8'4")

Workshop
5.18m x 4.09m (17'0" x 13'5")

Single Garage

First Floor

Hobby Rooms
9.02m x 3.63m (29'7" x 11'11")

Sewing Room
2.90m x 5.26m (9'6" x 17'3")


Sizes and dimensions are calculated using a laser measuring modelling device and as such whilst representative it must be noted that they are all approximate, actual sizes may vary.

Important Information

  • This Council Tax band for this property is: D

Property Ref: 43069_34224531

Share:

Similar Properties

Adelaide Street, Stamford

2 Bedroom Terraced House | £500,000

This extremely well presented stone town house , is set in a tucked away location just minutes from Stamford's Town Cent...

Lonsdale Road, Stamford

4 Bedroom Detached House | Offers Over £500,000

Set in this sought after estate location to the west of Stamford is this established 4 Bedroom Detached Family Home with...

Home Farm Close, Great Casterton

3 Bedroom Detached House | £475,000

'The Barn' is a charming 3-bedroom stone property which forms part of a small and exclusive development in the heart of...

Barnack Road, Stamford

4 Bedroom Townhouse | Offers in region of £530,000

An immaculate four double bedroom townhouse, ideally positioned opposite Burghley Park and just a short stroll from Stam...

Clapton Close, Stamford

4 Bedroom Detached House | £600,000

This modern, well presented four bedroom detached family home is set in this quiet cul-de-sac position on this popular d...

Bainton Green Road, Ashton, Stamford

4 Bedroom Cottage | £650,000

A rare opportunity has arisen to acquire this attractive Grade II Listed Detached Stone Cottage that dates back to the 1...

Goodwin Property (Stamford)

St Johns Street, Stamford, Lincolnshire, PE9 2DA

01780 750000

How much is your home worth?

Use our short form to request a valuation of your property.

Request a Valuation

Mortgage Calculator

Amount Borrowed: £
Total Amount Repayable: £
Total Monthly Payment: £
©2025 The Guild of Property Professionals. All rights reserved. Terms and Conditions | Privacy Policy | Cookie Policy | Complaints Policy | Members Login
The Guild of Property Professionals Trading Address: 121 Park Lane, London W1K 7AG. GPEA Limited. Registered in England & Wales.  Company No: 02819824.  Registered Office Address: 2 St. Stephen's Court, St. Stephen's Road, Bournemouth, Dorset, England, BH2 6LA.  VAT Registration No: 576 8795 61
Book a Property Valuation Update Cookies Preferences