Elburton, Plymouth

£310,000
SSTC
This property listing is now SSTC

3 Bedroom Semi-Detached House for sale in Plymouth

1 3 1
  • Semi-detached house in a lovely position occupying a corner plot
  • Lovely views towards Dartmoor
  • Entrance hall & downstairs cloakroom/wc
  • Lounge/dining room
  • Kitchen/breakfast room
  • 3 bedrooms & shower room
  • Detached single garage & brick-paved driveway
  • Gardens to the front, side & rear elevations
  • Double-glazing & central heating
  • No onward chain

An excellent opportunity to acquire this semi-detached property situated in a highly sought-after location within Elburton. The property occupies a corner plot & enjoys lovely views towards Dartmoor The accommodation briefly comprises an entrance hall with downstairs cloakroom/wc, lounge/dining room, kitchen/breakfast room, 3 bedrooms & shower room. Gardens to the front, side & rear elevations, together with brick-paved driveway & detached single garage. Double-glazing & central heating. No onward chain.

Dunstone View, Elburton, Pl9 8Qh -

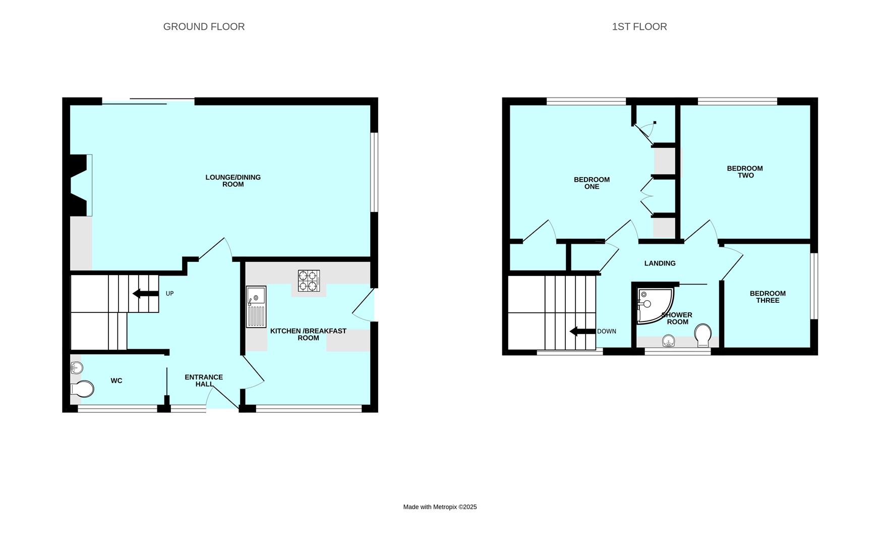
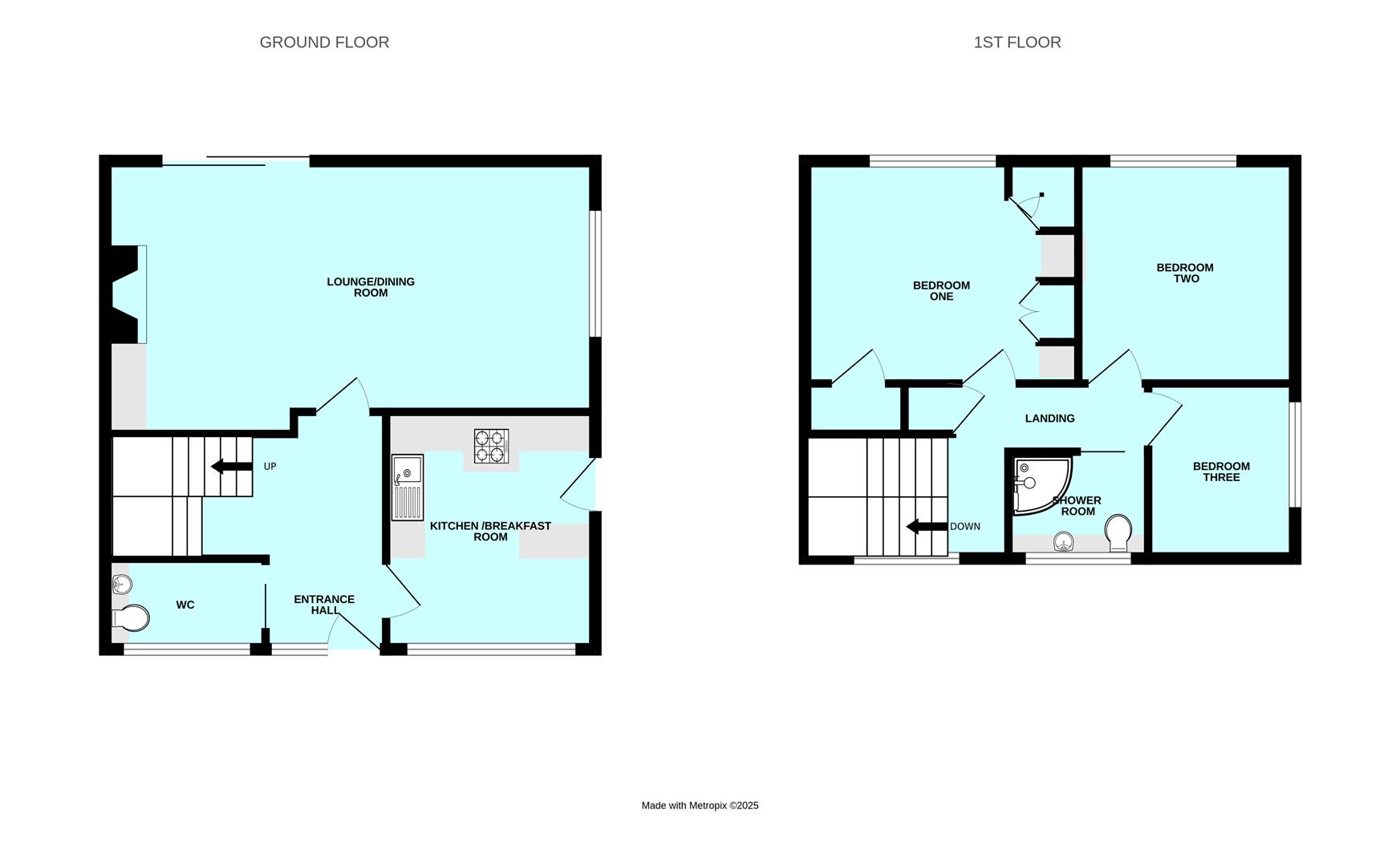
Accommodation - Front door opening into the entrance hall.

Entrance Hall - 3.96m x 3.73m max dimensions (13' x 12'3 max dimen - Providing access to the ground floor accommodation. Stairs rising to the first floor. Under-stairs cupboards housing the gas meter, electric meter and consumer unit.

Lounge/Dining Room - 7.11m x 3.61m (23'4 x 11'10) - A dual aspect room with a window to the side elevation and sliding double-glazed doors to the rear elevation opening onto the garden. Fireplace with a matching stone hearth and plinth to one side.

Kitchen/Breakfast Room - 3.58m x 3.02m (11'9 x 9'11) - Range of base and wall-mounted cabinets with matching fascias, work surfaces and tiled splash-backs. Ceramic style one-&-half bowl single drainer sink unit. Built-in double oven and grill. Inset 4-burner gas hob. Space for a free-standing fridge-freezer. Washing machine. Dishwasher. Breakfast area to the front with space for a small table and chairs. Tiled floor. Window to the front elevation providing lovely over Elburton towards Dartmoor. Obscured glazed door to the side leading to outside.

Downstairs Cloakroom/Wc - 2.29m x 1.19m (7'6 x 3'11) - Fitted with a wc with a concealed cistern and a push-button flush and a basin with storage beneath. Wall-mounted Vaillant gas boiler. Window with a fitted blind to the front elevation.

First Floor Landing - Providing access to the first floor accommodation. Recessed cupboard with slatted shelving housing the hot water cylinder. Loft hatch with pull-down loft ladder. Feature full-height window taking advantage of the position with lovely views towards Dartmoor.

Bedroom One - 3.86m x 3.10m (12'8 x 10'2) - Window to the rear elevation. Original recessed wardrobe with hanging rail and shelf. Built-in wardrobes, cupboards, drawer units and a dressing table.

Bedroom Two - 3.15m x 3.15m (10'4 x 10'4) - Window to the rear elevation.

Bedroom Three - 2.59m x 1.98m (8'6 x 6'6) - Window to the side elevation.

Shower Room - 1.88m x 1.65m (6'2 x 5'5) - Comprising a shower, basin and wc with a concealed cistern and a push-button flush. Built-in storage cupboards. Chrome towel rail/radiator. Tiled floor. Fully-tiled walls. Window with a fitted blind to the front elevation.

Single Detached Garage - Up-&-over style door to the front elevation. Side access door. Window.

Outside - To the front the garden is laid to lawn together with shrubs and a brick-paved pathway leads to the main front entrance. The garden to the side elevation is laid to lawn and a brick-paved pathway leads around the perimeter of the property accessing the rear garden. To the rear there is a brick-paved patio and shrubs together with an area laid to lawn and further shrubs. The brick-paved driveway to the side elevation provides off-street parking and access to the garage. The driveway leads onto Springfield Close.

Council Tax - Plymouth City Council
Council tax band C

Services - The property is connected to all the mains services: gas, electricity, water and drainage.

Property Ref: 11002660_34137200

Share:

Similar Properties

Plymstock, Plymouth

4 Bedroom Townhouse | £310,000

Ideally-situated modern townhouse within this very popular development enjoying a desirable position close to the Plym e...

Oreston, Plymouth

4 Bedroom Semi-Detached House | £305,750

Being sold with no onward chain is this superb older-style semi-detached house situated in the heart of the waterside vi...

Oreston, Plymouth

3 Bedroom Semi-Detached House | £305,000

Older-style bay-fronted semi-detached house situated in this highly sought-after location. The property enjoys a large l...

Saltram Meadow, Plymouth

4 Bedroom Terraced House | £315,000

Superbly-presented 3-storey townhouse situated in this very popular position. The accommodation briefly comprises an ent...

Plymstock, Plymouth

4 Bedroom Semi-Detached House | £315,000

Superbly positioned extended semi-detached house with very nicely presented accommodation throughout. Briefly the accomm...

Plymstock, Plymouth

4 Bedroom House | £315,000

Being sold with no onward chain is this good-sized family link detached property. It is located in a convenient position...

Julian Marks Estate Agents (Plymstock)

2 The Broadway, Plymstock, Plymstock, Devon, PL9 7AW

01752 401128

How much is your home worth?

Use our short form to request a valuation of your property.

Request a Valuation

Mortgage Calculator

Amount Borrowed: £
Total Amount Repayable: £
Total Monthly Payment: £
©2026 The Guild of Property Professionals. All rights reserved. Terms and Conditions | Privacy Policy | Cookie Policy | Complaints Policy | Members Login
The Guild of Property Professionals Trading Address: 121 Park Lane, London W1K 7AG. GPEA Limited. Registered in England & Wales.  Company No: 02819824.  Registered Office Address: 2 St. Stephen's Court, St. Stephen's Road, Bournemouth, Dorset, England, BH2 6LA.  VAT Registration No: 576 8795 61
Book a Property Valuation Update Cookies Preferences