Whitsbury Road, Odstock

Guide Price
£795,000
SSTC
This property listing is now SSTC

3 Bedroom Detached House for sale in Salisbury

1 3 1
  • Detached character cottage
  • Planning for a pair or new cottages
  • About an acre
  • Overlooking farmland
  • Close to the hospital
  • Ample parking
  • Walking distance to a public house
  • Edge of the village

An exceptional and very rare opportunity to acquire a character detached cottage with planning permission for two semi-detached houses, set on approximately an acre at the edge of the village, overlooking farmland.

Description - A very rare and exceptional opportunity to purchase a detached character cottage together with planning permission for a pair of semi-detached cottages, situated in about an acre on the edge of a highly sought after village. The cottage would benefit either from updating or with the addition of an extension would create a wonderful family home. The two new homes have been designed in a cottage style and therefore fit in well with the surrounding landscape. When built, the village itself would gain the benefit of a beautiful communal orchard. It is set in one of our most popular villages within walking distance of the hospital, 2 good local public houses, nursery school and dentist. The city of Salisbury with it's Medieval center and excellent facilities including a mainline train route to Waterloo, is only 3 miles away. There is excellent walking and riding on the doorstep as well as lovely views over surrounding farmland.

This is a very rare opportunity nowadays and the agents would highly recommend an early viewing. For further details please call Whites on 01722 336422.

The Cottage -

Entrance Porch - Timber clad with shelving. Half glazed door to:

Entrance Hall - Stairs to first floor.

Sitting Room - Fireplace with inset woodburning stove and tiled hearth.

Kitchen/Dining Room - Range of wood effect work surfaces with base and wall mounted cupboards and drawers, electric cooker with hood over, inset one and a half bowl sink with drainer and mixer tap over, ceiling downlighters, cupboard housing electricity consumer unit.

Rear Lobby - Door to garden.

Utility Room - Wood effect work surfaces with inset single drainer stainless steel sink unit, cupboards below, space and plumbing for washing machine, further appliance space, part tiled walls.

Cloakroom - Low level wc and hand basin.

Boiler Room - Mains pressure water tank and Worcester oil fired boiler for heating and hot water.

First Floor Landing - Built in double cupboard.

Bedroom One - Range of fitted wardrobes.

Bedroom Two - Built in double wardrobe.

Bedroom Three - Hatch to insulated loft space.

Bathroom - White, panel bath with electric shower over and glass screen, wc and hand basin. Heated towel rail, part tiled walls.

Outside - The gardens surround the cottage and extend away eastwards. Total plot size is about an acre with lawned areas, flower beds and shrubs. There is ample parking and a large wooden storage shed. In addition there is a paddock which will become the communal orchard for the village when the new houses are built.

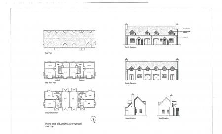
New Houses - Planning permission has been granted for a pair of semi-detached cottages which will consist of entrance hall, cloakroom, sitting room, kitchen/dining room, 3 bedrooms, bathroom and garage. For more details please ring the agents.

Outgoings - The Council Tax Band is ' D ' and the payment for the year 2023/2024 payable to Wiltshire Council is �2,128.98.

Services - Mains water and electricity are connected to the property. Oil fired central heating. Septic tank drainage.

Directions - Leave the city proceeding south via Exeter Street. Continue over the roundabout into Newbridge Road. Proceed over the traffic lights and turn left at the roundabout. Go straight over the roundabout onto Odstock Road, past the hospital on the left and at the crossroads proceed straight ahead into Whitsbury Road where number 219 will be seen on the left hand side.

What3words - What3Words reference is: ///focus.adopts.encrusted

Property Ref: 665745_33093554

Share:

Similar Properties

Netton, Salisbury

3 Bedroom Cottage | Guide Price £775,000

A detached, period character cottage set on a spacious plot with a garage and parking, located in the highly sought-afte...

St. Marys Close, Wylye

4 Bedroom Detached House | Guide Price £750,000

A wonderful detached family home offered in excellent order throughout, situated within a large corner garden with ample...

The Avenue, Porton

4 Bedroom Detached House | £750,000

A well presented four double bedroom detached house with a double garage and a south facing garden. Benefits from parkin...

Stonehenge Road, Amesbury

4 Bedroom Detached House | Guide Price £800,000

A detached house with a large garden and off road parking. Benefits include two en suites and a large conservatory exten...

Swaynes Close, Salisbury

5 Bedroom Semi-Detached House | Offers in region of £825,000

A period family home, full of character, situated in a highly sought after location within the ring road and close to th...

Paccombe, Redlynch, Salisbury

5 Bedroom Detached House | Guide Price £875,000

A modern detached house built in 2012 to a high standard, featuring a double garage and an office above, ample parking,...

Whites Estate Agents (Salisbury)

47 Castle Street, Salisbury, Wilts, SP1 3SP

01722 336 422

How much is your home worth?

Use our short form to request a valuation of your property.

Request a Valuation

Mortgage Calculator

Amount Borrowed: £
Total Amount Repayable: £
Total Monthly Payment: £
©2025 The Guild of Property Professionals. All rights reserved. Terms and Conditions | Privacy Policy | Cookie Policy | Complaints Policy | Members Login
The Guild of Property Professionals Trading Address: 121 Park Lane, London W1K 7AG. GPEA Limited. Registered in England & Wales.  Company No: 02819824.  Registered Office Address: 2 St. Stephen's Court, St. Stephen's Road, Bournemouth, Dorset, England, BH2 6LA.  VAT Registration No: 576 8795 61
Book a Property Valuation Update Cookies Preferences