Belle Vue Road, Salisbury

£490,000
SSTC
This property listing is now SSTC

3 Bedroom Terraced House for sale in Salisbury

2 3 1
  • Character terrace house with GARAGE
  • Three double bedrooms
  • Two reception rooms
  • Kitchen/breakfast room
  • Bathroom
  • Refurbished throughout
  • PVCu DG and gas CH
  • Garden
  • Prime city centre location
  • No chain

A character three bedroom terraced house which has been refurbished throughout. It has a DETACHED GARAGE and is in a prime city centre location. NO ONWARD CHAIN.

The property is a well presented three bedroom terraced house in a prime location in the city centre and with the unusual benefit of a GARAGE with a workshop area. The house is offered with NO ONWARD CHAIN.

The house has been extensively renovated by the present owner and is now in excellent order. Improvements include a new kitchen and bathroom, replumbing and rewiring together with redecoration throughout.

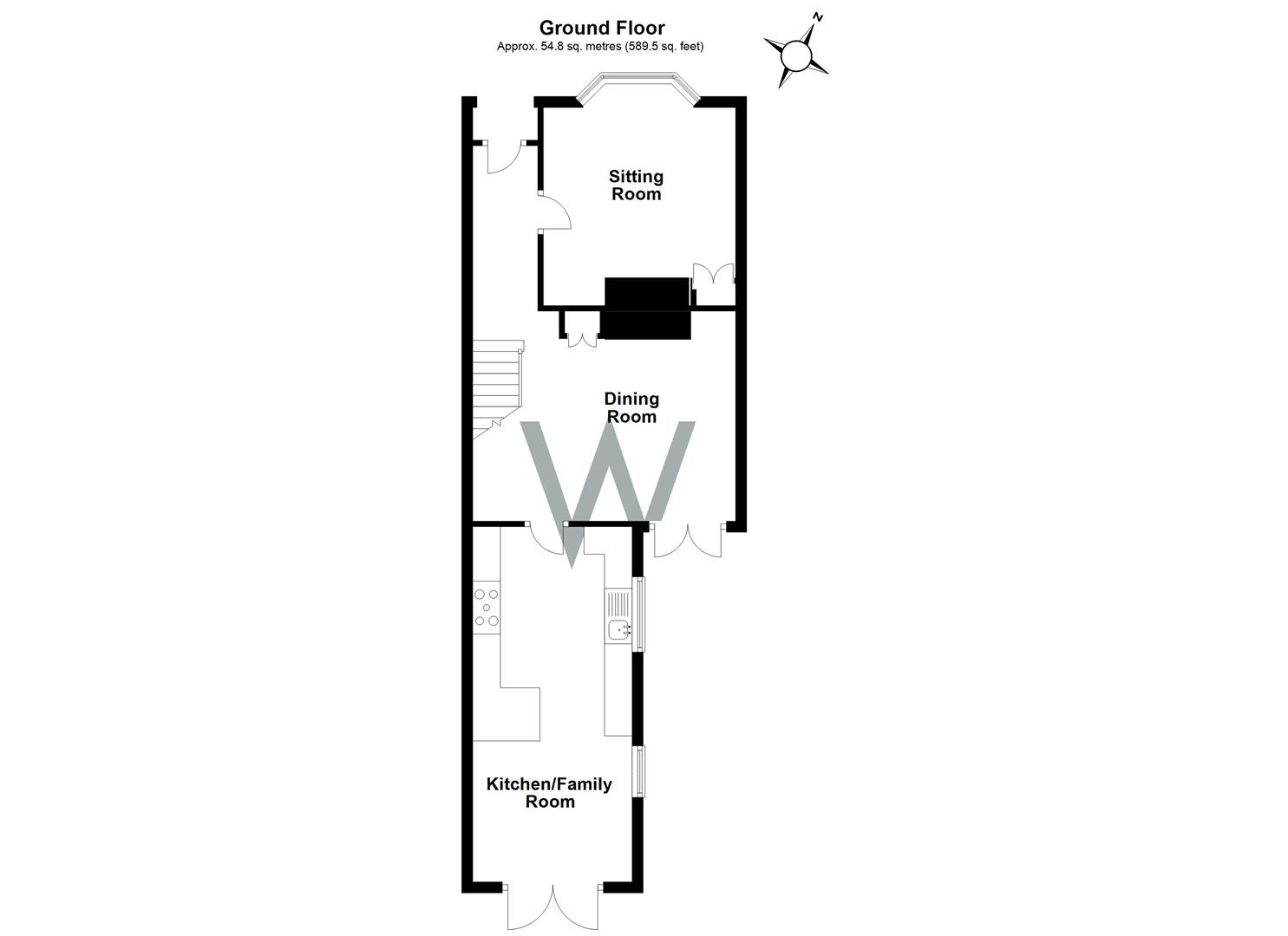
On the ground floor there is an entrance hallway which leads through to the dining room. There is a sitting room with an attractive bay window and a built in dresser with glass fronted display shelving and cupboard under. The dining room also has similar glass fronted shelving and cupboard, a fireplace with a timber surround and mantel with cast iron grate and French doors to the rear. The open plan kitchen/breakfast room has a good range of units with space and plumbing for a washing machine and dishwasher and integrated electric double oven and grill with five ring gas hob and extractor and space for a fridge/freezer. There is space for a dining table and chairs next to French doors that lead out on to the rear garden.

On the first floor are three bedrooms. The main bedroom has a fitted wardrobe with a hanging rail and the second bedroom also has a fitted wardrobe. Bedroom three overlooks the garden to the rear. The bathroom has a stylish white three piece suite with a rainfall style shower over the bath. Further benefits include a new gas central heating system and PVCu double glazing throughout.

To the front of the property is a tiled path and a small garden area. The rear garden enjoys an westerly aspect with lawn and patio and a rear access gate leading on to Belle Vue Road. THE GARAGE (7.58m x 3.18m) HAS A PITCHED, TILED ROOF, UP AND OVER DOOR AND ACCESS IN TO THE GARDEN. This is a rare feature for a property in the city centre.

Belle Vue Road lies inside the ring road within easy walking distance of the city centre and amenities including the railway station and the Waitrose store.

Property Ref: 665745_33850593

Share:

Similar Properties

Chine Road, Upper Woodford

3 Bedroom Detached House | Guide Price £475,000

A brilliant opportunity to purchase a good-sized period cottage which is now in need of finishing off and perhaps altera...

St. Nicholas Close, Porton, Salisbury

4 Bedroom Detached House | £460,000

A versatile detached house situated in a small cul de sac and offered with no onward chain. Three/four bedrooms, three r...

Duck Street, Steeple Langford

3 Bedroom Semi-Detached House | Guide Price £450,000

A spacious semi-detached house situated in the heart of the village with a lovely outlook over open fields to the rear,...

Netton, Nr Salisbury

3 Bedroom Cottage | Guide Price £495,000

A charming period cottage, superbly renovated full of character features, together with parking and garden, in the heart...

High Lane, Broad Chalke

4 Bedroom Detached House | Guide Price £500,000

A character detached house offering scope for modernisation and alteration, situated in one of the areas most sought aft...

Tanners Lane, Shrewton, Salisbury

4 Bedroom Detached House | Guide Price £500,000

Unusually spacious detached cottage, full of character features together with woodburning stove, exposed timbers, ledged...

Whites Estate Agents (Salisbury)

47 Castle Street, Salisbury, Wilts, SP1 3SP

01722 336 422

How much is your home worth?

Use our short form to request a valuation of your property.

Request a Valuation

Mortgage Calculator

Amount Borrowed: £
Total Amount Repayable: £
Total Monthly Payment: £
©2025 The Guild of Property Professionals. All rights reserved. Terms and Conditions | Privacy Policy | Cookie Policy | Complaints Policy | Members Login
The Guild of Property Professionals Trading Address: 121 Park Lane, London W1K 7AG. GPEA Limited. Registered in England & Wales.  Company No: 02819824.  Registered Office Address: 2 St. Stephen's Court, St. Stephen's Road, Bournemouth, Dorset, England, BH2 6LA.  VAT Registration No: 576 8795 61
Book a Property Valuation Update Cookies Preferences