Netton, Nr Salisbury

Guide Price
£495,000
SSTC
This property listing is now SSTC

3 Bedroom Cottage for sale in Salisbury

2 3 1
  • Period cottage
  • Completely renovated
  • Beautiful village location
  • Inglenook fireplace
  • Exposed timbers
  • Parking for two vehicles
  • Delightful cottage garden
  • Oil central heating
  • Double glazing

A charming period cottage, superbly renovated full of character features, together with parking and garden, in the heart of this Woodford Valley village. The sitting room is a particular feature and has a superb open Inglenook fireplace with bresummer beam over. The property is not listed.

Description - A beautifully presented and completely renovated part thatch, part slate cottage in the heart of the village. The sitting room has a superb open Inglenook fireplace with bresummer beam over. Off the sitting room is a study/3rd bedroom and cloakroom. The kitchen is to the rear with a range of fitted units with a door to outside. On the first floor there are two bedrooms and a wonderful bathroom. There are a host of original features including exposed wooden beams and also added features such as oak doors and flooring. Windows are upvc double glazed and there is oil central heating via column radiators. There is a cellar with access from outside. The garden is well stocked featuring an abundance of colour and there is also off road parking space for 2 vehicles to the side. We believe the property was built in the mid seventeenth century with the later addition to the side approximately 150 years ago. The property is not listed.

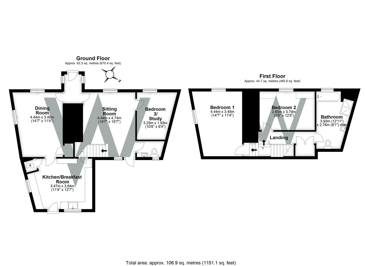
House Specifics - The accommodation is arranged as follows, all measurements being approximate:

Entrance Hall - Oak flooring.

Sitting Room - 4.61m x 3.54m (15'1" x 11'7") - Inglenook fireplace with bresummer beam and hood, exposed original timbers, stairs to first floor with cupboard under, door to outside, oak floor, wall light points.

Study/Bedroom 3 - 2.35m x 2.32m (7'8" x 7'7") - Oak floor, exposed timbers.

Cloakroom - Wash hand basin set into vanity unit, low level WC, heated towel rail, slate floor.

Dining Room - 4.72m x 3.45m (15'5" x 11'3") - Double aspect, storage cupboard, oak flooring, wall lights.

Kitchen - 4.34m x 2.91m (14'2" x 9'6") - Recently fitted with an excellent range of base and wall units with wooden worksurfaces, inset butlers sink with mixer tap over, oven and hob, stainless steel cooker hood, washing machine, fridge, freezer, slate floor, breakfast bar, exposed wall timbers, door to garden. Cupboard housing Grant oil fired boiler for central heating and hot water.

Landing - Double cupboard. Exposed timbers.

Bedroom One - 4.73m x 3.02m (15'6" x 9'10") - Double aspect room.

Bedroom Two - 3.96m x 3.73m (12'11" x 12'2") - Exposed wooden beams, fireplace recess, access to roof space.

Bathroom - Beautiful bathroom with suite of panel bath with shower attachment and mixer taps, wc, hand basin and glass shower cubicle with thermostatic mixer and rainfall head. Porcelain flooring, part tiled walls, period towel rail.

Outside - To the front of the property there is a low level flint wall with a small area of garden behind. There is off road parking space to the side leading to the rear. The gardens are a particular feature being well stocked with a variety of mature perennial and annual plants together with an area of lawn, attractive apple tree and patio areas at both ends of the garden. There is also an outside tap and an outside light.

Cellar - 4.08m x 2.78m (13'4" x 9'1") - Accessed by steps from front garden with 1.8m ceiling height.

Services - Mains water and electricity, oil fired central heating, private drainage.

Outgoings - The Council Tax Band is ' E ' and the payment for the year 2025/2026 payable to Wiltshire Council is �2810.86.

Directions - Leave our offices in Salisbury and proceed out along Castle Road. Turn left towards the Woodford Valley keeping Queen Victoria Park on your right. Continue along this road and you will pass through Stratford-sub-Castle, just before the river bear right towards Little Durnford and Netton. Continue along this valley road for approximately 4 miles and on reaching the village of Netton the property will be found on the right hand side. If one gets to the telephone box on the left hand side, Cobweb Cottage is approximately 20 yards before this on the right hand side.

What3words - What3Words reference is: ///seaside.loads.soonest

Property Ref: 665745_34313938

Share:

Similar Properties

Marie Avenue, Downton

3 Bedroom Detached Bungalow | £495,000

A spacious detached bungalow situated in a highly favoured location on the edge of the village but still within walking...

Belle Vue Road, Salisbury

3 Bedroom Terraced House | £490,000

A character three bedroom terraced house which has been refurbished throughout. It has a DETACHED GARAGE and is in a pri...

Grimstead Road, Whaddon, Salisbury

4 Bedroom Detached Bungalow | Guide Price £475,000

A detached chalet bungalow in need of complete updating and offereing great potential for altering and extending. Set in...

Tanners Lane, Shrewton, Salisbury

4 Bedroom Detached House | Guide Price £500,000

Unusually spacious detached cottage, full of character features together with woodburning stove, exposed timbers, ledged...

Albany Road, Salisbury

4 Bedroom End of Terrace House | £530,000

A character end of terrace house in a prime city centre location. Four bedrooms and a large open plan kitchen/dining roo...

Tisbury Road, Fovant

3 Bedroom Detached Bungalow | Guide Price £550,000

A character detached bungalow set in a very large plot and now in need of updating but offering terrific potential to al...

Whites Estate Agents (Salisbury)

47 Castle Street, Salisbury, Wilts, SP1 3SP

01722 336 422

How much is your home worth?

Use our short form to request a valuation of your property.

Request a Valuation

Mortgage Calculator

Amount Borrowed: £
Total Amount Repayable: £
Total Monthly Payment: £
©2026 The Guild of Property Professionals. All rights reserved. Terms and Conditions | Privacy Policy | Cookie Policy | Complaints Policy | Members Login
The Guild of Property Professionals Trading Address: 121 Park Lane, London W1K 7AG. GPEA Limited. Registered in England & Wales.  Company No: 02819824.  Registered Office Address: 2 St. Stephen's Court, St. Stephen's Road, Bournemouth, Dorset, England, BH2 6LA.  VAT Registration No: 576 8795 61
Book a Property Valuation Update Cookies Preferences