Albany Road, Salisbury

£530,000
SSTC
This property listing is now SSTC

4 Bedroom End of Terrace House for sale in Salisbury

2 4 1
  • Character end of terrace house
  • Four bedrooms
  • Sitting room
  • Dining room
  • Kitchen/dining room
  • FF bathroom
  • Period features
  • Gas CH
  • Rear garden
  • City centre location

A character end of terrace house in a prime city centre location. Four bedrooms and a large open plan kitchen/dining room.

The property is a four bedroom character end of terrace house situated in a prime residential city centre location. It is well presented throughhout and has a range of period features with high ceilings, sash windows, ornate coving, a moulded arch in the hallway, cast iron fireplaces and dado and picture rails.

The well proportioned accommodation comprises an entrance hallway with stairs leading to the first floor. The sitting room has an attractive bay window, a ceiling rose and a feature fireplace. The dining room has an original built in dresser with glass fronted display shelving, a further feature fireplace and French doors leading to the rear garden. The layout has been altered to provide a large, light and airy kitchen/dining room which has an excellent range of units, a built in gas oven, space for both a washing machine and dishwasher and a fridge/freezer. The dining area has attractive Tri-fold doors leading out on to the rear garden and this room makes for a great entertaining space.

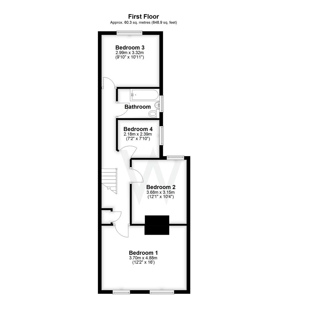
On the first floor, the main bedroom has a cast iron fireplace and two windows which provide southerly views along the length of Albany Road. There are two further double bedrooms, a single bedroom and a family bathroom which has a white three piece suite.

The house is set back from the road with a small garden area to the front and to the rear is a low maintenance paved and gravelled garden with a rear access gate.

Albany Road lies inside the ring road within easy walking distance of the city centre and amenities including the railway station and the Waitrose store. It also lies within the catchment area for the two Grammar schools, Bishop Wordsworth (boys) and South Wilts (girls).

Property Ref: 665745_34192799

Share:

Similar Properties

Marie Avenue, Downton

3 Bedroom Detached Bungalow | £525,000

A spacious detached bungalow situated in a highly favoured location on the edge of the village but still within walking...

High Lane, Broad Chalke

4 Bedroom Detached House | Guide Price £500,000

A character detached house offering scope for modernisation and alteration, situated in one of the areas most sought aft...

Tanners Lane, Shrewton, Salisbury

4 Bedroom Detached House | Guide Price £500,000

Unusually spacious detached cottage, full of character features together with woodburning stove, exposed timbers, ledged...

Wyndham Road, Salisbury

4 Bedroom End of Terrace House | Guide Price £550,000

A substantial classic period townhouse set over three floors with period features throughout including sash windows, str...

Tisbury Road, Fovant

3 Bedroom Detached Bungalow | Guide Price £550,000

A character detached bungalow set in a very large plot and now in need of updating but offering terrific potential to al...

Lower Woodford, Salisbury

3 Bedroom Cottage | Guide Price £550,000

A beautiful semi-detached cottage offered in excellent order throughout with front and rear gardens, garage, studio, adj...

Whites Estate Agents (Salisbury)

47 Castle Street, Salisbury, Wilts, SP1 3SP

01722 336 422

How much is your home worth?

Use our short form to request a valuation of your property.

Request a Valuation

Mortgage Calculator

Amount Borrowed: £
Total Amount Repayable: £
Total Monthly Payment: £
©2025 The Guild of Property Professionals. All rights reserved. Terms and Conditions | Privacy Policy | Cookie Policy | Complaints Policy | Members Login
The Guild of Property Professionals Trading Address: 121 Park Lane, London W1K 7AG. GPEA Limited. Registered in England & Wales.  Company No: 02819824.  Registered Office Address: 2 St. Stephen's Court, St. Stephen's Road, Bournemouth, Dorset, England, BH2 6LA.  VAT Registration No: 576 8795 61
Book a Property Valuation Update Cookies Preferences