Harmony House, Leeds Road, Selby

Guide Price
£750,000

4 Bedroom Detached House for sale in Selby

3 4 2
  • A fabulous and substantial family sized home (over 3000 sq ft)
  • Indoor swimming pool and spa and nearby 3 acre (approx) pony paddock
  • Located on the very desirable Leeds Road
  • This quality property offers a vast amount of possibilities with a versatile layout
  • Generous gated front driveway and fabulous rear garden with function space and Shepherds Hut
  • An accompanied viewing of this fabulous property is highly recommended
  • Council Tax Band: E
  • EPC: D67

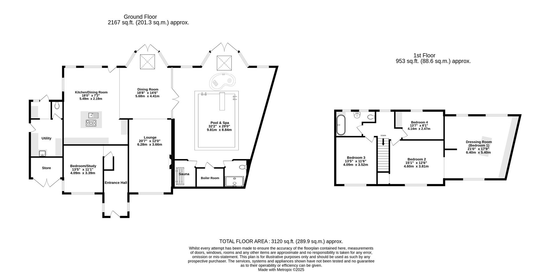
A substantial family sized home (over 3000 sq ft) with indoor swimming pool and spa. Located on the very desirable Leeds Road, this distinctive property offers vast amount of possibilities with a versatile layout and the potential to enhance further. Currently laid out as a 3 bedroom home which can easily be adapted to create further rooms. This quality property is ready to view and comprises; entrance hallway, 20ft lounge, large kitchen with fitted appliances, dining room, study/playroom, utility and boot room, WC, adjoined swimming pool with sauna and steam/shower room, first floor landing, three first floor double bedrooms, 19ft dressing room (formerly master bedroom) and three piece bathroom suite.

To the outside is a generous gated front driveway with attached brick store, side access to a fabulous rear garden with timber built bar/function space, shepherd's hut, lawn, mature flower borders and multiple sitting areas.

An accompanied viewing of this fabulous property is highly recommended.

Entrance Hallway - Composite entrance door, window to side, tiled flooring, single panelled radiator, recessed spotlights, power points, carpeted stairs to first floor, understairs cupboard

Lounge - uPVC window to front, gas fire with hearth, laminate flooring, radiators, TV and power points

Kitchen - Fitted wall and base units with granite top, sink and draining board, space and plumbing for appliances, recessed spotlights, radiator, power points

Breakfast Area - Double glazed windows to side and rear, door to garden, tiled flooring, radiators, spotlights

Dining Area - French doors to garden, glazed windows and roof, laminate flooring, radiators, power points

Study/Play Room - uPVC windows to front and side, vinyl flooring, radiators, spotlights, power points

Utility Room - Composite door to side, fitted wall and base units, Belfast sink, tiled flooring, double panelled radiator, power points

Boot Room - Stable door, tiled flooring, spotlights

Wc - Low level WC, tiled flooring, spotlights

Pool Room - 25ft x 28ft (82'0"ft x 91'10"ft) - Glazed door to garden, fully tiled, TV and power points

Shower Room - Walk-in shower room with steam room function, separate sauna, low level 'Toto' WC,, plant room

First Floor Landing - Window to rear, carpeting flooring, power points, spotlights

Bedroom 2 - Window to front, carpeting flooring, radiator, walk-in cupboard, spotlights, power points

Large Dressing Room (Formerly Master Bedroom) - Windows to front and rear, fitted wardrobes, carpeting flooring, spotlights, power points, radiator

Bedroom 3 - Window to front, carpeting flooring, radiator, spotlights, power points

Bedroom 4 - Window to rear, fitted wardrobes, carpeting flooring, radiators, spotlights

Bathroom - Two opaque windows to rear, panelled bath with tiled surround, waterfall shower head and waterfall tap, low level 'Toto' WC, wash hand basin, radiator, carpeted flooring

Outside - Gated front gravelled driveway with large beautifully designed electric gates, attached brick store, side access, rear lawned garden, multiple paved patio areas, large timber built bar/function space, shepherd's hut, fence and hedge boundary, outside tap

Property Ref: 34152770

Share:

Similar Properties

Main Street, Thorganby, York

4 Bedroom Detached House | Guide Price £725,000

A FABULOUS 4 BEDROOM EXECUTIVE DETACHED HOUSE SET IN THIS POPULAR VILLAGE TO THE SOUTH OF YORK WITHIN FULFORD SCHOOL CAT...

Back Lane South, Wheldrake, York

5 Bedroom Detached House | Offers Over £725,000

A FABULOUS 5 BEDROOM DETACHED HOUSE SET IN LARGER THAN AVERAGE GARDENS WITH OPEN ASPECT TO FRONT IN ONE OF WHELDRAKES MO...

Tockwith Road, Long Marston

5 Bedroom Detached House | Guide Price £700,000

Churchills Estate Agents are delighted to offer For Sale this 5 bedroom detached property on a good sized plot neatly po...

York Road, Haxby

4 Bedroom Detached House | Guide Price £760,000

A STUNNING EXECUTIVE 4 BEDROOM DETACHED HOUSE SET IN THIS SOUGHT AFTER LOCATION CLOSE TO HAXBY'S MANY AMENITIES AND WITH...

Haggwood Barn, Broad Highway, Wheldrake, York

4 Bedroom Barn Conversion | £850,000

A STUNNING 4 BEDROOM BARN CONVERSION SET IN LARGE GARDENS WITHIN A SMALL DEVELOPMENT CLOSE TO WHELDRAKE WOODS YET WITH A...

Gillcroft, Tadcaster Road

6 Bedroom Semi-Detached House | Guide Price £950,000

Overlooking The Knavesmire, Gillcroft is a substantial period property on York's prestigious Tadcaster Road.We believe t...

Churchills Estate Agents (York)

Bishopthorpe Road, York, Yorkshire, YO23 1NA

01904 646611

How much is your home worth?

Use our short form to request a valuation of your property.

Request a Valuation

Mortgage Calculator

Amount Borrowed: £
Total Amount Repayable: £
Total Monthly Payment: £
©2026 The Guild of Property Professionals. All rights reserved. Terms and Conditions | Privacy Policy | Cookie Policy | Complaints Policy | Members Login
The Guild of Property Professionals Trading Address: 121 Park Lane, London W1K 7AG. GPEA Limited. Registered in England & Wales.  Company No: 02819824.  Registered Office Address: 2 St. Stephen's Court, St. Stephen's Road, Bournemouth, Dorset, England, BH2 6LA.  VAT Registration No: 576 8795 61
Book a Property Valuation Update Cookies Preferences