Sheringham

Guide Price
£750,000

4 Bedroom Detached House for sale in Sheringham

4 3
  • NO ONWARD CHAIN
  • Delightful Sitting Room
  • Panelled Dining Room
  • Superb Kitchen/Breakfast Room
  • Four Bedrooms With Two En-Suite
  • Family Bathroom
  • 30' Attic Room With Sea Views
  • Garaging & Parking
  • Gas Central Heating & Double Glazing
  • Sought After Location.

Location Sheringham is a delightful North Norfolk coastal town, surrounded by some of the county's most picturesque countryside. Its vibrant high street offers a wide range of independent shops for everyday needs, complemented by a Tesco supermarket. The town provides excellent educational facilities, including primary and secondary schools with a sixth form, as well as a modern health centre, dental services, a busy theatre, and a well-stocked library. For leisure, there is an 18-hole clifftop golf course and easy access to stunning coastal and woodland walks. Sheringham benefits from regular bus and rail links to Norwich and other nearby towns, and throughout the year hosts a variety of festivals that bring the community together 

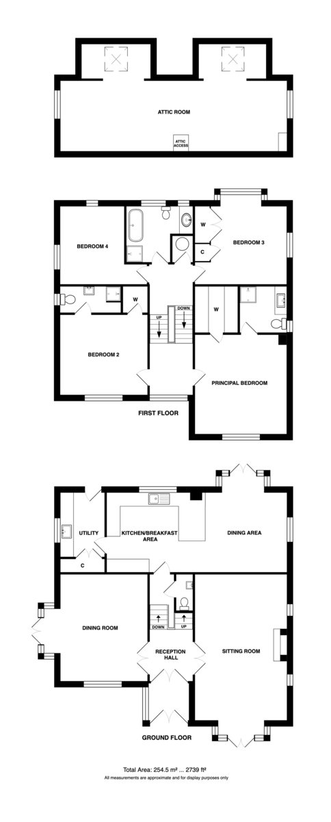
Description Situated within one of Sheringham's most sought-after locations, this highly individual and stylish detached home was thoughtfully constructed in 1990 by the current owners. Positioned on a distinctive triangular plot, the property offers a unique layout arranged across four levels, combining character with modern comfort. There is the expected gas central heating system, double glazing and security system.

From the main reception hall, elegant American Ash double doors with small panes lead to a welcoming sitting room and a delightful dining room ideal for entertaining. On the lower ground floor, a superb contemporary kitchen/breakfast with family space extends to approximately 27 feet, featuring an impressive range of units and integrated appliances, with french doors leading to the rear garden. A utility room and cloakroom complete this level.

Four generously sized double bedrooms are arranged over two floors, with the principal and guest bedrooms enjoying en-suite facilities and built-in wardrobes. The remaining bedrooms share a stylish family bathroom. From the upper landing, a loft ladder provides access to an exceptional attic room extending over 27 feet, offering breathtaking views across rooftops to the countryside and the sea. This versatile space is perfect for a studio, library, or hobby room, and could easily be transformed into additional accommodation with the installation of a staircase.

This distinctive home is ideal for those seeking to downsize from a larger property while remaining close to the sea and local amenities, or for families with older children looking for space and flexibility in a prime coastal setting.

Small paned entrance door and side window to: 

Reception Lobby 6' 1" x 5' 5" (1.85m x 1.65m) With tiled floor and small paned entrance door with side window to: 

Reception Hall With short carpeted staircases to the lower ground floor and first floor, radiator, carpet, ceiling coving and ceiling rose, Double small paned doors to the dining room and sitting room. 

Sitting Room 22' 2" plus square bay 6' 10" x 2' 4" x 14' (6.76m x 4.27m) (Front & side aspect) Open fireplace with attractive decorative surround, double and single radiators, two TV points, carpet, moulded cornicing. 

Dining Room 16' 3" plus square bay 6' 9" x 2' 4" x 13' 2" (4.95m x 4.01m) (Front & side aspect) A delightful room with most attractive panelled walls, 5 wall light points, double radiator, French doors to the garden, carpet, moulded cornicing.

 

Cloakroom 7' 6" x 2' 6" (2.29m x 0.76m) With white suite comprising of low level WC and hand basin, part tiled walls, radiator, extractor fan, ceramic tiled floor. 

Kitchen/Breakfast/Family Room 27' 5" x 11' 10" (8.36m x 3.61m) plus square bay 6' 4" x 2' 4" (Side & rear aspect) Superbly fitted with an excellent range of contemporary units and comprising inset 1.5 bowled sink unit with mixer tap and cupboard under, further base cupboard and drawer units with quartz work surfaces over, NEFF integrated dishwasher, twin integrated Bosch electric ovens, warming drawer and cupboards over and under, two shelved tall cupboards and adjacent integrated fridge/freezer, wine rack, matching wall cupboards, inset 5 ring Bosch electric induction hob with brushed stainless steel extractor hood over, breakfast bar, TV point, two double radiators, glazed French doors to the rear garden, part wood effect vinyl and carpeted flooring, inset ceiling downlights, ceiling coving, door to:
 

Utility Room 9' 9" x 6' 8" (2.97m x 2.03m) (Side & rear aspect) Deep white sink with mixer tap and cupboard under, water softener, further cupboard together with space for a tumble dryer, washing machine and fridge or freezer all with quartz work surface over, wall mounted Worcester gas fired boiler which serves the central heating and domestic hot water, large built in cloaks/storage cupboard, radiator, wood effect vinyl flooring, part glazed door to the rear garden, inset ceiling downlights, ceiling coving.

On The First Floor 

Split Level Landing 19' 8" x 6' 5" (5.99m x 1.96m) (Front aspect) Built in airing cupboard housing the Lagged hot water tank together with slatted shelving, radiator, feature arch with decorative corbels, two wall light points, dado rail, carpet, ceiling coving, access to the attic room with timber loft ladder. 

Bedroom 3 13' 11" x 11' 10" (4.24m x 3.61m) plus sqaure bay 6' 4" x 2' 10" (Side & rear aspect) To include built in double wardrobe with hanging rail and shelf and adjacent shelved cupboard, double radiator, TV point, carpet, ceiling coving. 

Bedroom 4 11' 10 " x 9' 8" (3.61m x 2.95m) (Side & rear aspect) Radiator, carpet, ceiling coving. 

Bathroom 10' 1" 6' 9" min x 8' 5" (3.07m x 2.57m) An L-shaped room with fully tiled walls and a most attractive contemporary suite comprising oval bath with contemporary up stand taps, shower attachment and pop up waste, low level WC, oval hand basin with chrome up stand taps and pop up waste on an oak top with cupboards under, corner shower cubicle with rainwater shower and handheld shower, chrome towel radiator, ceramic tiled floor, shaver point, inset ceiling down lights. 

Guest Bedroom 2 13' 3" x 12' 1" (4.04m x 3.68m) (Front Aspect) Radiator, TV point, carpet, ceiling coving and walk-in wardrobe with hanging rails, shelves & light, door to: 

En-Suite Shower Room 9' 2" x 3' 9" (2.79m x 1.14m) (Side aspect) With coloured suite comprising of tiled corner shower cubicle, low level WC, pedestal hand basin and part tile wall, shelf recess, radiator, carpet, ceiling coving. 

Principal Bedroom 17' 8" x 13' 11" (5.38m x 4.24m) (Front aspect) TV point, radiator, dimmer switch, oak finish laminated flooring, ceiling coving. Large walk-in wardrobe 6' 5" x 6' 5" with hanging rails shelving and automatic light, oak finish laminated flooring & ceiling coving. door to: 

En-Suite Shower Room 7' 2" x 7' (2.18m x 2.13m) Attractively fitted with a white contemporary suite comprising of corner shower cubicle with rainwater shower and handheld shower, hand basin with up stand taps and pop up waste on an oak worktop with cupboards under, low level WC, shaver point, chrome heated towel radiator, oak shelving, most attractive fully tiled walls in contrasting colours, ceramic tiled floor, inset ceiling down lights. 

Attic Room 34' 7" x 10' 8" (10.54m x 3.25m) (side & rear aspect) Plus two recesses with Velux windows 10'7" x 5' 3" and 10'2" x 5'3" respectively. This room has fantastic views over rooftops to open countryside and the sea.
 

Outside to the front of the property there is an extensive brick pavior driveway providing parking and a turning area with surrounding well-stocked borders boasting a wide variety of established specimen perennials shrubs and bushes with screening provided by both fencing and hedging. Outside Lighting. Detached Double Garage 17'x 16'6" with twin electric up and over doors power light and part glazed personnel door to the rear. There is gated access to both the side and rear gardens. The rear garden is mainly laid lawn once again with well-stocked established borders with specimen perennials shrubs and bushes together with a variety of trees including fig and apple. The side garden is on two levels with a paved stepping stone path lawn and borders once again perennial shrubs and bushes together with established trees and gated access to the road. There is also a small raised and paved patio access from the dining room and the garden is screened by a brick wall with timber fencing. Outside lighting and tap.
 

Services Mains water electricity drainage and gas are connected. 

Local Authority/Council Tax North Norfolk District Council, Holt Road, Cromer, NR27 9EN, Telephone: 0126 351 3811,
Council Tax Band - G.
 

EPC Rating The EPC rating for this property is C. A full Energy Performance Certificate is available on request. 

Agents Note Intending purchasers will be asked to provide original identity documentation and proof of address before Solicitors are instructed. 

We Are Here To Help If your interest in this property is dependent on anything about the property or its surroundings which are not referred to in the sale particulars, please contact us before viewing and we will do our best to answer any questions you may have.  

Property Ref: 101301036649

Share:

Similar Properties

Sheringham

6 Bedroom Semi-Detached House | Guide Price £750,000

A delightful semi-detached period house arranged over three floors with garage and off street parking formally run as a...

High Kelling, Holt

4 Bedroom Detached House | Guide Price £730,000

Vendors found, so very motivated to sell - An individual detached house in a highly-desirable location set well back fro...

Sheringham

5 Bedroom Semi-Detached House | Guide Price £685,000

A delightful semi-detached period house, tucked away in a sought-after location close to Sheringham town centre and the...

West Runton

5 Bedroom Semi-Detached House | Offers Over £825,000

This impressive 5 bedroom semi-detached house spans three floors and offers space, light, and style throughout. Enjoying...

West Runton

5 Bedroom Detached House | Guide Price £895,000

A highly individual and extremely spacious architect designed detached house standing on just over half an acre with stu...

Watsons (Sheringham)

Sheringham, Norfolk, NR26 8RG

01263 823201

How much is your home worth?

Use our short form to request a valuation of your property.

Request a Valuation

Mortgage Calculator

Amount Borrowed: £
Total Amount Repayable: £
Total Monthly Payment: £
©2026 The Guild of Property Professionals. All rights reserved. Terms and Conditions | Privacy Policy | Cookie Policy | Complaints Policy | Members Login
The Guild of Property Professionals Trading Address: 121 Park Lane, London W1K 7AG. GPEA Limited. Registered in England & Wales.  Company No: 02819824.  Registered Office Address: 2 St. Stephen's Court, St. Stephen's Road, Bournemouth, Dorset, England, BH2 6LA.  VAT Registration No: 576 8795 61
Book a Property Valuation Update Cookies Preferences