Dovedale Close, High Lane, Stockport, SK6

£400,000
Under Offer
This property listing is now Under Offer

4 Bedroom Detached House for sale in Stockport

4 2
  • Detached Family Home
  • Four Bedrooms
  • Beautifully Presented and Well Maintained
  • Bathroom & Washroom
  • Two Reception Rooms
  • Detached Double Garage
  • Hot Tub, Sauna & Bar
  • Good Sized Blockpaved Driveway
  • Well Maintained Gardens
  • Tenure: Freehold, Council Tax Band: E, EPC: C

Ian Tonge Property Services are delighted to offer for sale this this beautifully presented four-bedroomed detached family home, set within a peaceful and sought-after cul-de-sac in High Lane, offering generously proportioned living accommodation, well-maintained gardens, and excellent access to a wide range of local amenities. Ideal for families seeking a ready-to-move-into home in a highly regarded area.

The property comprises of a generously sized lounge leading through to the conservatory, a modern kitchen also with access to the landscaped rear garden. The property features four well-appointed bedrooms, offering ample space for a growing family, along with a family downstairs bathroom and an additional upstairs washroom.

Externally, the property also benefits from s a detached double garage and a spacious block-paved driveway with parking for multiple vehicles. The property also boasts a Hot Tub, separate Sauna and Bar Area.  Both the front and rear gardens have been lovingly maintained, with lawned areas, flower beds and patio seating providing a private and enjoyable outdoor space.

Property Reference HIL-1HGB14FH9CD








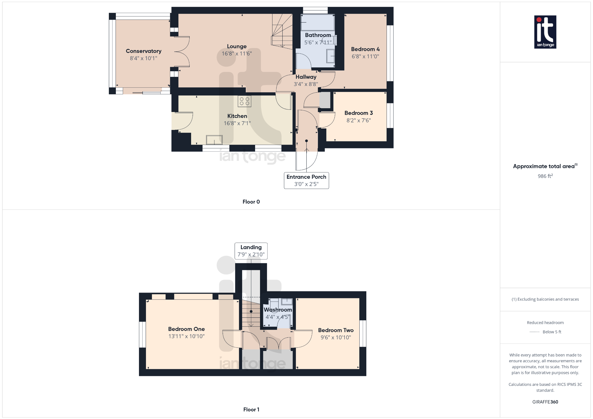
Entrance Porch  (Dimensions : 3'0" (91cm) x 2'5" (73cm))
uPVC double glazed entrance door leading porch.

Hallway  (Dimensions : 8'8" (2m 64cm) x 3'4" (1m 1cm))
uPVC double glazed door into hallway, radiator, laminate flooring.

Lounge  (Dimensions : 16'8" (5m 8cm) x 11'6" (3m 50cm))
uPVC double glazed French doors leading to conservatory, feature log burning stove, laminate flooring, stairs leading to first floor.

Conservatory  (Dimensions : 8'4" (2m 54cm) x 10'1" (3m 7cm))
uPVC double glazed to sides with door leading to garden area, radiator.

Kitchen  (Dimensions : 16'8" (5m 8cm) x 7'1" (2m 15cm))
Two uPVC double glazed windows to side aspect, uPVC door leading to garden area. Range of fitted wall and base units, butcher block style worktop with stainless sink and mixer tap, Integrated oven, dishwasher, five ring gas hob and extractor, plumbing for automatic washing machine, space for tumble dryer, American style fridge freezer, large pull-out pantry unit.

Ground Floor Bedroom 3  (Dimensions : 8'2" (2m 48cm) x 7'6" (2m 28cm))
uPVC double glazed window to front aspect, radiator.

Ground Floor Bedroom 4  (Dimensions : 6'8" (2m 3cm) x 11'0" (3m 35cm))
uPVC double glazed window to front aspect, radiator.

Bathroom  (Dimensions : 5'6" (1m 67cm) x 7'11" (2m 41cm))
uPVC double glazed window to side aspect, modern white suite comprising of:- panelled bath with shower over and glazed screen, built in low level W.C, half pedestal hand wash basin, fully tiled walls, chrome heated towel rail, underfloor heating.

Landing
with access to loft void, range of fitted storage units.

Bedroom One  (Dimensions : 13'11" (4m 24cm) x 10'10" (3m 30cm))
uPVC double glazed to rear aspect, range of fitted wardrobes and drawer units, radiator.

Bedroom 2  (Dimensions : 9'6" (2m 89cm) x 10'10" (3m 30cm))
uPVC double glazed window to front aspect, range of fitted wardrobes, radiator.

Washroom  (Dimensions : 4'5" (1m 34cm) x 4'4" (1m 32cm))
Vanity sink unit, low level W.C, sky light.

Outside
Attractive landscaped garden to rear with patio area and raised lawned area, mature planting and trees. The front benefits from an ample block paved driveway with gates leading to the detached garage. The rear garden also benefits from a Hot Tub, separate Sauna and a Bar area.

Detached Garage
with up and over door.


Important Information

  • This is a Shared Ownership Property
  • This is a Freehold property.

Property Ref: 58651_HIL-1HGB14FH9CD

Share:

Similar Properties

Manifold Drive, High Lane, Stockport, SK6

3 Bedroom Detached Bungalow | Offers in region of £400,000

Three bedroomed detached bungalow which commands an excellent spacious freehold plot on a desirable road in High Lane. T...

Narrowboat Close, Marple , SK6

3 Bedroom Semi-Detached House | £399,950

Beautifully presented modern three bedroomed semi detached, en-suite to master bedroom, family bathroom. Open plan dinin...

Windlehurst Road, Marple, Stockport, SK6

3 Bedroom Detached Bungalow | Guide Price £390,000

**360� Virtual Tour Available** BOASTING OPEN VIEWS OVER COUNTRYSIDE TO REAR, THIS WELL PRESENTED THREE DOUB...

Hartington Road, High Lane, Stockport, SK6

2 Bedroom Semi-Detached Bungalow | £410,000

Two bedroom semi detached bungalow. In need of some updating, excellent location, uPVC double glazing, gas central heati...

Keswick Road, High Lane, Stockport, SK6

3 Bedroom Not Specified | £415,000

Well-presented and deceptively spacious home which is a true gem, Situated in a peaceful and highly desirable location a...

Coniston Road, High Lane, Stockport, SK6

3 Bedroom Detached House | £425,000

Extended three/four bedroomed detached family home, located in a desirable road in High Lane, close to the village and i...

Ian Tonge Property Services (High Lane)

150 Buxton Road, High Lane, Stockport, SK6 8EA

01663 762677

How much is your home worth?

Use our short form to request a valuation of your property.

Request a Valuation

Mortgage Calculator

Amount Borrowed: £
Total Amount Repayable: £
Total Monthly Payment: £
©2026 The Guild of Property Professionals. All rights reserved. Terms and Conditions | Privacy Policy | Cookie Policy | Complaints Policy | Members Login
The Guild of Property Professionals Trading Address: 121 Park Lane, London W1K 7AG. GPEA Limited. Registered in England & Wales.  Company No: 02819824.  Registered Office Address: 2 St. Stephen's Court, St. Stephen's Road, Bournemouth, Dorset, England, BH2 6LA.  VAT Registration No: 576 8795 61
Book a Property Valuation Update Cookies Preferences