3 Bedroom Bungalow for sale in Wadebridge

3 1
  • GREAT POTENTIAL FOR EXTENSION SUBJECT TO REQUISITE PLANNING AND BUILDING REGULATION APPROVAL
  • GARAGE AND AMPLE PARKING
  • DETACHED BUNGALOW WITH NO ONWARD CHAIN
  • WONDERFUL SOUTH WEST FACING RURAL OUTLOOK
  • GENEROUS GARDENS OF JUST UNDER HALF A ACRE

Treveth is a detached bungalow set in a generous garden of just under half an acre offering great potential.
 
Currently offering 3 bedrooms and bathroom, together with sunroom, lounge and kitchen, tremendous scope exists for the enlargement of the footprint of the accommodation subject to the requisite planning and building regulations approval.
 
Enjoying a wonderful south west facing rural outlook at the front, the gardens extend to just under half an acre and offer a good degree of privacy as well as enjoying a wonderful rural outlook being bounded on two sides by open fields.
 
For those purchasers seeking a home to re-model and improve to their own taste and specification, Treveth should be considered ideal being offered for sale with no onward chain.

Penrose is an idyllic rural village located approximately two miles from Porthcothan Bay and St Merryn and within five miles from Padstow. Within a one and a half - five miles are many of North Cornwall's finest sandy beaches.


Merlin golf course is approximately two miles distance with the championship links golf course of Trevose just four miles away. Many of North Cornwall's finest surfing bays are within four miles as is Newquay airport with regular flights to London.



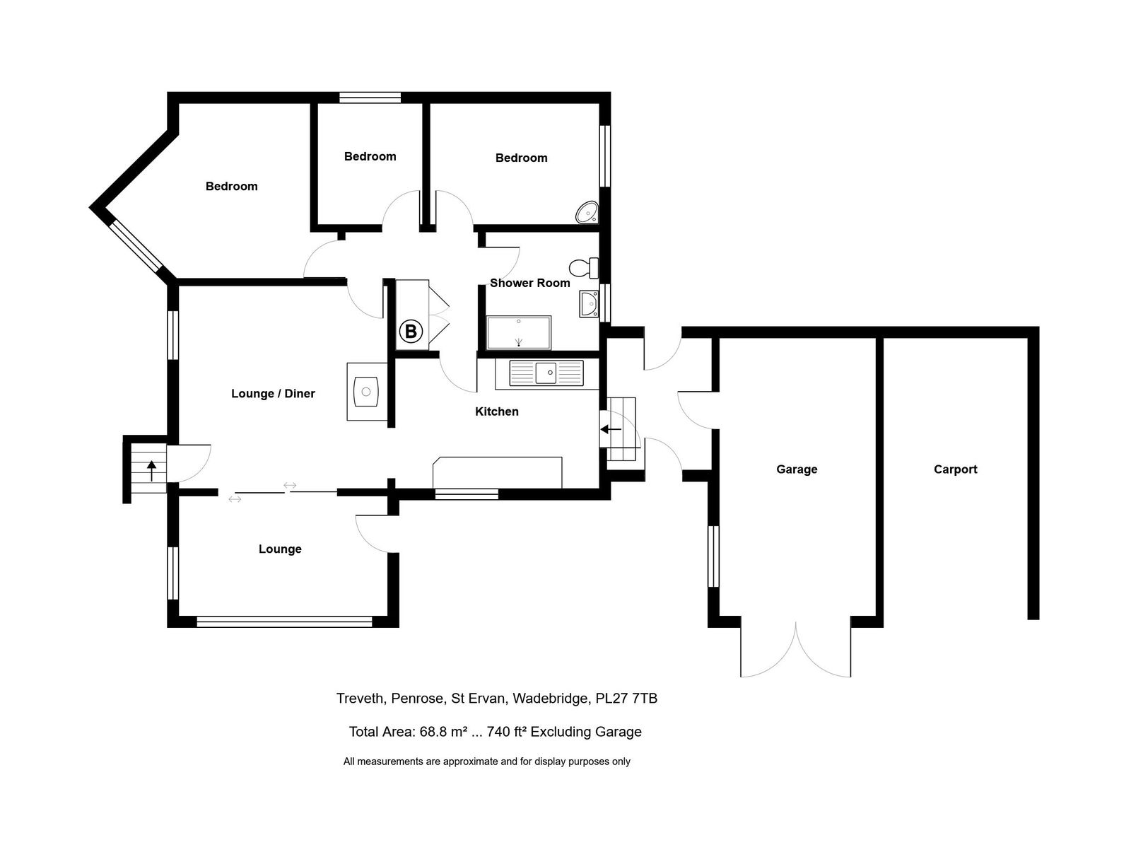
ACCOMMODATION WITH ALL MEASUREMENTS BEING APPROXIMATE:-


DOUBLE GLAZED FRONT DOOR IN UPVC FRAME OPENING TO:


SUNROOM - 4.2m x 2.4m (13'9" x 7'10")


Double glazed window in UPVC frame to front framing wonderful southwest facing rural outlook, further double glazed window in UPVC frame to side, arch to:

LOUNGE - 4.2m x 4.2m (13'9" x 13'9")


Double glazed window in UPVC frame to side together with door opening to side.  Feature wood burner set in stone built fireplace with timber over mantle also having back boiler which supplies two radiators.

KITCHEN - 4.2m x 2.5m (13'9" x 8'2")


Double glazed window in UPVC frame to front framing wonderful southwest facing rural views. Stainless steel sink unit and double drainer, space for electric cooker point.

INNER HALL


Radiator, airing cupboard, shelved cupboard.

BEDROOM ONE - 4.1m x 3.6m (13'5" x 11'9")


Double glazed window in UPVC frame to side.

BEDROOM TWO - 3.4m x 2.6m (11'1" x 8'6")


Double glazed window in UPVC frame to side, electric panel heater.

BEDROOM THREE - 2.6m x 2.1m (8'6" x 6'10")


Double glazed window in UPVC frame to rear, electric panel heater.

SHOWER ROOM


Large walk-in shower enclosure with glazed shower screen, wash hand basin with vanity cupboard under and low level WC, heated towel rail, opaque patterned double glazed window in UPVC frame to side.

OUTSIDE


Lean to porch at the side of the bungalow with door to both front and rear, together with a door opening to:

GARAGE - 5.46m x 3.1m (17'10" x 10'2")


Under pitched roof with timber door opening to front, light and power. 
 
Attached to the side of the garage is a lean to car port.

GARDEN


Treveth is set in a generous plot of just under half an acre comprising of small garden at the rear with mature hedge boundary and a generous sweeping lawn to the front bordered by a mature hedge boundaries and bounded by open fields.
 
One can enjoy a wonderful southwest facing outlook over surrounding countryside.

TENURE


Freehold

COUNCIL TAX


D

WHAT 3 WORDS


inform.endearing.awards

Important Information

  • This is a Freehold property.

Property Ref: 192_1103137

Share:

Similar Properties

St Eval, PL27

4 Bedroom Detached House | £485,000

A superb 4 bedroom detached modern home presented in first class order throughout.  EPC - B

St Breward, PL30 4LN

4 Bedroom Semi-Detached House | £465,000

A unique opportunity to purchase a superbly presented 3/4 bedroom property with former doctors surgery and 3 bedroom fla...

Padstow, PL28

4 Bedroom Semi-Detached House | £445,000

Spacious semi-detached 4 bedroom family home with large garage, utility room and enclosed rear gardens. EPC: C.  

Trevone, PL28

3 Bedroom Bungalow | £525,000

Detached three bedroom bungalow built of pre-cast concrete panels, situated in a good sized plot with development potent...

St Eval, PL27

4 Bedroom Detached House | £535,000

An immaculately presented four bedroom executive style home situated on a large corner plot with enclosed garden, garage...

Penrose, Wadebridge, PL27

3 Bedroom Semi-Detached House | £545,000

A picturesque character cottage with self contained annexe benefitting from three bedrooms in a glorious rural setting o...

Cole Rayment & White (Padstow)

Padstow, Cornwall, PL28 8AB

01841 533386

How much is your home worth?

Use our short form to request a valuation of your property.

Request a Valuation

Mortgage Calculator

Amount Borrowed: £
Total Amount Repayable: £
Total Monthly Payment: £
©2026 The Guild of Property Professionals. All rights reserved. Terms and Conditions | Privacy Policy | Cookie Policy | Complaints Policy | Members Login
The Guild of Property Professionals Trading Address: 121 Park Lane, London W1K 7AG. GPEA Limited. Registered in England & Wales.  Company No: 02819824.  Registered Office Address: 2 St. Stephen's Court, St. Stephen's Road, Bournemouth, Dorset, England, BH2 6LA.  VAT Registration No: 576 8795 61
Book a Property Valuation Update Cookies Preferences