Sundridge Drive, Walderslade, Chatham, ME5

Offers Over
£340,000
SSTC
This property listing is now SSTC

4 Bedroom Semi-Detached House for sale in Walderslade, Chatham

2 4 1
  • Four Bedrooms
  • Semi-Detached House
  • Downstairs Cloakroom
  • Study/Dining Room
  • Driveway for 2+ Vehicles
  • Garage
  • Popular Walderslade Location

Great family home. Situated in a popular residential area with local schools and amenities. Spacious four bedroom house, ideal for the growing family. Easy access to Chatham, Maidstone and motorway links.

The property itself has a front garden with a driveway to the side and a garage. On entering there is a handy entrance lobby and downstairs cloakroom. The lounge is an excellent size with brick built recessed hearth as a focal point. Large windows allow lots of light to flood in. The kitchen is well appointed with a range of cupboards and work surfaces. Leading off of the kitchen is a dining room or would also make an ideal home office/study area. Upstairs are four good sized bedrooms and a family shower room. To the rear is a practical, fence enclosed garden with patio area. There is also access to the garage from the garden. Ready to move into, viewing is highly recommended.

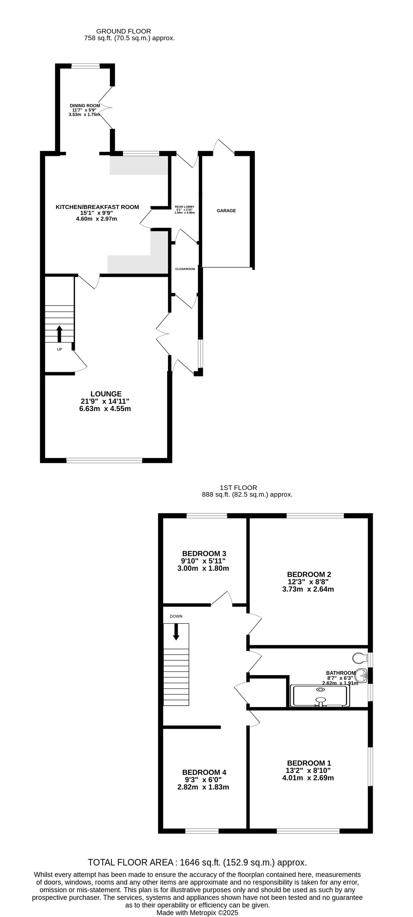
Ground Floor


Hall


Lounge
14' 11" x 21' 9" (4.55m x 6.63m)

Kitchen/Breakfast Room
15' 1" x 9' 9" (4.60m x 2.97m)

Dining Room
11' 7" x 5' 9" (3.53m x 1.75m)

Rear Lobby
5' 1" x 2' 10" (1.55m x 0.86m)

First Floor


Bedroom 1
13' 2" x 8' 10" (4.01m x 2.69m)

Bedroom 2
12' 3" x 8' 8" (3.73m x 2.64m)

Bedroom 3
9' 10" x 5' 11" (3.00m x 1.80m)

Bedroom 4
9' 3" x 6' 0" (2.82m x 1.83m)

Bathroom
6' 3" x 8' 7" (1.91m x 2.62m)

External


Garage


Important Information

  • This is a Freehold property.

Property Ref: 5093134_28616941

Share:

Similar Properties

Valley View Road, Rochester, ME1

3 Bedroom Semi-Detached House | £340,000

Being offered with no forward chain is this three bedroom 1930s home. The property has lots of potential and if you are...

Nickleby Close, Rochester, ME1

2 Bedroom Semi-Detached Bungalow | Offers in excess of £340,000

Located in a quiet cul-de-sac position, this immaculately presented two double bedroom semi detached bungalow with detac...

Kingfisher Drive, Walderslade, Chatham, ME5

3 Bedroom Terraced House | £330,000

You will not be disappointed when viewing this lovely home, situated in a quiet location on a walkway. It is ready to mo...

Berkeley Close, Rochester, ME1

3 Bedroom Semi-Detached House | £350,000

Being offered with no forward chain. If you are looking for a home to make your own then this would be ideal. It is situ...

Clandon Road, Chatham, ME5

4 Bedroom End of Terrace House | Guide Price £350,000

Guide Price £350,000 - £375,000 Situated in a popular location and within walking distance to local amenities and school...

Courtfield Avenue, Lordswood, Chatham, ME5

3 Bedroom End of Terrace House | Offers in excess of £350,000

We are pleased to offer to the market this three double bedroom extended end of terrace home. This will be a great prope...

Greyfox Sales & Lettings (Walderslade)

Walderslade Village Centre, Walderslade, Walderslade, Kent, ME5 9LR

01634 672227

How much is your home worth?

Use our short form to request a valuation of your property.

Request a Valuation

Mortgage Calculator

Amount Borrowed: £
Total Amount Repayable: £
Total Monthly Payment: £
©2025 The Guild of Property Professionals. All rights reserved. Terms and Conditions | Privacy Policy | Cookie Policy | Complaints Policy | Members Login
The Guild of Property Professionals Trading Address: 121 Park Lane, London W1K 7AG. GPEA Limited. Registered in England & Wales.  Company No: 02819824.  Registered Office Address: 2 St. Stephen's Court, St. Stephen's Road, Bournemouth, Dorset, England, BH2 6LA.  VAT Registration No: 576 8795 61
Book a Property Valuation Update Cookies Preferences