Knaphill, Woking, Surrey, GU21

Offers in excess of
£520,000

4 Bedroom Semi-Detached House for sale in Woking

1 4 2
  • Walking Distance to Brookwood Station
  • Parking For Two Cars
  • Spacious Master Bedroom With En Suite
  • Walking Distance to Knaphill Village
  • Downstairs Cloakroom
  • Modern Kitchen
  • Lounge/Dining Room
  • Landscaped Rear Garden

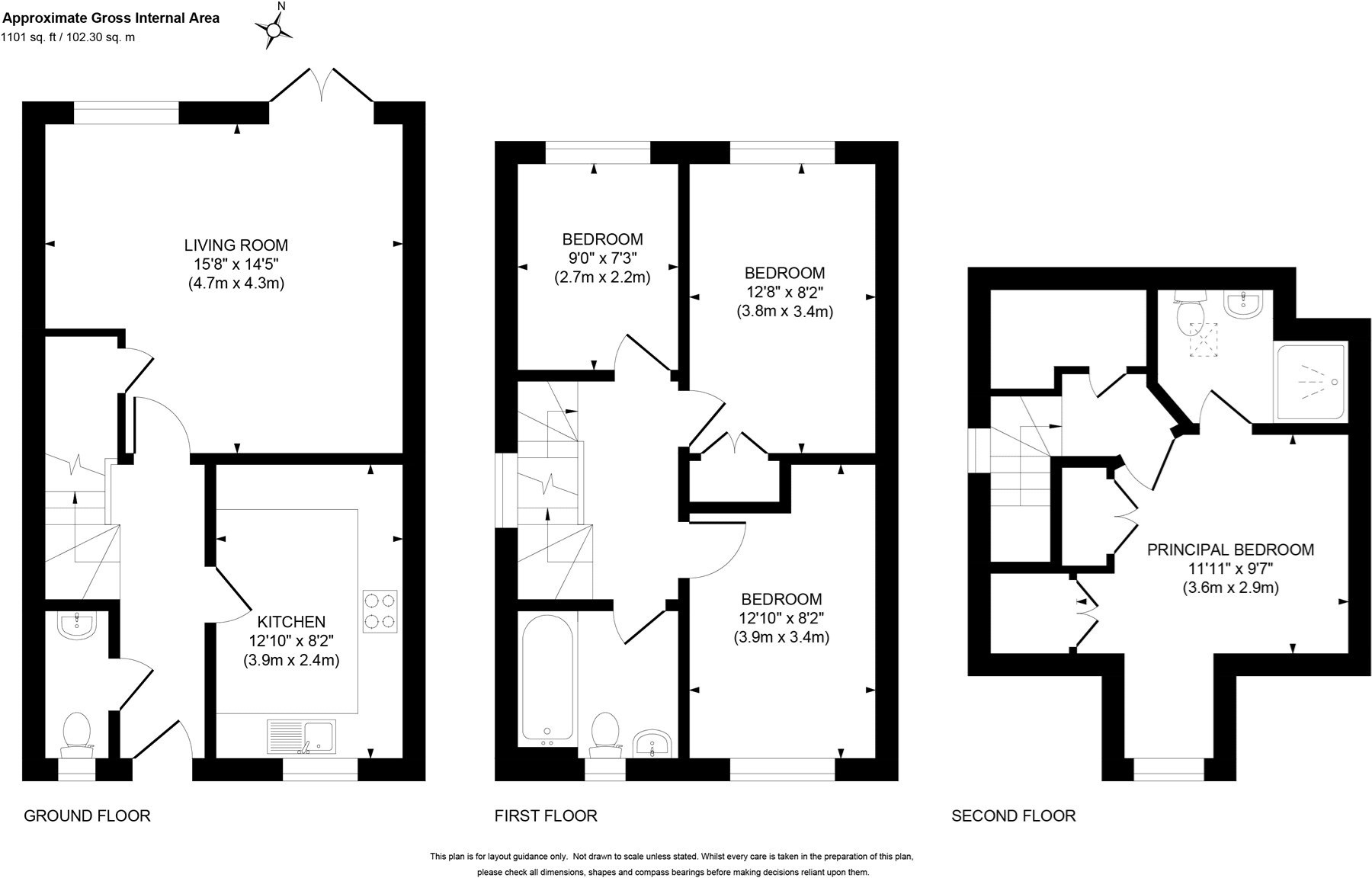
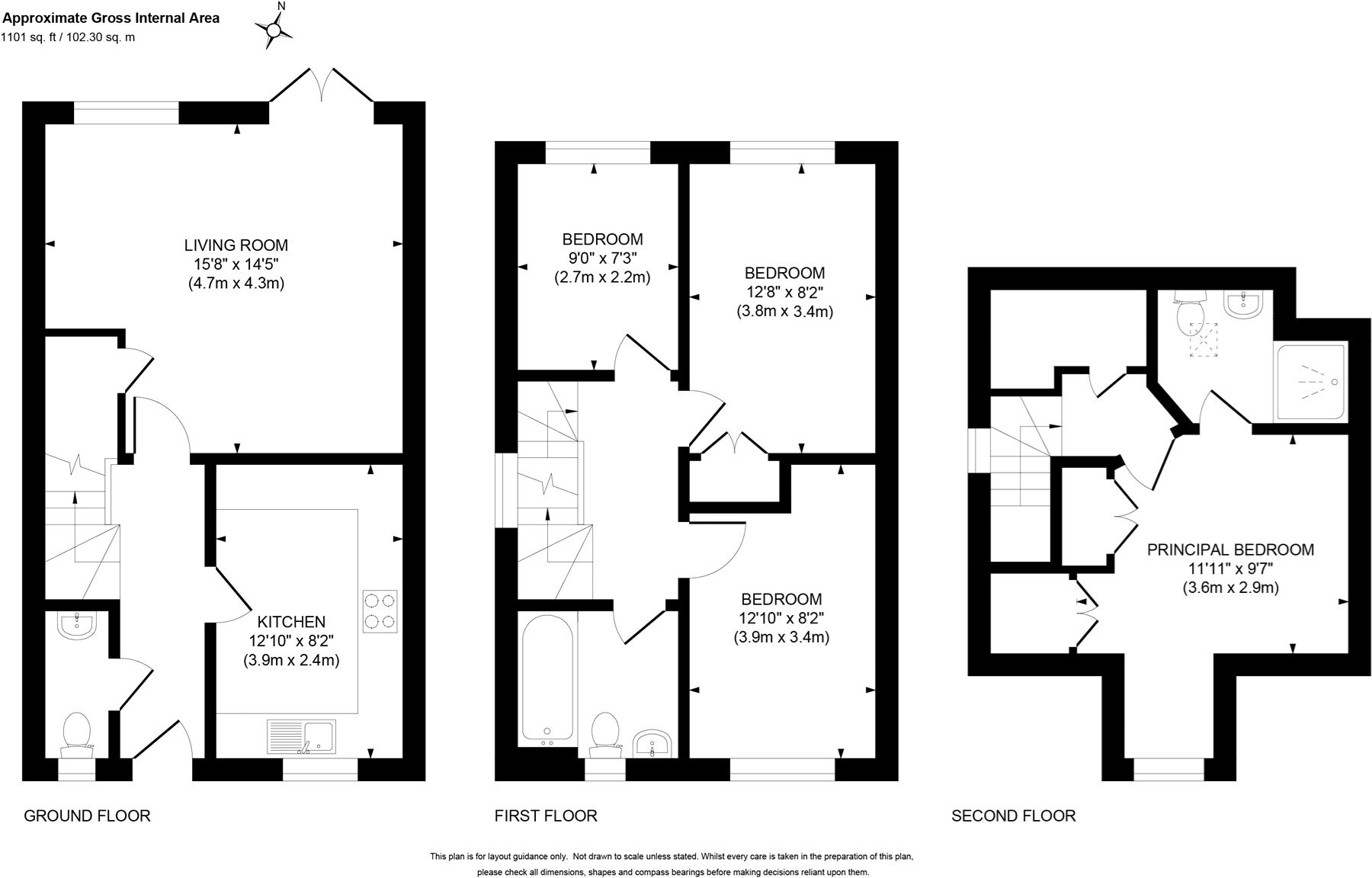
A spacious semi-detached home situated within walking distance of Brookwood Mainline Station, providing easy access to London Waterloo.The property offers well-presented accommodation arranged over three floors. The top floor is dedicated to a luxurious master bedroom featuring built-in wardrobe space and a stylish en suite shower room. The first floor comprises three further bedrooms and a modern family bathroom.On the ground floor, a front-aspect kitchen is fitted with a range of high-gloss base and eye-level units, an integrated double oven with gas hob, and other built-in appliances. To the rear, a bright and spacious living/dining room benefits from a useful storage cupboard and French doors leading out to the garden. A downstairs cloakroom completes the internal accommodation.Outside, the rear garden has been landscaped with low-maintenance artificial grass and features separate areas to relax or entertain, creating an ideal space for families or summer gatherings. A rear gate provides direct access to two allocated parking spaces.Knaphill village is also within easy reach, offering a variety of local amenities, as well as well-regarded Primary and Lower Schools.An ideal family home in a convenient location, viewings are highly recommended.

Location

Knaphill village has a vibrant range of shops, pubs, restaurants and a Post Office. For more comprehensive shopping, Sainsbury's superstore is also close by. For commuting, Brookwood station provides a regular service direct to London Waterloo, Woking and Guildford. For those who enjoy the outdoors, there is Brookwood Country Park close by which is ideal for dog walking or a family stroll.
N.B Annual charges apply £320.00

Important Information

  • This is a Freehold property.

Property Ref: KNA240459

Share:

Similar Properties

Knaphill, Woking, Surrey, GU21

3 Bedroom Semi-Detached House | Offers in excess of £500,000

Located in a peaceful and highly sought-after private cul-de-sac, this modern semi-detached home offers spacious and wel...

Knaphill, Woking, Surrey, GU21

3 Bedroom Semi-Detached House | £500,000

This three-bedroom semi-detached home offers is presented in excellent condition and provides stylish, well-proportioned...

Knaphill, Woking, Surrey, GU21

4 Bedroom End of Terrace House | £500,000

A spacious end of terrace townhouse offering well balanced accommodation exceeding 1,400 sq ft, arranged over three gene...

Knaphill, Woking, Surrey, GU21

3 Bedroom Detached House | £525,000

A detached family home set within a popular cul-de-sac in Knaphill, offered to the market with no onward chain and ideal...

Knaphill, Woking, Surrey, GU21

4 Bedroom Terraced House | £525,000

*** CHAIN FREE PROPERTY ***A spacious 4 double bedroom terraced home that lies within walking distance of Brookwood Main...

West End, Woking, Surrey, GU24

3 Bedroom Link Detached House | £525,000

Offered to the market with no onward chain, this three bedroom link detached home is situated in a quiet cul-de-sac and...

Seymours (Knaphill)

Knaphill, Surrey, GU21 2PP

01483 798969

How much is your home worth?

Use our short form to request a valuation of your property.

Request a Valuation

Mortgage Calculator

Amount Borrowed: £
Total Amount Repayable: £
Total Monthly Payment: £
©2026 The Guild of Property Professionals. All rights reserved. Terms and Conditions | Privacy Policy | Cookie Policy | Complaints Policy | Members Login
The Guild of Property Professionals Trading Address: 121 Park Lane, London W1K 7AG. GPEA Limited. Registered in England & Wales.  Company No: 02819824.  Registered Office Address: 2 St. Stephen's Court, St. Stephen's Road, Bournemouth, Dorset, England, BH2 6LA.  VAT Registration No: 576 8795 61
Book a Property Valuation Update Cookies Preferences